Birkenhead, Wirral
- PROPERTY TYPE
Land
- SIZE
Ask agent
Key features
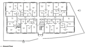
- A scheme of 28 new apartments
- 20 × 2-bedroom units & 8 × 1-bedroom units
- Four-storey scheme with lift access
- Cleared site (warehouse demolished)
- Freehold
- Prominent corner position
- Immediate development opportunity (subject to discharge of conditions)
Description
The Approval:
Fully cleared residential development site with full planning consent for the construction of 28 apartments arranged over four floors.
The approved scheme comprises:
20 × 2-bedroom apartments
8 × 1-bedroom apartments
Lift access to all floors
Associated access, parking and external works
The Current Site:
The site has been cleared following demolition of the former warehouse, providing an immediate development opportunity.
Occupying a prominent corner position fronting Chester Street, with vehicular access from Pilgrim Street, the cleared status materially reduces upfront capital expenditure and programme risk.
Tenure: Freehold
Title: Single Freehold title
Site Area: Approx. 16,414.96 sq ft (circa 1,525 sqm)
Affordable Housing:
The Section 106 agreement provides for 10% affordable housing provision (3 units). Full documentation available upon request.
Title: The site is held under a single Freehold title
Situated within Birkenhead, the site benefits from strong connectivity and established residential demand.
Train Stations:
Birkenhead Central and Green Lane (Merseyrail services to Liverpool and the wider region)
Bus & Road:
Excellent access to local bus routes and the A41 corridor
Shopping:
Close proximity to Birkenhead town centre and local retail amenities
Eating & Drinking:
A range of established cafés, restaurants and public houses within walking distance
Viewings:
At Roadside
Documents Available Upon Request:
Full Brochure
Planning Approval & Conditions
Link to Planning Documents
Design & Access Statement
GDV Appraisal
Local Comparable Evidence
Approved Planning Layouts
For further information, please contact the Allen Heritage Land Team.
Birkenhead, Wirral
NEAREST STATIONS
Distances are straight line measurements from the centre of the postcode- Hamilton Square Station0.2 miles
- Conway Park Station0.4 miles
- Birkenhead Central Station0.4 miles
Notes
Disclaimer - Property reference 4e0ee05e-2057-47e8-91f1-f21fae9555e5. The information displayed about this property comprises a property advertisement. Rightmove.co.uk makes no warranty as to the accuracy or completeness of the advertisement or any linked or associated information, and Rightmove has no control over the content. This property advertisement does not constitute property particulars. The information is provided and maintained by Allen Heritage, Shirley. Please contact the selling agent or developer directly to obtain any information which may be available under the terms of The Energy Performance of Buildings (Certificates and Inspections) (England and Wales) Regulations 2007 or the Home Report if in relation to a residential property in Scotland.
Map data ©OpenStreetMap contributors.









