
East Street, Goldthorpe, Barnsley, S63 9JP

- PROPERTY TYPE
Semi-Detached
- BEDROOMS
3
- SIZE
Ask developer
- TENUREDescribes how you own a property. There are different types of tenure - freehold, leasehold, and commonhold.Read more about tenure in our glossary page.
Freehold
Key features
- Semi-detached
- Front and rear gardens
- High-quality specifications included as standard from well-known brands
- Personalise your home with our optional extras (subject to build stage)
- 10-Year Warranty (first 2 years with Gleeson and a further 8 years with NHBC)
Description
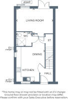
The Glin is a contemporary three bedroom semi-detached home with a spacious kitchen-diner and separate living room. The open-plan kitchen-diner is the ideal space for a family and perfect for entertaining, while the French doors from the living room into the garden offer a seamless outdoor-indoor living experience. The space continues upstairs where you will find three bedrooms and a family bathroom finished with Porcelanosa tiling as standard.
All images, videos, virtual tours, photographs, dimensions, and layouts are for illustrative purposes only and are indicative of the house type. For further information, please refer to the image disclaimer within the footer of the Gleeson Homes website or consult with the development’s Sales Executive.
Council Tax Band: TBC
Tenure: Freehold
EPC Potential Energy Efficiency: TBC
Room Dimensions
- Kitchen / Dining - 19'5" x 11'8" (5.93m x 3.56m)
- Living Room - 15'1" x 10'4" (4.59m x 3.11m)
- WC - 6'3" x 5'10" (1.91m x 1.77m)
- Bedroom 1 - 15'1" x 9'0" (4.59m x 2.75m)
- Bedroom 2 - 13'11" x 7'0" (4.24m x 2.14m)
- Bedroom 3 - 10'5" x 7'8" (3.18m x 2.35m)
- Bathroom - 8'1" x 6'3" (2.48m x 1.90m)
- COUNCIL TAXA payment made to your local authority in order to pay for local services like schools, libraries, and refuse collection. The amount you pay depends on the value of the property.Read more about council Tax in our glossary page.
- Band: TBC
- PARKINGDetails of how and where vehicles can be parked, and any associated costs.Read more about parking in our glossary page.
- Ask developer
- GARDENA property has access to an outdoor space, which could be private or shared.
- Yes
- ACCESSIBILITYHow a property has been adapted to meet the needs of vulnerable or disabled individuals.Read more about accessibility in our glossary page.
- Ask developer
Energy performance certificate - ask developer
East Street, Goldthorpe, Barnsley, S63 9JP
Add an important place to see how long it'd take to get there from our property listings.
__mins driving to your place
Get an instant, personalised result:
- Show sellers you’re serious
- Secure viewings faster with agents
- No impact on your credit score
About Gleeson Homes (Midlands)
You're invited to our Show Home Launch event, 31 January, 10am - 5pm
Be one of the first to take a tour of our brand-new awaited show home! Book your place today.
An exciting development of 2, 3 and 4 bedroom homes, Bluebell Court is the perfect location for those searching for a new home within the Dearne Valley area. Situated in the centre of the thriving village of Goldthorpe, Barnsley, Rotherham and Doncaster are all commutable via the A635 and A1(M), with the nearby train station providing direct services to Sheffield, Leeds and beyond.
Your mortgage
Notes
Staying secure when looking for property
Ensure you're up to date with our latest advice on how to avoid fraud or scams when looking for property online.
Visit our security centre to find out moreDisclaimer - Property reference 3_053. The information displayed about this property comprises a property advertisement. Rightmove.co.uk makes no warranty as to the accuracy or completeness of the advertisement or any linked or associated information, and Rightmove has no control over the content. This property advertisement does not constitute property particulars. The information is provided and maintained by Gleeson Homes (Midlands). Please contact the selling agent or developer directly to obtain any information which may be available under the terms of The Energy Performance of Buildings (Certificates and Inspections) (England and Wales) Regulations 2007 or the Home Report if in relation to a residential property in Scotland.
*This is the average speed from the provider with the fastest broadband package available at this postcode. The average speed displayed is based on the download speeds of at least 50% of customers at peak time (8pm to 10pm). Fibre/cable services at the postcode are subject to availability and may differ between properties within a postcode. Speeds can be affected by a range of technical and environmental factors. The speed at the property may be lower than that listed above. You can check the estimated speed and confirm availability to a property prior to purchasing on the broadband provider's website. Providers may increase charges. The information is provided and maintained by Decision Technologies Limited. **This is indicative only and based on a 2-person household with multiple devices and simultaneous usage. Broadband performance is affected by multiple factors including number of occupants and devices, simultaneous usage, router range etc. For more information speak to your broadband provider.
Map data ©OpenStreetMap contributors.






