
Ersham Road, Hailsham, BN27 3PN

- PROPERTY TYPE
Detached
- BEDROOMS
3
- SIZE
Ask developer
- TENUREDescribes how you own a property. There are different types of tenure - freehold, leasehold, and commonhold.Read more about tenure in our glossary page.
Ask developer
Key features
- We'll pay your Stamp Duty - receive up to £8,500
- Upgraded kitchen and flooring included
- Ready to move into
- Detached home
- Two parking spaces
- Open-plan kitchen/dining room
- Bright living room
- Main bedroom with en suite
- Third bedroom or home office
- Handy utility room
Description
The Hadley has a delightfully traditional look. Yet inside, the OPEN-PLAN kitchen/dining room is ideal for modern living. French doors to the garden give the whole room a BRIGHT AND AIRY feeling. The spacious DUAL ASPECT lounge provides the perfect place to relax in. Upstairs you'll find two double bedrooms, an en suite, a single bedroom and the family bathroom.
Plus, thanks to energy-efficient technologies, you could enjoy lower bills.
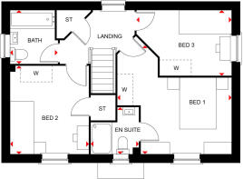
Room Dimensions
- Bathroom - 2025mm x 1811mm (6'7" x 5'11")
- Bedroom 1 - 4324mm x 4058mm (14'2" x 13'3")
- Bedroom 2 - 3341mm x 2978mm (10'11" x 9'9")
- Bedroom 3 - 2713mm x 2265mm (8'10" x 7'5")
- Ensuite 1 - 1856mm x 1771mm (6'1" x 5'9")
- Kitchen / Family / Dining - 5455mm x 3143mm (17'10" x 10'3")
- Lounge - 5455mm x 3153mm (17'10" x 10'4")
- Utility - 1804mm x 1688mm (5'11" x 5'6")
- WC - 1480mm x 1014mm (4'10" x 3'3")
- COUNCIL TAXA payment made to your local authority in order to pay for local services like schools, libraries, and refuse collection. The amount you pay depends on the value of the property.Read more about council Tax in our glossary page.
- Ask developer
- PARKINGDetails of how and where vehicles can be parked, and any associated costs.Read more about parking in our glossary page.
- Yes
- GARDENA property has access to an outdoor space, which could be private or shared.
- Yes
- ACCESSIBILITYHow a property has been adapted to meet the needs of vulnerable or disabled individuals.Read more about accessibility in our glossary page.
- Ask developer
Energy performance certificate - ask developer
- Just over 1 mile from the town centre - choose from a variety of shops, pubs and cafes
- Close to Ofsted rated 'Good' schools
- Less than 4 miles from Polegate train station - reach London Victoria by train in 1 hour 22 minutes
- Near the South Downs and Cuckoo Trail - great for bike rides or peaceful walks
Ersham Road, Hailsham, BN27 3PN
Add an important place to see how long it'd take to get there from our property listings.
__mins driving to your place
Get an instant, personalised result:
- Show sellers you’re serious
- Secure viewings faster with agents
- No impact on your credit score
About David Wilson Southern Counties
Discover the beautiful homes currently available at Ersham Park in Hailsham. Join this popular neighbourhood, and enjoy the best of both worlds with rural surroundings and close proximity to Hailsham town centre.
This sought after town has easy access to Eastbourne, Hastings and Brighton. You'll find a great choice of local schools and shops nearby, as well as beautiful woodlands and walking trails.
Your mortgage
Notes
Staying secure when looking for property
Ensure you're up to date with our latest advice on how to avoid fraud or scams when looking for property online.
Visit our security centre to find out moreDisclaimer - Property reference 3_H854167. The information displayed about this property comprises a property advertisement. Rightmove.co.uk makes no warranty as to the accuracy or completeness of the advertisement or any linked or associated information, and Rightmove has no control over the content. This property advertisement does not constitute property particulars. The information is provided and maintained by David Wilson Southern Counties. Please contact the selling agent or developer directly to obtain any information which may be available under the terms of The Energy Performance of Buildings (Certificates and Inspections) (England and Wales) Regulations 2007 or the Home Report if in relation to a residential property in Scotland.
*This is the average speed from the provider with the fastest broadband package available at this postcode. The average speed displayed is based on the download speeds of at least 50% of customers at peak time (8pm to 10pm). Fibre/cable services at the postcode are subject to availability and may differ between properties within a postcode. Speeds can be affected by a range of technical and environmental factors. The speed at the property may be lower than that listed above. You can check the estimated speed and confirm availability to a property prior to purchasing on the broadband provider's website. Providers may increase charges. The information is provided and maintained by Decision Technologies Limited. **This is indicative only and based on a 2-person household with multiple devices and simultaneous usage. Broadband performance is affected by multiple factors including number of occupants and devices, simultaneous usage, router range etc. For more information speak to your broadband provider.
Map data ©OpenStreetMap contributors.






