
Jamieson Street, Forfar, DD8

- PROPERTY TYPE
Semi-Detached
- BEDROOMS
2
- BATHROOMS
1
- SIZE
1,109 sq ft
103 sq m
- TENUREDescribes how you own a property. There are different types of tenure - freehold, leasehold, and commonhold.Read more about tenure in our glossary page.
Freehold
Key features
- Attractive traditional semi-detached Victorian house
- New boiler installed in April 2026
- Lounge featuring a bay window and original cornicing
- Family room/dining room
- Two bedrooms
- Bathroom fitted with a WC
Description
This attractive traditional semi-detached Victorian house is set within a popular and well-established residential neighbourhood, arranged over ground and first floor levels. The property benefits from a new boiler installed in April 2026 and the Hive heating system, ensuring efficient and controllable heating throughout.
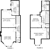
The accommodation at ground floor level comprises a vestibule providing access to a welcoming hallway, together with a lounge featuring a bay window and original cornicing, a family room/dining room, and a kitchen. The first floor accommodation comprises a landing, two bedrooms, and a bathroom fitted with a WC. The layout provides functional family accommodation with a clear separation between living and sleeping areas.
The property is situated on the eastern side of Forfar within an established and predominantly residential locality. Surrounding properties comprise a mixture of privately owned and local authority housing of broadly similar character and scale. The area benefits from convenient access to a range of local amenities, including retail facilities, schooling, public transport links, and recreational amenities, all located within reasonable proximity of the subjects. The location provides good connectivity to the town centre and surrounding areas, making it suitable for residential occupation.
The washer/dryer in the kitchen is also included in the price.
EPC Rating: D
- COUNCIL TAXA payment made to your local authority in order to pay for local services like schools, libraries, and refuse collection. The amount you pay depends on the value of the property.Read more about council Tax in our glossary page.
- Band: D
- PARKINGDetails of how and where vehicles can be parked, and any associated costs.Read more about parking in our glossary page.
- Ask agent
- GARDENA property has access to an outdoor space, which could be private or shared.
- Private garden
- ACCESSIBILITYHow a property has been adapted to meet the needs of vulnerable or disabled individuals.Read more about accessibility in our glossary page.
- Ask agent
Energy performance certificate - ask agent
Jamieson Street, Forfar, DD8
Add an important place to see how long it'd take to get there from our property listings.
__mins driving to your place
Get an instant, personalised result:
- Show sellers you’re serious
- Secure viewings faster with agents
- No impact on your credit score
Your mortgage
Notes
Staying secure when looking for property
Ensure you're up to date with our latest advice on how to avoid fraud or scams when looking for property online.
Visit our security centre to find out moreDisclaimer - Property reference 04f071e0-23a3-4ad8-ae14-9ee04ad84896. The information displayed about this property comprises a property advertisement. Rightmove.co.uk makes no warranty as to the accuracy or completeness of the advertisement or any linked or associated information, and Rightmove has no control over the content. This property advertisement does not constitute property particulars. The information is provided and maintained by Clyde Property, Perth. Please contact the selling agent or developer directly to obtain any information which may be available under the terms of The Energy Performance of Buildings (Certificates and Inspections) (England and Wales) Regulations 2007 or the Home Report if in relation to a residential property in Scotland.
*This is the average speed from the provider with the fastest broadband package available at this postcode. The average speed displayed is based on the download speeds of at least 50% of customers at peak time (8pm to 10pm). Fibre/cable services at the postcode are subject to availability and may differ between properties within a postcode. Speeds can be affected by a range of technical and environmental factors. The speed at the property may be lower than that listed above. You can check the estimated speed and confirm availability to a property prior to purchasing on the broadband provider's website. Providers may increase charges. The information is provided and maintained by Decision Technologies Limited. **This is indicative only and based on a 2-person household with multiple devices and simultaneous usage. Broadband performance is affected by multiple factors including number of occupants and devices, simultaneous usage, router range etc. For more information speak to your broadband provider.
Map data ©OpenStreetMap contributors.






