
Farfield Road, Huddersfield, HD5

- PROPERTY TYPE
Terraced
- BEDROOMS
2
- BATHROOMS
1
- SIZE
678 sq ft
63 sq m
- TENUREDescribes how you own a property. There are different types of tenure - freehold, leasehold, and commonhold.Read more about tenure in our glossary page.
Freehold
Key features
- No Chain
- Front & Rear Garden
- Parking
- Close to Local Schooling & Transport Links
Description
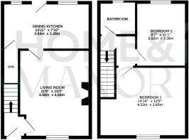
This well-presented two-bedroom home offers spacious and practical accommodation, ideal for first-time buyers, downsizers or investors alike. The property features a welcoming entrance hall, a generous front-facing living room with feature gas fire, and a modern dining kitchen to the rear with direct access to the garden, perfect for everyday living and entertaining. To the first floor are two well-proportioned double bedrooms and a family bathroom. Externally, the property benefits from low-maintenance front and rear gardens, with useful outdoor storage. Conveniently located close to local amenities, reputable schooling and excellent transport links, the property is ideally positioned for both families and commuters. Offered to the market with no onward chain, this is a fantastic opportunity for a smooth and straightforward purchase.
EPC Rating: D
Entrance
A spacious and welcoming entrance hall providing access to the living room and first floor. There is useful space for shoe and coat storage, making it both practical and functional for everyday family living.
Living Room
Located to the front of the property, the generous living room enjoys pleasant views over the front garden. The room offers ample space for a variety of family seating arrangements and features a gas fire set within a neutral surround, creating an attractive focal point.
Dining Kitchen
Positioned to the rear of the property, the dining kitchen is fitted with sleek modern cabinetry complemented by wood-effect worktops and neutral tiled splashbacks. It benefits from a gas oven with four-ring gas hob, chrome sink with mixer tap, and dedicated space for a washing machine and fridge freezer. There is ample room for a family dining suite, while a handy under-stairs storage cupboard provides ideal pantry space and houses the tumble dryer. The room is flooded with natural light from dual aspect windows and also benefits from a convenient external door leading directly onto the rear garden, creating an excellent flow between indoor and outdoor living.
Landing
The first-floor landing provides access to both bedrooms and the family bathroom, along with convenient access to the loft space.
Bedroom 1
A spacious double bedroom located to the front of the property, enjoying views over the front garden. The room benefits from a range of built-in furniture including floor-to-ceiling wardrobes and dresser units, while still offering additional space for freestanding furniture. Character features include a bulkhead and chimney breast.
Bedroom 2
Situated to the rear of the property, this double bedroom overlooks the rear garden and offers space for a double bed and additional furniture.
Bathroom
Located to the rear of the property, the bathroom is fitted with a full-sized bath, pedestal wash hand basin with chrome mixer tap, and WC. The room is finished with tiled walls and carpeted flooring.
Front Garden
To the front of the property is a well-maintained lawn with mature hedge borders and flower beds. A stone-flagged pathway leads to the front door and also provides shared access for the neighbouring property.
Rear Garden
Accessed via the kitchen door or through a gate from the driveway, the rear garden features a stone-flagged patio area and is fully enclosed by wooden fencing. Designed for low maintenance, it provides an ideal space for outdoor seating and relaxing outdoors. In addition, there is a raised flagged patio area which accommodates a large shed, offering useful external storage.
Parking - Driveway
Disclaimer
Whilst every effort is made to ensure the accuracy of the information provided, Home & Manor gives no representations or warranties regarding the statements contained within these particulars, which should not be relied upon as statements of fact. All information is supplied by the Seller. Your Conveyancer is legally responsible for ensuring that any purchase agreement fully protects your interests. Please notify us if you become aware of any inaccuracies. If an offer is accepted on a property marketed by Home & Manor, all purchasers will be required to complete identification checks and provide proof and source of funds. This is a legal requirement under Anti-Money Laundering (AML) regulations. We use a specialist third-party provider alongside our in-house compliance team to carry out these checks. The cost is £50.00 + VAT per person, payable in advance once an offer is agreed and prior to issue of the sales memorandum. This fee is non-refundable.
- COUNCIL TAXA payment made to your local authority in order to pay for local services like schools, libraries, and refuse collection. The amount you pay depends on the value of the property.Read more about council Tax in our glossary page.
- Band: A
- PARKINGDetails of how and where vehicles can be parked, and any associated costs.Read more about parking in our glossary page.
- Driveway
- GARDENA property has access to an outdoor space, which could be private or shared.
- Front garden,Rear garden
- ACCESSIBILITYHow a property has been adapted to meet the needs of vulnerable or disabled individuals.Read more about accessibility in our glossary page.
- Ask agent
Farfield Road, Huddersfield, HD5
Add an important place to see how long it'd take to get there from our property listings.
__mins driving to your place
Get an instant, personalised result:
- Show sellers you’re serious
- Secure viewings faster with agents
- No impact on your credit score
Affordability
Notes
Staying secure when looking for property
Ensure you're up to date with our latest advice on how to avoid fraud or scams when looking for property online.
Visit our security centre to find out moreDisclaimer - Property reference a2d43c03-1289-493e-91f3-1a4c4d87b580. The information displayed about this property comprises a property advertisement. Rightmove.co.uk makes no warranty as to the accuracy or completeness of the advertisement or any linked or associated information, and Rightmove has no control over the content. This property advertisement does not constitute property particulars. The information is provided and maintained by Home & Manor, Huddersfield. Please contact the selling agent or developer directly to obtain any information which may be available under the terms of The Energy Performance of Buildings (Certificates and Inspections) (England and Wales) Regulations 2007 or the Home Report if in relation to a residential property in Scotland.
*This is the average speed from the provider with the fastest broadband package available at this postcode. The average speed displayed is based on the download speeds of at least 50% of customers at peak time (8pm to 10pm). Fibre/cable services at the postcode are subject to availability and may differ between properties within a postcode. Speeds can be affected by a range of technical and environmental factors. The speed at the property may be lower than that listed above. You can check the estimated speed and confirm availability to a property prior to purchasing on the broadband provider's website. Providers may increase charges. The information is provided and maintained by Decision Technologies Limited. **This is indicative only and based on a 2-person household with multiple devices and simultaneous usage. Broadband performance is affected by multiple factors including number of occupants and devices, simultaneous usage, router range etc. For more information speak to your broadband provider.
Map data ©OpenStreetMap contributors.





