BUILDING PLOT - Sydenham Lane, Montpeiler, Bristol
- PROPERTY TYPE
Land
- BEDROOMS
3
- SIZE
Ask agent
Key features
- 19 March LIVE ONLINE AUCTION
- Level building plot with planning granted
- Approval for a contemporary 3-bedroom house
- GDV of circa £575,000
- Prime location in Cotham/Montpelier
- 8-week completion
Description
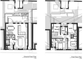
A level building plot with full planning permission granted for the erection of a contemporary two-storey, three-bedroom house measuring 123 m² (1,324 sq ft).
The proposed house will comprise a spacious, open-plan kitchen/dining/living room with doors onto a rear courtyard garden, and a cloakroom on the ground floor. The first floor will provide three bedrooms (master with en-suite), a bathroom and a mezzanine study area.
A superb opportunity for builders, developers and self-builders to create a unique modern home with an anticipated GDV of circa £575,000.
The site is situated in a highly sought-after location on the borders of Cotham and Montpelier, with excellent transport links provided to the city centre.
For Sale By Auction - This property is due to feature in our online auction on 19 March 2026 at 6.00pm. Bidding is via proxy, telephone or online remote bidding.
Viewings - By appointment.
Summary - LEVEL BUILDING PLOT WITH FULL PLANNING GRANTED FOR CONSTRUCTION OF A THREE-BEDROOM HOUSE
Description - A superb level building plot with full planning consent in place for the construction of a striking contemporary three-bedroom home extending to approximately 123 m² (1,324 sq ft). The site is currently occupied by a large double garage and is bordered on either side by residential dwellings.
The approved design showcases modern, light-filled living, featuring a generous open-plan kitchen/dining/living space with doors opening onto a private rear courtyard garden. The ground floor will also benefit from a convenient cloakroom. Upstairs, the thoughtfully designed layout offers three well-proportioned bedrooms, including a master bedroom with en-suite, a stylish family bathroom, and a mezzanine study area - perfect for home working.
This is a superb prospect for builders, developers, and self-builders seeking to deliver a distinctive contemporary home, with an anticipated Gross Development Value in the region of £575,000.
Perfectly positioned on the highly desirable borders of Cotham and Montpelier, the site enjoys a vibrant neighbourhood setting and excellent transport connections to Bristol city centre.
Location - The land is accessed from Sydenham Lane, to the rear of 143 Cheltenham Road. The location is convenient for a wide range of local amenities on Gloucester Road and Cheltenham Road, Redland train station and excellent transport links to Bristol city centre.
Planning - Full planning permission has been granted for the demolition of existing garages and the construction of a two-storey three bedroom dwelling house accessed from Sydenham Lane.
Planning Application - 25/13813/F
Planning Granted - 12th February 2026
Local Authority - Bristol City Council
Gross Development Value (Gdv) - We anticipate a GDV of circa £575,000 for the proposed dwelling.
Completion - Completion for this lot will be 8 weeks from exchange of contracts or sooner by mutual agreement.
Tenure - Please refer to the legal pack.
Community Infrastructure Levy (Cil) - We understand the CIL payable is £12,262.50.
Buyer's Premium - Please be advised that all purchasers are subject to a £1,800 plus VAT (£2,160 inc VAT) buyer’s premium payable upon exchange of contracts.
*Guide Price - Guide Prices are provided as an indication of each seller's minimum expectation. They are not necessarily figures which a property will sell for and may change at any time prior to the auction. Each property will be offered subject to Reserve Price (a figure below which the Auctioneer cannot sell the property during the auction) which we expect will be set within the Guide Range or no more than 10% above a single figure Guide.
Site Plan - The site plan is provided for indicative purposes only, please refer to the title plan within the legal pack for confirmation of the site boundaries.
Reserve Price - The seller's minimum acceptable price at auction and the figure below which the auctioneer cannot sell. The reserve price is not disclosed and remains confidential between the seller and the auctioneer. Both the guide price and the reserve price can be subject to change up to and including the day of the auction.
Proxy, Telephone & Online Remote Bidding - The auction will be held online via live video stream with buyers able to bid via telephone, online or by submitting a proxy bid. You will need to complete our remote bidding form, which is available to download from our website. The completed form, ID (driving licence or passport and a recent utility bill stating the home address of the purchaser) and a bank transfer for the Preliminary Deposit must be received no later than 24 hours before the date of the auction.
Preliminary Deposits - The Preliminary Deposit required for each lot you wish to bid for is £5,000.
If your bid is successful, the balance of the deposit monies and Buyer’s Premium (£1,800 plus VAT) must be transferred to our client account within 24 hours of the auction sale. If you are unsuccessful at the auction, your Preliminary Deposit will be returned to you within 5 working days.
Letting - What Can Maggs & Allen Achieve For You? - Maggs & Allen's experienced letting team are happy to discuss the rental of this property and can advise on maximising the investment. We offer Full Management, Let Only and Rent Collection Services. Contact Jessica Archer and her team on or email .
Auction Or Bridging Finance Required? - Do you need a mortgage or loan quickly? Maggs & Allen have specialist Independent Brokers who can arrange residential and commercial finance on all types of property. Contact the Auction Team today to be put through to our mortgage and loan experts on or email
Brochures
BUILDING PLOT - Sydenham Lane, Montpeiler, BristolBUILDING PLOT - Sydenham Lane, Montpeiler, Bristol
NEAREST STATIONS
Distances are straight line measurements from the centre of the postcode- Montpelier Station0.2 miles
- Redland Station0.5 miles
- Clifton Down Station0.9 miles
About Maggs & Allen, Auction, Commercial & Investment
60 Northumbria Drive, Henleaze, Bristol, BS9 4HW



Notes
Disclaimer - Property reference 34490647. The information displayed about this property comprises a property advertisement. Rightmove.co.uk makes no warranty as to the accuracy or completeness of the advertisement or any linked or associated information, and Rightmove has no control over the content. This property advertisement does not constitute property particulars. The information is provided and maintained by Maggs & Allen, Auction, Commercial & Investment. Please contact the selling agent or developer directly to obtain any information which may be available under the terms of The Energy Performance of Buildings (Certificates and Inspections) (England and Wales) Regulations 2007 or the Home Report if in relation to a residential property in Scotland.
Auction Fees: The purchase of this property may include associated fees not listed here, as it is to be sold via auction. To find out more about the fees associated with this property please call Maggs & Allen, Auction, Commercial & Investment on 0117 463 0249.
*Guide Price: An indication of a seller's minimum expectation at auction and given as a Guide Price or a range of Guide Prices. This is not necessarily the figure a property will sell for and is subject to change prior to the auction.
Reserve Price: Each auction property will be subject to a Reserve Price below which the property cannot be sold at auction. Normally the Reserve Price will be set within the range of Guide Prices or no more than 10% above a single Guide Price.
Map data ©OpenStreetMap contributors.




