Holden Mill, Blackburn Road, Bolton

- PROPERTY TYPE
Apartment
- BEDROOMS
2
- BATHROOMS
2
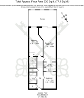
- SIZE
830 sq ft
77 sq m
Key features
- Stunning Fifth Floor Apartment
- Within Grade II Listed Mill Conversion
- Convenient Transport Links to Manchester via Rail & Road
- Beautiful Standard of Presentation Throughout
- Generously Proportioned 24' Open Plan Main Living Space
- Stylish Fitted Kitchen with Integrated Appliances
- Two Double Bedrooms
- 20' Primary Bedroom Suite with Dressing Area & En-Suite Shower Room
- Fabulous Sun Terrace with Sunny Westerly Aspect
- Secure Allocated Indoor Parking Facilities
Description
Exuding character and style in equal measure, this beautiful two bed, fifth floor apartment simply must be viewed to appreciate not only the generous levels of space, but also the thoughtful design, both of the property, but more generally, the development itself, affording a real lifestyle opportunity and forming part of an exclusive complex, the type of which is normally reserved for the fashionable city centre of Manchester.
With a rich heritage of cotton weaving, the former mill town of Bolton was once at the forefront of the world's cotton production and this exciting opportunity lies within one such hub - Holden Mill, a stunning Grade II listed former cotton mill, the last of its type to be constructed in the town in 1927, and which has become a landmark building, famed for its iconic domed tower. Acquired by renowned local builders, P.J. Livesey, this centre of industry, once a building designed for function over aesthetics, has been re-modelled into a new purpose for the 21st century, skilfully and sympathetically converted to a range of executive apartments known as 'The Cottonworks', and providing a real lesson in how to blend character and contemporary flair.
Offering all the modern appointments one would expect of a modern home, the building has lost none of its character, with exposed brickwork and cast-iron supports providing rustic acknowledgements to the building's industrial past, and stylish communal areas which create a feeling more of a boutique hotel than a residential building. Aside from the obvious appeal, what sets these properties apart is the private outdoor spaces, an innovative and unique feature to this development, which affords residents their own private sun terrace, and which can be enjoyed all year round due to its sheltered manner of construction, ensuring low maintenance living does not necessarily mean that one is without a space in which to relax with a glass of wine. Acting as an extension to the already generous living space, this flexible area provides potential for a variety of leisure uses, not least the perfect space in which to unwind, for al-fresco dining or perhaps a wonderful canvas to create one’s own botanical haven in which to retreat after a stressful day in the office and enjoy the last of the evening sun afforded by the Westerly aspect.
'The Cottonworks' is located on the border of Astley Bridge and Sharples, ensuring there are a host of local shops and amenities close at hand, with its convenient location on an arterial route into the town centre, affording superb public transport links, with the vibrant centre of Bolton accessible in minutes, where one can sample the diverse range of high street stores, bars and eateries. Furthermore, the A666 provides direct access to the motorway network, which will be ideal for those with a commute to consider, ensuring major commercial centres, in particular Manchester, are within easy reach.
The apartment itself is presented in simply immaculate order throughout, with little for a new owner to do other than move in their belongings. A real feeling of space is created by the high ceilings and an abundance of natural light fills the generously proportioned living areas, which extend to circa 830 square feet in total. One enters the building via the secure telephone entry system and proceeds via the vast communal areas up to the lift-serviced fifth floor, where one can access the private living spaces; entering via the reception hallway with its feature split-level layout impressing immediately, whilst there is plenty of storage provided by the built-in cupboards and substantial attic-like storage space which has been cleverly created beneath the mezzanine.
One immediately notes the bright and neutral décor which is prevalent throughout, as well as the lovely inviting ambience, as one continues through into the fabulous open plan main living space, the epitome of modern day living and a wonderfully sociable environment for entertaining, with guests able to spill out onto the decked sun terrace via the uPVC double glazed patio doors for an after-dinner cocktail or two in those warm summer evenings. In those colder winter months, the wall-mounted electric fire infuses a more cosy atmosphere, perfectly conducive to those relaxing Saturday evenings with a film and a takeaway. The stylish kitchen is fitted with a range of sleek high-gloss wall and base units in white with complementary laminated work surfaces, and incorporates a host of integrated appliances, including Neff electric oven, halogen hob with extractor canopy, fridge/freezer, dishwasher and washer/dryer.
The 20’ primary bedroom is lovely and spacious and includes a dressing area with built-in wardrobes, whilst the short staircase up to the private three-piece en-suite shower room, provides another delightful quirky feature.
A second double bedroom is sited overlooking the main living space, creating a trendy loft-style feel, and is presently utilised as a comfortable sitting room, with the accommodation completed by the smart main bathroom, which is partially tiled and fitted with a quality three-piece Villeroy and Boch suite in classic white, comprising of WC, pedestal wash hand basin and tiled panelled bath.
Externally, the gated development affords a real feeling of exclusivity, approached via electronically operated gates, with beautifully maintained communal gardens and secure allocated indoor parking facilities. We would highly recommend an internal inspection to fully appreciate the delightful presentation of this lovely home, as well as the sociable community, timeless luxury and lifestyle which 'The Cottonworks' can offer.
- Tenure: Leasehold
- Lease Term: 999 years (less 1 day) from 12th May, 1924
- Years Remaining on Lease: 897
- Ground Rent Payable: £150.00 p.a.
- Service Charge Payable: £3,540 p.a.
- Council Tax: Band B
EPC Rating: C
Brochures
Property Brochure- COUNCIL TAXA payment made to your local authority in order to pay for local services like schools, libraries, and refuse collection. The amount you pay depends on the value of the property.Read more about council Tax in our glossary page.
- Band: B
- LISTED PROPERTYA property designated as being of architectural or historical interest, with additional obligations imposed upon the owner.Read more about listed properties in our glossary page.
- Listed
- PARKINGDetails of how and where vehicles can be parked, and any associated costs.Read more about parking in our glossary page.
- Yes
- GARDENA property has access to an outdoor space, which could be private or shared.
- Ask agent
- ACCESSIBILITYHow a property has been adapted to meet the needs of vulnerable or disabled individuals.Read more about accessibility in our glossary page.
- Ask agent
Holden Mill, Blackburn Road, Bolton
Add an important place to see how long it'd take to get there from our property listings.
__mins driving to your place
Get an instant, personalised result:
- Show sellers you’re serious
- Secure viewings faster with agents
- No impact on your credit score
Your mortgage
Notes
Staying secure when looking for property
Ensure you're up to date with our latest advice on how to avoid fraud or scams when looking for property online.
Visit our security centre to find out moreDisclaimer - Property reference a831e73f-c66a-4b47-96a5-8282100e63fe. The information displayed about this property comprises a property advertisement. Rightmove.co.uk makes no warranty as to the accuracy or completeness of the advertisement or any linked or associated information, and Rightmove has no control over the content. This property advertisement does not constitute property particulars. The information is provided and maintained by Redpath Leach Estate Agents, Bolton. Please contact the selling agent or developer directly to obtain any information which may be available under the terms of The Energy Performance of Buildings (Certificates and Inspections) (England and Wales) Regulations 2007 or the Home Report if in relation to a residential property in Scotland.
*This is the average speed from the provider with the fastest broadband package available at this postcode. The average speed displayed is based on the download speeds of at least 50% of customers at peak time (8pm to 10pm). Fibre/cable services at the postcode are subject to availability and may differ between properties within a postcode. Speeds can be affected by a range of technical and environmental factors. The speed at the property may be lower than that listed above. You can check the estimated speed and confirm availability to a property prior to purchasing on the broadband provider's website. Providers may increase charges. The information is provided and maintained by Decision Technologies Limited. **This is indicative only and based on a 2-person household with multiple devices and simultaneous usage. Broadband performance is affected by multiple factors including number of occupants and devices, simultaneous usage, router range etc. For more information speak to your broadband provider.
Map data ©OpenStreetMap contributors.




