Brewer Road, Cliffe Woods, Rochester

- PROPERTY TYPE
Semi-Detached
- BEDROOMS
3
- BATHROOMS
2
- SIZE
Ask agent
- TENUREDescribes how you own a property. There are different types of tenure - freehold, leasehold, and commonhold.Read more about tenure in our glossary page.
Freehold
Description
Front View of Property
Block paved driveway to front provides off-road parking for two cars. Composite front door and uPVC double glazed glass panel to front. Leads to porch.
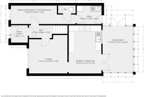
Porch 1.71m (5' 7") x 1.66m (5' 5")
Veneered flooring. Radiator. Internal door leads to inner hallway.
Entrance Hall 1.25m (4' 1") x 2.27m (7' 5")
Veneered flooring. Radiator. Carpeted stairs lead to first floor.
Lounge 3.79m (12' 5") x 3.79m (12' 5")
UPVC double glazed window to front. Grey veneered flooring. Radiator. Cupboard with electric circuit board, gas and electric meters. Opening to kitchen/dining room.
Kitchen/Dining Room 4.76m (15' 7") x 3.23m (10' 7")
UPVC double glazed patio doors to rear leading to conservatory. UPVC double glazed window to rear with view into conservatory. Brand new fully-fitted kitchen fitted in December 2025. Range of wall and base units in grey. 'Flavel' electric range-style double oven and induction top. Spaces for fridge/freezer and washing machine. Extractor fan in stainless steel above range.
Conservatory 4.50m (14' 9") x 3.01m (9' 11")
UPVC double glazed windows and patio door to side. Roof renewed 4 years ago.
Garden
Patio. Steps down to lawn. Landscaped with gravelled area. Timber shed and timber fence surround.
Extension
The extended area could be used as an annex. This was in place when the current seller moved here 8 years ago. This was previously a garage. Comprises the second reception room; WC; and utility.
Additional Reception Room or Fourth Bedroom 1.82m (6' 0") x 5.07m (16' 7")
UPVC double glazed window to rear. Linoleum, wooden-style flooring. Radiator.
Ground Floor Cloakroom 0.78m (2' 7") x 1.73m (5' 8")
White suite with WC and wash-hand basin set on vanity cupboard. Heated towel rail in stainless steel. Linoleum, wooden-style flooring. Half-tiled walls.
Utility 1.82m (6' 0") x 2.45m (8' 0")
UPVC double glazed door to rear leading to garden. Base with inset stainless-steel sink and drainer. Cupboard under and space for washing machine and tumble drier. Matching fitted storage cupboard. Linoleum wooden-style flooring.
First Floor Landing
UPVC double glazed window to side. Grey carpet. Access to loft via hatch. Air conditioning vent. Airing cupboard with combination boiler.
Bedroom One 2.91m (9' 6") x 4.27m (14' 0")
UPVC double glazed window to rear. Grey carpet. Fitted wardrobes. Radiator. Air conditioning vent. Double room.
Bedroom Two 2.59m (8' 6") x 3.40m (11' 2")
UPVC double glazed window to front. Grey carpet and grey décor. Radiator with feature cover. Double room. Air conditioning vent.
Bedroom Three 2.13m (7' 0") x 2.26m (7' 5")
UPVC double glazed windows to front. Radiator. Grey carpet. Grey décor. Single room.
Bathroom 2.08m (6' 10") x 1.64m (5' 5")
UPVC double glazed patterned window to rear. Large shower cubicle with glass screen. This could be converted back to a bath as full-size shower base. Rain shower and hand-held shower over. WC and wash-hand basin set on vanity cupboard. Stainless steel heated towel rail. Ceramic floor tiles.
Further Information
Council Tax: Band C (£1,962 annually)
Local Authority: Medway Council
- COUNCIL TAXA payment made to your local authority in order to pay for local services like schools, libraries, and refuse collection. The amount you pay depends on the value of the property.Read more about council Tax in our glossary page.
- Ask agent
- PARKINGDetails of how and where vehicles can be parked, and any associated costs.Read more about parking in our glossary page.
- Yes
- GARDENA property has access to an outdoor space, which could be private or shared.
- Yes
- ACCESSIBILITYHow a property has been adapted to meet the needs of vulnerable or disabled individuals.Read more about accessibility in our glossary page.
- Ask agent
Brewer Road, Cliffe Woods, Rochester
Add an important place to see how long it'd take to get there from our property listings.
__mins driving to your place
Get an instant, personalised result:
- Show sellers you’re serious
- Secure viewings faster with agents
- No impact on your credit score
Your mortgage
Notes
Staying secure when looking for property
Ensure you're up to date with our latest advice on how to avoid fraud or scams when looking for property online.
Visit our security centre to find out moreDisclaimer - Property reference HER1RS1903. The information displayed about this property comprises a property advertisement. Rightmove.co.uk makes no warranty as to the accuracy or completeness of the advertisement or any linked or associated information, and Rightmove has no control over the content. This property advertisement does not constitute property particulars. The information is provided and maintained by Heritage Estates, Southfleet. Please contact the selling agent or developer directly to obtain any information which may be available under the terms of The Energy Performance of Buildings (Certificates and Inspections) (England and Wales) Regulations 2007 or the Home Report if in relation to a residential property in Scotland.
*This is the average speed from the provider with the fastest broadband package available at this postcode. The average speed displayed is based on the download speeds of at least 50% of customers at peak time (8pm to 10pm). Fibre/cable services at the postcode are subject to availability and may differ between properties within a postcode. Speeds can be affected by a range of technical and environmental factors. The speed at the property may be lower than that listed above. You can check the estimated speed and confirm availability to a property prior to purchasing on the broadband provider's website. Providers may increase charges. The information is provided and maintained by Decision Technologies Limited. **This is indicative only and based on a 2-person household with multiple devices and simultaneous usage. Broadband performance is affected by multiple factors including number of occupants and devices, simultaneous usage, router range etc. For more information speak to your broadband provider.
Map data ©OpenStreetMap contributors.






