Aldridge Road, Ferndown, Dorset, BH22

- PROPERTY TYPE
Apartment
- BEDROOMS
2
- BATHROOMS
1
- SIZE
Ask agent
Key features
- 2 Bedrooms
- Lounge/Dining Room
- Balcony
- Kitchen/Breakfast Room
- Wet Room
- Garage
Description
Share of Freehold | Chain Free | Two Bedroom First Floor Apartment | Garage & Parking
Situated within the highly regarded Greenways Court development, this well-proportioned two bedroom first floor apartment offers generous living space, a peaceful setting, and delightful views across the adjacent golf course. Offered freehold and chain free, the property presents an excellent opportunity for a straightforward purchase.
The apartment opens into a welcoming entrance hall leading through to a spacious lounge/dining room, providing ample room for both comfortable seating and a full dining suite. Large windows and a glazed door allow natural light to flood the space, with direct access onto a private balcony. The balcony enjoys open views overlooking the golf course, creating a tranquil outlook and an ideal space to relax or enjoy morning coffee in peaceful surroundings.
The kitchen/breakfast room is well laid out with a practical range of fitted units and work surfaces, offering space for everyday dining. The room is bright and functional, ideal for both casual meals and more involved cooking.
The master bedroom is a particularly good size and benefits from built-in wardrobes, providing excellent storage while maintaining a clean, uncluttered feel. A further generous guest bedroom offers flexibility for visiting family, a home office, or hobby room. The accommodation is completed by a modern wet room, designed for ease of access and practicality.
Externally, the property benefits from a private garage with a parking space directly in front, offering both convenience and additional storage potential. The development itself is known for its quiet, secure, and well-maintained environment, making it especially appealing to those seeking a peaceful lifestyle.
Location
Greenways Court is positioned on Aldridge Road in Ferndown, a sought-after Dorset town known for its strong community feel and excellent local amenities. The property is within easy reach of Ferndown town centre, which offers a range of shops, cafés, and everyday services. The nearby golf course provides an attractive green backdrop, while surrounding woodland and countryside offer pleasant walks. Bournemouth and the award-winning sandy beaches are a short drive away, and there are convenient transport links to the wider Dorset area and beyond.
This is a superb opportunity to acquire a spacious, well-located apartment in a quiet and desirable setting with the added benefit of freehold ownership and no onward chain.
Viewing is highly recommended to fully appreciate the size and potential of this property.
Buyer Process: Our customers use British Homebuyers to either purchase or assist in selling properties quickly and reliably. Therefore any new applicants to purchase are subject to vetting to ensure they meet strict criteria.
Exclusivity Fee:
You can secure the purchase by paying an exclusivity fee of £2,000. This grants the buyer exclusive rights to proceed with the purchase for the duration of the conveyancing process, during which time the seller agrees to remove the property from the market and not negotiate with other parties.
The exclusivity fee is returned to the buyer upon successful completion of the purchase.
A processing fee of £200 is required in order to draw up an exclusive legally binding contract between the buyer and seller. This agreement sets out the terms of exclusivity and seller commitment but does not constitute an exchange of contracts.
This arrangement provides buyers with reassurance that the property is secured exclusively for them, reducing the risk of gazumping and unnecessary aborted costs.
Disclaimer
The particulars are set out as a general outline only for the guidance of intended purchasers and do not constitute, any part of a contract. Nothing in these particulars shall be deemed to be a statement that the property is in good structural condition or otherwise nor that any of the services, appliances, equipment or facilities are in good working order. Purchasers should satisfy themselves of this prior to purchasing. The photograph(s) depict only certain parts of the property. It should not be assumed that any contents/furniture etc. photographed are included in the sale. It should not be assumed that the property remains as displayed in the photograph(s). No assumption should be made with regard to parts of the property that have not been photographed. Any areas, measurements, aspects or distances referred to are given as a GUIDE ONLY and are NOT precise. If such details are fundamental to a purchase, purchasers must rely on their own enquiries. Descriptions of the property are subjective and are used in good faith as an opinion and NOT as a statement of fact. Please make further inquiries to ensure that our descriptions are likely to match any expectations you may have.
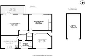
Lounge/dining room
5.64m x 4.4m
Balcony
4.95m x 1.73m
Master Bedroom
4.75m x 3.4m
Kitchen/breakfast room
3.6m x 2.7m
wet room
2.8m x 1.65m
Guest bedroom
3.94m x 3.18m
Garage
5.16m x 2.74m
- COUNCIL TAXA payment made to your local authority in order to pay for local services like schools, libraries, and refuse collection. The amount you pay depends on the value of the property.Read more about council Tax in our glossary page.
- Band: TBC
- PARKINGDetails of how and where vehicles can be parked, and any associated costs.Read more about parking in our glossary page.
- Yes
- GARDENA property has access to an outdoor space, which could be private or shared.
- Ask agent
- ACCESSIBILITYHow a property has been adapted to meet the needs of vulnerable or disabled individuals.Read more about accessibility in our glossary page.
- Ask agent
Aldridge Road, Ferndown, Dorset, BH22
Add an important place to see how long it'd take to get there from our property listings.
__mins driving to your place
Get an instant, personalised result:
- Show sellers you’re serious
- Secure viewings faster with agents
- No impact on your credit score
Affordability
Notes
Staying secure when looking for property
Ensure you're up to date with our latest advice on how to avoid fraud or scams when looking for property online.
Visit our security centre to find out moreDisclaimer - Property reference BHO260269. The information displayed about this property comprises a property advertisement. Rightmove.co.uk makes no warranty as to the accuracy or completeness of the advertisement or any linked or associated information, and Rightmove has no control over the content. This property advertisement does not constitute property particulars. The information is provided and maintained by British Homesellers, National. Please contact the selling agent or developer directly to obtain any information which may be available under the terms of The Energy Performance of Buildings (Certificates and Inspections) (England and Wales) Regulations 2007 or the Home Report if in relation to a residential property in Scotland.
*This is the average speed from the provider with the fastest broadband package available at this postcode. The average speed displayed is based on the download speeds of at least 50% of customers at peak time (8pm to 10pm). Fibre/cable services at the postcode are subject to availability and may differ between properties within a postcode. Speeds can be affected by a range of technical and environmental factors. The speed at the property may be lower than that listed above. You can check the estimated speed and confirm availability to a property prior to purchasing on the broadband provider's website. Providers may increase charges. The information is provided and maintained by Decision Technologies Limited. **This is indicative only and based on a 2-person household with multiple devices and simultaneous usage. Broadband performance is affected by multiple factors including number of occupants and devices, simultaneous usage, router range etc. For more information speak to your broadband provider.
Map data ©OpenStreetMap contributors.




