
Moss Lane, Sandbach, CW11
- PROPERTY TYPE
Land
- BEDROOMS
4
- SIZE
Ask agent
Key features
- Development Opportunity
- Create that dream home
- Open views to the rear
- Detailed Planning Consent
- Four bedroom home
- Superb location
Description
Many people dream about creating their own bespoke home, taking a property and extensively developing it to suit their own needs and style of living. These types of opportunity are hard to find and the ones that do exist often need a compromise.........until now.........
Ideal property checklist:
* Sizeable plot
* Planning consent in place
* Enviable location
* Opens views
* Liveable as it stands - your best final design will come after living in the home and working out how to make it flow and work to your specific needs
All these points are satisfied by our lovely development opportunity at Moss Lane, Sandbach.
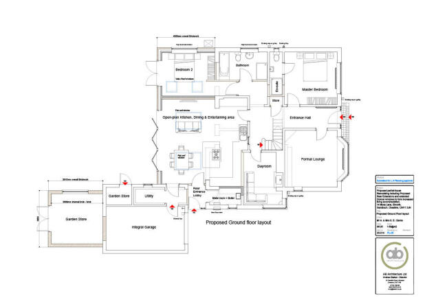
Ideally located on a quiet road with easy access to Sandbach, private views to the front and open views to the rear. Large plot currently with a true detached bungalow and current planning consent for development (Cheshire East Planning Portal 25/2538/HOUS)
Current plans provide a property in the region of 2000 square foot with the addition of a dormer extension.
Contact our team to discuss this fantastic opportunity.
Moss Lane, Sandbach, CW11
NEAREST STATIONS
Distances are straight line measurements from the centre of the postcode- Sandbach Station0.1 miles
- Holmes Chapel Station3.8 miles
- Crewe Station4.6 miles
Notes
Disclaimer - Property reference P2403. The information displayed about this property comprises a property advertisement. Rightmove.co.uk makes no warranty as to the accuracy or completeness of the advertisement or any linked or associated information, and Rightmove has no control over the content. This property advertisement does not constitute property particulars. The information is provided and maintained by BESPOKE, Sandbach. Please contact the selling agent or developer directly to obtain any information which may be available under the terms of The Energy Performance of Buildings (Certificates and Inspections) (England and Wales) Regulations 2007 or the Home Report if in relation to a residential property in Scotland.
Map data ©OpenStreetMap contributors.







