
Paulet Road, London, SE5

- PROPERTY TYPE
Flat
- BEDROOMS
1
- BATHROOMS
1
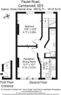
- SIZE
489 sq ft
45 sq m
Key features
- One Bedroom Flat
- Period Conversion
- Top Floor
- Close to Myatt's Field
- Share of Freehold
Description
A well-presented one-bedroom flat on the top floor of a period conversion, with a share of freehold and close to the delightful Myatt’s Fields Park! Chain free!
Internally you are presented with a good sized reception room, with plenty of space for relaxing and for a small dining table and chairs. There is a large window providing ample natural light, a pretty original feature fireplace and some shelving and storage built into one of the alcoves. The chic and timeless style kitchen has white wall and base units with a paneled effect, butchers block work tops, a white metro tiled splash back and a built in oven and hob. The bedroom is bright and airy with space for a double bed and for additional furniture. There is a modern and smart bathroom with a shower, a WC and a sink with storage underneath.
Myatt's Field (0.2 miles away) with its tennis courts, state-of-the-art play areas, and boutique community café are around the corner. Brixton tube station (Victoria line) is your nearest tube (1 mile), Loughborough Junction station (Thameslink) is the nearest (0.4 miles) overground service and Denmark Hill station (0.9 miles), with services fast to Victoria and the South-East coast and the Overground between Clapham Junction and Highbury and Islington via Shoreditch. Camberwell is well known for its art scene and has an ever-growing number of cafes, galleries, bars, and restaurants that attract a real buzz on the weekend. Brixton is now one of London’s hottest nightspots and a real foodie haven. Eat cuisine from every corner of the globe before heading out for cocktails.
Tenure: Share of Freehold
Council Tax band: C
Authority: London Borough of Lambeth
Lease length: 99 years remaining (Started in 2000 with a lease of 125 years.)
Ground rent: Not payable
Service charge: As and when required
Buildings insurance: £265.83 approx per annum
Construction: Standard construction
Property type: Flat
Number of floors in building: 3
Entrance on floor: 3
Has lift: No
Over commercial premises: No
Parking: On street, permit required
Electricity: Mains electricity
Water and drainage: Connected to mains water supply
Mains surface water drainage: Yes
Sewerage: Connected to mains sewerage
Heating: Central heating
Building safety issues: None
Lease restrictions: None
Public right of way through and/or across your house, buildings or land: No
Flood risk: No
History of flooding: No
Planning and development: None
Listing and conservation: None
Accessibility: None
Mining: No coal mining risk identified
Should you wish to proceed with an offer on this property, we are obligated by HMRC to conduct mandatory Anti-Money Laundering (AML) checks. We outsource these checks to our compliance partners at Coadjute, who charge a fee of £30 + VAT per person for this service. This cost is payable by the buyer and applies to each individual buyer, as well as to any person gifting funds towards the purchase.
Brochures
Paulet Road, London, SE5Rightmove- COUNCIL TAXA payment made to your local authority in order to pay for local services like schools, libraries, and refuse collection. The amount you pay depends on the value of the property.Read more about council Tax in our glossary page.
- Band: C
- PARKINGDetails of how and where vehicles can be parked, and any associated costs.Read more about parking in our glossary page.
- Permit
- GARDENA property has access to an outdoor space, which could be private or shared.
- Ask agent
- ACCESSIBILITYHow a property has been adapted to meet the needs of vulnerable or disabled individuals.Read more about accessibility in our glossary page.
- Ask agent
Paulet Road, London, SE5
Add an important place to see how long it'd take to get there from our property listings.
__mins driving to your place
Get an instant, personalised result:
- Show sellers you’re serious
- Secure viewings faster with agents
- No impact on your credit score
Affordability
Notes
Staying secure when looking for property
Ensure you're up to date with our latest advice on how to avoid fraud or scams when looking for property online.
Visit our security centre to find out moreDisclaimer - Property reference 34494784. The information displayed about this property comprises a property advertisement. Rightmove.co.uk makes no warranty as to the accuracy or completeness of the advertisement or any linked or associated information, and Rightmove has no control over the content. This property advertisement does not constitute property particulars. The information is provided and maintained by Hunters, Camberwell. Please contact the selling agent or developer directly to obtain any information which may be available under the terms of The Energy Performance of Buildings (Certificates and Inspections) (England and Wales) Regulations 2007 or the Home Report if in relation to a residential property in Scotland.
*This is the average speed from the provider with the fastest broadband package available at this postcode. The average speed displayed is based on the download speeds of at least 50% of customers at peak time (8pm to 10pm). Fibre/cable services at the postcode are subject to availability and may differ between properties within a postcode. Speeds can be affected by a range of technical and environmental factors. The speed at the property may be lower than that listed above. You can check the estimated speed and confirm availability to a property prior to purchasing on the broadband provider's website. Providers may increase charges. The information is provided and maintained by Decision Technologies Limited. **This is indicative only and based on a 2-person household with multiple devices and simultaneous usage. Broadband performance is affected by multiple factors including number of occupants and devices, simultaneous usage, router range etc. For more information speak to your broadband provider.
Map data ©OpenStreetMap contributors.








