
Sandiways, Maghull, L31 6DR

- PROPERTY TYPE
Terraced
- BEDROOMS
3
- BATHROOMS
1
- SIZE
Ask agent
- TENUREDescribes how you own a property. There are different types of tenure - freehold, leasehold, and commonhold.Read more about tenure in our glossary page.
Freehold
Key features
- 3 BEDROOM PROPERTY
- QUIET CUL-DE-SAC LOCATION
- OVERLOOKING PLAYING FIELDS AND PARK
- WONDERFUL, FAMILY OPEN PLAN LIVING ACCOMODATION
- GREAT LOCATION FOR SCHOOLS AND AMENITIES
- NOT OVERLOOKED FROM FRONT OR REAR
- EASY MAINTENANCE ASTRO TURF GARDEN
- SEVERAL PARKING OPTIONS
- FREEHOLD
- COUNCIL TAX BAND - B
Description
EXTENDED THREE BEDROOM PROPERTY NOT OVERLOOKED TO THE REAR OR FRONT, PRIVATE LOCATION, THE PROPERTY BACKS ONTO A BEAUTIFUL PARK AREA. .
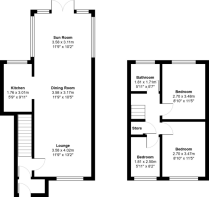
Situated in a tucked away location, sits this three bedroom semi detached house which offers spacious family accommodation throughout. The property is ideally situated for the local schools, transport links and shops in both Maghull Square and on Deyes Lane. The accommodation comprises entrance porch, open plan lounge, dining room, kitchen and conservatory areas, three bedrooms and a bathroom. The ground floor is currently all open plan, providing a wonderfully spacious family living area, although it could be changed to separate rooms if preferred. The property enjoys a lovely enclosed garden to the rear which enjoys a sunny aspect and is easy maintenance with astro-turf and handy, garden shed. Looking out on to the Green, the property enjoys a pleasant outlook and we would really encourage an early viewing to avoid disappointment.
PORCH Double glazed Upvc door and side window. wall light. Laminate floor. Door leading into
LOUNGE Double glazed Upvc window to the front overlooking the Green area. Feature, open gas fire with granite style mantle and surround. Meter cupboard. Television point. Radiator.
DINING ROOM/CONSERVATORY Double glazed Upvc French doors with double glazed Upvc floor to ceiling side panels leading out to the rear garden. Laminate flooring. Space for a large family dining table and dining furniture. Radiator. Opening through to the
KITCHEN Double glazed Upvc window overlooking the garden. Range of wall and base units incorporating worksurfaces with inset stainless steel sink and drainer with mixer tap over. Integrated oven with four ring gas hob and extractor hood over. Space for fridge freezer and dryer. Plumbing and space for washing machine. Tiled splash backs. Tiled floor.
LANDING Cupboard over the stairs currently used as wardrobe for front bedroom three. Doors off to various rooms. Loft access.
REAR BEDROOM ONE Double glazed Upvc window to the rear. Built in wardrobe. Radiator. Views over the park and playing fields.
FRONT BEDROOM TWO Double glazed Upvc window to the front overlooking the Green. Built in double wardrobe. Radiator.
FRONT BEDROOM THREE Double glazed Upvc window to the front overlooking the Green. Radiator.
BATHROOM Obscured double glazed Upvc window to the rear. Suite comprising bath with electric shower over, wash hand basin set in vanity unit with cupboard below and WC. Tiled splash backs. Tiled floor.
FRONT The property is approached to the front by a pedestrian pathway. There is a beautiful lawned garden.
REAR To the rear of the property is the main garden. Easily maintained astro-turf lawn, with play areas, seated areas and garden shed. Not over looked and a lovely, sunny aspect.
Brochures
Brochure 1- COUNCIL TAXA payment made to your local authority in order to pay for local services like schools, libraries, and refuse collection. The amount you pay depends on the value of the property.Read more about council Tax in our glossary page.
- Band: B
- PARKINGDetails of how and where vehicles can be parked, and any associated costs.Read more about parking in our glossary page.
- Yes
- GARDENA property has access to an outdoor space, which could be private or shared.
- Yes
- ACCESSIBILITYHow a property has been adapted to meet the needs of vulnerable or disabled individuals.Read more about accessibility in our glossary page.
- Ask agent
Sandiways, Maghull, L31 6DR
Add an important place to see how long it'd take to get there from our property listings.
__mins driving to your place
Get an instant, personalised result:
- Show sellers you’re serious
- Secure viewings faster with agents
- No impact on your credit score
Your mortgage
Notes
Staying secure when looking for property
Ensure you're up to date with our latest advice on how to avoid fraud or scams when looking for property online.
Visit our security centre to find out moreDisclaimer - Property reference S1634519. The information displayed about this property comprises a property advertisement. Rightmove.co.uk makes no warranty as to the accuracy or completeness of the advertisement or any linked or associated information, and Rightmove has no control over the content. This property advertisement does not constitute property particulars. The information is provided and maintained by Alastair Saville, Maghull. Please contact the selling agent or developer directly to obtain any information which may be available under the terms of The Energy Performance of Buildings (Certificates and Inspections) (England and Wales) Regulations 2007 or the Home Report if in relation to a residential property in Scotland.
*This is the average speed from the provider with the fastest broadband package available at this postcode. The average speed displayed is based on the download speeds of at least 50% of customers at peak time (8pm to 10pm). Fibre/cable services at the postcode are subject to availability and may differ between properties within a postcode. Speeds can be affected by a range of technical and environmental factors. The speed at the property may be lower than that listed above. You can check the estimated speed and confirm availability to a property prior to purchasing on the broadband provider's website. Providers may increase charges. The information is provided and maintained by Decision Technologies Limited. **This is indicative only and based on a 2-person household with multiple devices and simultaneous usage. Broadband performance is affected by multiple factors including number of occupants and devices, simultaneous usage, router range etc. For more information speak to your broadband provider.
Map data ©OpenStreetMap contributors.







