Skip to content

Provence-Alps-Cote d`Azur, Vaucluse, St-Saturnin-lès-Apt, France

£1,434,015
€1,650,000
Maison Victoire, Luberon and Ventoux
PROPERTY TYPE

House

BEDROOMS

4

BATHROOMS

3

SIZE

1,722 sq ft

160 sq m

Description

Perched above the village of Saint-Saturnin-lès-Apt, in the heart of unspoilt oak woodland, this contemporary property enjoys spectacular, panoramic views over the village, the Alpilles and the Mourre Nègre. Every element of this property has been thoughtfully conceived to complement its exceptional location. The house also offers superb volumes, bathed in light, where the elegance of contemporary style blends perfectly with the Provencal environment.



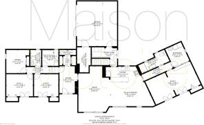
The single-storey property: spacious and bright living space combining kitchen, dining room and sitting room in a seamless flow, enhanced by large bay windows opening onto the terrace with stunning views; principal suite with walk-in shower room, WC, dressing room and laundry room; two additional bedrooms - one with en suite bathroom, the other with adjoining shower room and WC; fourth bedroom, currently used as an office; guest WC; utility room; large garage; cellar.



Outdoors, the Mediterranean garden, generously planted with local species - lavender, olive trees and typical garrigue flora - blends naturally into the surrounding unspoilt and profoundly authentic Provençal landscape. The main terrace, equipped with an electric awning, overlooks a breathtaking view. An 11m x 5m tiled swimming pool blends elegantly into the landscape, while at the rear of the house, a more intimate courtyard space would be perfect for a vegetable garden.



Amenities include: double-flow ventilation with heating and cooling function - heat pump; triple glazing; water softener; alarm; septic tank - conform to regulation; fibre optic internet; electrical charging station. Thanks to the careful design of its openings (windows and shutters) and its optimized insulation, the house comes as close as possible to meeting passive house standards.



Just a stone's throw from the village, accessible via a charming walking path , this property combines fabulous natural surroundings, meticulous finishings, quality features and spectacular views. A house where every detail has been carefully considered to honour the beauty of its setting.

Provence-Alps-Cote d`Azur, Vaucluse, St-Saturnin-lès-Apt, France

Approximate location

NEAREST AIRPORTS

Distances are straight line measurements
  • Provence(International)
    35.6 miles
  • Nîmes (Garons)(International)
    50.3 miles
  • Toulon (Le Palyvestre)(International)
    70.4 miles
  • Méditerranée(International)
    75.1 miles
  • Nice Côte d`Azur(International)
    93.7 miles

Advice on buying French property

Learn everything you need to know to successfully find and buy a property in France.

About Maison Victoire, Luberon and Ventoux

Place de l'Ancienne Mairie 84220 Cabrières d'Avignon

Who we are

Founded in 2007 by Directrice, Victoria Templeman, Maison Victoire is a friendly, helpful and attentive bilingual estate agency based in Cabrières-d’Avignon, a pretty Provençal village in the heart of the Luberon National Park.

With extensive knowledge of the region, the Maison Victoire team’s professionalism and expertise is invaluable in ensuring an excellent level of service is provided to our clients. We are passionate about this beautiful part of the world and we make it our priority to find you the best property at the right price.

What we do

Maison Victoire was originally located in L’Isle-Sur-La-Sorgue - a town famed for its wonderful antiques markets and pretty network of river canals.

The agency manages property sales across the department of the Vaucluse, including in the picturesque hillside villages of Gordes, Goult, Ménerbes, Roussillon, Lacoste and Bonnieux as well as Mont Ventoux and, of course, L’Isle-sur-La-Sorgue itself. We can also search further afield to Les Alpilles, Avignon, Aix-en-Provence, and areas of the Mediterranean coast. And we can even help you find commercial premises, or an already thriving going concern for sale, if you would like to set up business in the area.

We offer a comprehensive property search service, tailored to your requirements, which allows us to match your criteria within our own portfolio and includes inter-agency search as well. (In inter agency search, the normal agency fee is divided between Maison Victoire and the agency holding the property, so the buyer will not pay any extra fees.)

Maison Victoire is always looking for innovative ways to provide our clients with the best possible service. So in 2020, we have launched our state-of-the-art Virtual Visits with all new mandates. This new digital service allows sellers to showcase their homes to best advantage and gives buyers an opportunity to “walk through” a property at leisure.

We help non-French speakers through the complex French property system and we can arrange translations and organise interpreters for a wide range of other languages.

Additionally, our comprehensive after sales service helps our buyers negotiate with contacts for removals, renovation or facilitate introductions to English-speaking locals.

Our Credentials

• Qualified and experienced in French property sales

• Fully matriculated and regulated under the French legal system

• We hold a “carte professionnelle”, meaning we can legally conduct the entire sales process without charging you any finder’s fee - instead, we take a commission on the sale

Notes

These notes are private, only you can see them.

This is a property advertisement provided and maintained by Maison Victoire, Luberon and Ventoux (reference V03046.01356L) and does not constitute property particulars. Whilst we require advertisers to act with best practice and provide accurate information, we can only publish advertisements in good faith and have not verified any claims or statements or inspected any of the properties, locations or opportunities promoted. Rightmove does not own or control and is not responsible for the properties, opportunities, website content, products or services provided or promoted by third parties and makes no warranties or representations as to the accuracy, completeness, legality, performance or suitability of any of the foregoing. We therefore accept no liability arising from any reliance made by any reader or person to whom this information is made available to. You must perform your own research and seek independent professional advice before making any decision to purchase or invest in overseas property.

Email agent

Email agent