Provence-Alps-Cote d`Azur, Vaucluse, Gordes, France
- PROPERTY TYPE
House
- BEDROOMS
3
- BATHROOMS
3
- SIZE
2,551 sq ft
237 sq m
Description
A newly installed heat exchanger powers the underfloor heating and cooling system, with additional air conditioning in the bedrooms?ensuring efficient and consistent climate control throughout the property.
A spacious entrance hall leads into the impressive 100 m² open-plan area, which flows effortlessly towards the sun-drenched pool terrace, the inviting covered outdoor living space, or the tranquil olive grove. This expansive area includes a kitchen, dining area, and sitting room with traditional open-fireplace, while the library/games room is adorned with a striking high vaulted ceiling, adding an extra layer of charm. The ground floor also features a spacious ensuite bedroom, which boasts independent access to the south-facing terrace, offering both privacy and practicality with easy access to the gardens and grounds.
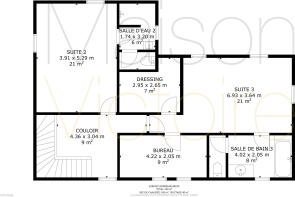
The first floor offers two additional suites and a well-appointed office, all featuring generous proportions and elegant décor that reflects the refined character of the property.
The timeless natural stone Dordogne floors, reclaimed wooden beams, and elegant French ceilings are just a few of the exquisite features that contribute to the exceptional atmosphere of this outstanding property.
Provence-Alps-Cote d`Azur, Vaucluse, Gordes, France
NEAREST AIRPORTS
Distances are straight line measurements- Provence(International)32.4 miles
- Nîmes (Garons)(International)41.3 miles
- Méditerranée(International)66.2 miles
- Toulon (Le Palyvestre)(International)74.2 miles
Advice on buying French property
Learn everything you need to know to successfully find and buy a property in France.
Notes
This is a property advertisement provided and maintained by Maison Victoire, Luberon and Ventoux (reference V03029.01728L) and does not constitute property particulars. Whilst we require advertisers to act with best practice and provide accurate information, we can only publish advertisements in good faith and have not verified any claims or statements or inspected any of the properties, locations or opportunities promoted. Rightmove does not own or control and is not responsible for the properties, opportunities, website content, products or services provided or promoted by third parties and makes no warranties or representations as to the accuracy, completeness, legality, performance or suitability of any of the foregoing. We therefore accept no liability arising from any reliance made by any reader or person to whom this information is made available to. You must perform your own research and seek independent professional advice before making any decision to purchase or invest in overseas property.





