
Primroses, Deeping St James, Market Deeping, PE6

- PROPERTY TYPE
End of Terrace
- BEDROOMS
2
- BATHROOMS
1
- SIZE
Ask agent
- TENUREDescribes how you own a property. There are different types of tenure - freehold, leasehold, and commonhold.Read more about tenure in our glossary page.
Freehold
Key features
- No Chain
- Cul-de-Sac Location
- Off Road Parking
- Enclosed Garden
Description
Offered for sale with no chain and situated at the end of a small cul-de-sac, this two bedroom end of terrace home benefits from having gas-fired central heating, lounge/dining room, enclosed garden and off-road parking to the side. Call the Briggs Residential team now to book your viewing.
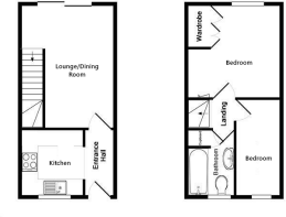
ENTRANCE
Front entrance door opening to
HALLWAY
LOUNGE/DINING ROOM
With radiator, TV point, stairs leading to first floor, window to rear elevation and door to rear garden.
KITCHEN
8’6 x 8’ (2.59m x 2.44m)
With a range of wall and base units, work surface, wall tiling, sink unit, cooker point, plumbing for washing machine, space for fridge and window to front elevation.
LANDING
BEDROOM ONE
12’8 x 11’11 (3.86m x 3.63m)
With radiator and window to rear elevation.
BEDROOM TWO
11’6 x 5’10 (3.51m x 1.78m)
With radiator and window to front elevation.
BATHROOM
Comprising panelled bath, WC, wash-hand basin, radiator and window to front elevation.
OUTSIDE
The property has an enclosed garden to the rear which is mainly laid to lawn and has parking spaces to the side.
ANTI-MONEY LAUNDERING REGULATIONS
Intending Purchasers will be required to provide identification documentation via our compliance provider Coadjute, at a cost of £48 (incl. VAT) per person. This will need to be actioned at the offer stage and we would ask for your cooperation in order that there are no delays in sending out our sales confirmation letters.
Brochures
Brochure 1- COUNCIL TAXA payment made to your local authority in order to pay for local services like schools, libraries, and refuse collection. The amount you pay depends on the value of the property.Read more about council Tax in our glossary page.
- Band: A
- PARKINGDetails of how and where vehicles can be parked, and any associated costs.Read more about parking in our glossary page.
- Yes
- GARDENA property has access to an outdoor space, which could be private or shared.
- Yes
- ACCESSIBILITYHow a property has been adapted to meet the needs of vulnerable or disabled individuals.Read more about accessibility in our glossary page.
- Ask agent
Primroses, Deeping St James, Market Deeping, PE6
Add an important place to see how long it'd take to get there from our property listings.
__mins driving to your place
Get an instant, personalised result:
- Show sellers you’re serious
- Secure viewings faster with agents
- No impact on your credit score



Affordability
Notes
Staying secure when looking for property
Ensure you're up to date with our latest advice on how to avoid fraud or scams when looking for property online.
Visit our security centre to find out moreDisclaimer - Property reference 30024816. The information displayed about this property comprises a property advertisement. Rightmove.co.uk makes no warranty as to the accuracy or completeness of the advertisement or any linked or associated information, and Rightmove has no control over the content. This property advertisement does not constitute property particulars. The information is provided and maintained by Briggs Residential, Market Deeping. Please contact the selling agent or developer directly to obtain any information which may be available under the terms of The Energy Performance of Buildings (Certificates and Inspections) (England and Wales) Regulations 2007 or the Home Report if in relation to a residential property in Scotland.
*This is the average speed from the provider with the fastest broadband package available at this postcode. The average speed displayed is based on the download speeds of at least 50% of customers at peak time (8pm to 10pm). Fibre/cable services at the postcode are subject to availability and may differ between properties within a postcode. Speeds can be affected by a range of technical and environmental factors. The speed at the property may be lower than that listed above. You can check the estimated speed and confirm availability to a property prior to purchasing on the broadband provider's website. Providers may increase charges. The information is provided and maintained by Decision Technologies Limited. **This is indicative only and based on a 2-person household with multiple devices and simultaneous usage. Broadband performance is affected by multiple factors including number of occupants and devices, simultaneous usage, router range etc. For more information speak to your broadband provider.
Map data ©OpenStreetMap contributors.





