
Craigpark Drive - G31 2NP

- PROPERTY TYPE
Flat
- BEDROOMS
1
- BATHROOMS
1
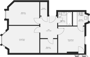
- SIZE
743 sq ft
69 sq m
- TENUREDescribes how you own a property. There are different types of tenure - freehold, leasehold, and commonhold.Read more about tenure in our glossary page.
Freehold
Key features
- 1-bedroom first-floor flat with potential to convert to 2 bedrooms
- Located in the highly sought-after Dennistoun area
- Retains original features and excellent storage
- Walking distance to Alexandra Parade Station & amenities
- Ideal opportunity to add value and modernise
Description
David Dunn at Time 2 Sell Estate Agents is proud to present this traditional first-floor 1-bedroom tenement flat, situated on Craigpark Drive in the highly sought-after area of Dennistoun.
Set within a classic red sandstone tenement building, this property boasts high ceilings and original features, offering fantastic character and space throughout. While the home requires upgrading throughout, it presents an excellent opportunity for first-time buyers, investors, or anyone looking to add value and put their own stamp on a property in a prime location.
The accommodation is entered via a central hallway with a large storage cupboard, which offers potential to be reconfigured into an internal kitchen — creating scope to convert the property into a 2-bedroom layout
There is a bright and spacious lounge, a kitchen/diner (which could be used as a second bedroom), and a convenient utility area just off the kitchen. The property also features a generous double bedroom and a family-sized bathroom with electric shower over the bath.
The home retains original features and benefits from excellent storage throughout.
Externally, the property benefits from a secure communal entrance, on-street parking, and a communal rear garden.
Local Schooling:
The property is well placed for Alexandra Parade Primary School and Whitehill Secondary School, with Catholic schooling available at St Denis’ Primary School and St Mungo’s Academy.
Transport Links:
Craigpark Drive is ideally positioned within walking distance of Alexandra Parade Train Station, offering quick access to Glasgow City Centre and beyond. Regular bus services operate along Alexandra Parade, and the property also benefits from easy access to the M8 motorway network.
Local Area & Amenities:
Dennistoun is one of Glasgow’s most desirable neighbourhoods, offering a wide range of cafés, restaurants, bars, and independent shops along Alexandra Parade and Duke Street. Nearby green spaces include Alexandra Park, while the City Centre is within easy reach.
Early viewing is highly recommended – contact David Dunn at Time 2 Sell Estate Agents today to arrange your appointment.
For Instant email with Home Report and Viewings - Enquire online through any major portals
Viewings
Viewing is strictly by appointment only.
Call David Dunn, Time 2 Sell Estate Agents, today to arrange your viewing.
Offers
Formal offers are invited. All offers and intimations of interest should be submitted in writing to:
David Dunn, Time 2 Sell Estate Agents, 17 Fitzroy Place, Glasgow, G3 7RW.
Have a property to sell?
Contact me today to arrange a FREE no-obligation valuation for your property.
- COUNCIL TAXA payment made to your local authority in order to pay for local services like schools, libraries, and refuse collection. The amount you pay depends on the value of the property.Read more about council Tax in our glossary page.
- Band: B
- PARKINGDetails of how and where vehicles can be parked, and any associated costs.Read more about parking in our glossary page.
- Yes
- GARDENA property has access to an outdoor space, which could be private or shared.
- Communal garden
- ACCESSIBILITYHow a property has been adapted to meet the needs of vulnerable or disabled individuals.Read more about accessibility in our glossary page.
- Ask agent
Energy performance certificate - ask agent
Craigpark Drive - G31 2NP
Add an important place to see how long it'd take to get there from our property listings.
__mins driving to your place
Get an instant, personalised result:
- Show sellers you’re serious
- Secure viewings faster with agents
- No impact on your credit score
About Time 2 Sell Estate Agents, Covering Central Scotland
1 Macdowall Street Suite 4.3 Paisley PA3 2NB

Your mortgage
Notes
Staying secure when looking for property
Ensure you're up to date with our latest advice on how to avoid fraud or scams when looking for property online.
Visit our security centre to find out moreDisclaimer - Property reference 0338ca9a-5ce0-4696-9f9e-c19ad91f6e67. The information displayed about this property comprises a property advertisement. Rightmove.co.uk makes no warranty as to the accuracy or completeness of the advertisement or any linked or associated information, and Rightmove has no control over the content. This property advertisement does not constitute property particulars. The information is provided and maintained by Time 2 Sell Estate Agents, Covering Central Scotland. Please contact the selling agent or developer directly to obtain any information which may be available under the terms of The Energy Performance of Buildings (Certificates and Inspections) (England and Wales) Regulations 2007 or the Home Report if in relation to a residential property in Scotland.
*This is the average speed from the provider with the fastest broadband package available at this postcode. The average speed displayed is based on the download speeds of at least 50% of customers at peak time (8pm to 10pm). Fibre/cable services at the postcode are subject to availability and may differ between properties within a postcode. Speeds can be affected by a range of technical and environmental factors. The speed at the property may be lower than that listed above. You can check the estimated speed and confirm availability to a property prior to purchasing on the broadband provider's website. Providers may increase charges. The information is provided and maintained by Decision Technologies Limited. **This is indicative only and based on a 2-person household with multiple devices and simultaneous usage. Broadband performance is affected by multiple factors including number of occupants and devices, simultaneous usage, router range etc. For more information speak to your broadband provider.
Map data ©OpenStreetMap contributors.





