Queens Road, Poole, BH14

- PROPERTY TYPE
Detached
- BEDROOMS
3
- BATHROOMS
1
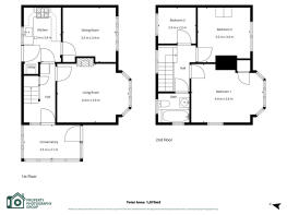
- SIZE
1,070 sq ft
99 sq m
- TENUREDescribes how you own a property. There are different types of tenure - freehold, leasehold, and commonhold.Read more about tenure in our glossary page.
Freehold
Key features
- Viewing Day: Saturday 14th February 2026, from 1:00pm to 2:00pm. By appointment only.
- Prime BH14 location – highly sought-after postcode.
- Generous plot of land – significant potential for extension or development.
- Close to Ashley Cross village – trendy coffee shops, restaurants, and local amenities nearby.
- Coastal living – Poole Quay and beaches just a five-minute drive.
- Excellent schools nearby - within the catchment for Courthill and Baden Powell.
- Potential to extend S.T.P.P.
- Spacious off road parking.
- Chain free
Description
Perfectly positioned within close reach of the vibrant Ashley Cross village, the property enjoys easy access to a fantastic selection of trendy coffee shops, popular restaurants, and local amenities. The beautiful Poole coastline, Poole Quay, and surrounding beaches are just a short five-minute drive away, offering the best of coastal living.
Families will also appreciate the property’s location within the catchment area of highly regarded schools, including Courthill primary school and Baden Powell, further enhancing its appeal.
Living Room
14'5" x 11'9" (4.40m x 3.60m)
Dining Room
10'9" x 11'1" (3.30m x 3.40m)
Kitchen
7'6" x 11'1" (2.30m x 3.40m)
Conservatory
11'5" x 6'10" (3.50m x 2.10m)
Bedroom 1
14'5" x 11'9" (4.40m x 3.60m)
Bedroom 2
10'5" x 11'1" (3.20m x 3.40m)
Bedroom 3
7'6" x 7'2" (2.30m x 2.20m)
Bathroom
- COUNCIL TAXA payment made to your local authority in order to pay for local services like schools, libraries, and refuse collection. The amount you pay depends on the value of the property.Read more about council Tax in our glossary page.
- Band: C
- PARKINGDetails of how and where vehicles can be parked, and any associated costs.Read more about parking in our glossary page.
- Yes
- GARDENA property has access to an outdoor space, which could be private or shared.
- Ask agent
- ACCESSIBILITYHow a property has been adapted to meet the needs of vulnerable or disabled individuals.Read more about accessibility in our glossary page.
- Ask agent
Queens Road, Poole, BH14
Add an important place to see how long it'd take to get there from our property listings.
__mins driving to your place
Get an instant, personalised result:
- Show sellers you’re serious
- Secure viewings faster with agents
- No impact on your credit score

Your mortgage
Notes
Staying secure when looking for property
Ensure you're up to date with our latest advice on how to avoid fraud or scams when looking for property online.
Visit our security centre to find out moreDisclaimer - Property reference RX712958. The information displayed about this property comprises a property advertisement. Rightmove.co.uk makes no warranty as to the accuracy or completeness of the advertisement or any linked or associated information, and Rightmove has no control over the content. This property advertisement does not constitute property particulars. The information is provided and maintained by TAJ Real Estate, London. Please contact the selling agent or developer directly to obtain any information which may be available under the terms of The Energy Performance of Buildings (Certificates and Inspections) (England and Wales) Regulations 2007 or the Home Report if in relation to a residential property in Scotland.
*This is the average speed from the provider with the fastest broadband package available at this postcode. The average speed displayed is based on the download speeds of at least 50% of customers at peak time (8pm to 10pm). Fibre/cable services at the postcode are subject to availability and may differ between properties within a postcode. Speeds can be affected by a range of technical and environmental factors. The speed at the property may be lower than that listed above. You can check the estimated speed and confirm availability to a property prior to purchasing on the broadband provider's website. Providers may increase charges. The information is provided and maintained by Decision Technologies Limited. **This is indicative only and based on a 2-person household with multiple devices and simultaneous usage. Broadband performance is affected by multiple factors including number of occupants and devices, simultaneous usage, router range etc. For more information speak to your broadband provider.
Map data ©OpenStreetMap contributors.




