
Encombe Street, Plymstock, Plymouth

- PROPERTY TYPE
Semi-Detached
- BEDROOMS
2
- BATHROOMS
2
- SIZE
887 sq ft
82 sq m
- TENUREDescribes how you own a property. There are different types of tenure - freehold, leasehold, and commonhold.Read more about tenure in our glossary page.
Freehold
Key features
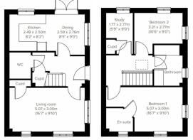
- 2 bedroom semi detached
- Open plan kitchen/dining area
- Separate living room
- Downstairs WC
- Ensuite to bedroom 1
- Study
- 10 year warranty
- Freehold
- Council tax band TBC
- EPC TBC
Description
Situation - The new homes at Saltram Meadow in Plymstock give you a little bit of everything – just minutes from Plymouth city centre, close to the coast and with scenic countryside all around. Whether you're starting out or moving up, there's something for everyone, with energy-efficient one and two-bedroom apartments and two, three and four-bedroom homes designed for modern family living.
Description - The Deepdale has a lovely balanced feel, created by a central entrance hall and generous living space to either side. It’s much the same upstairs, with bedroom one to one side of the landing, and two bedrooms on the other side. If two bedrooms are plenty for you, the third, smaller room, would make a great home office and a great option.
Outside - This home benefits from parking for 2 cars and a private rear garden.
Agent Notes - Annual service charge will be payable.
Some images may be CGI. Internal photos are provided to illustrate the high-quality finish and are taken from a similar property.
Viewings - Please call the Stags Plymouth office on .
Directions - Exit the Devon Expressway (A38) at the junction for Plymouth City Centre onto Plymouth Road and then continue along Embankment Road until you reach the left turning signposted Faraday Mill Business Park. Go over the Laira Bridge and onto Billacombe Road until you reach the left turning for Encombe Street where you will find Saltram Meadow.
Brochures
Encombe Street, Plymstock, Plymouth- COUNCIL TAXA payment made to your local authority in order to pay for local services like schools, libraries, and refuse collection. The amount you pay depends on the value of the property.Read more about council Tax in our glossary page.
- Band: TBC
- PARKINGDetails of how and where vehicles can be parked, and any associated costs.Read more about parking in our glossary page.
- Yes
- GARDENA property has access to an outdoor space, which could be private or shared.
- Yes
- ACCESSIBILITYHow a property has been adapted to meet the needs of vulnerable or disabled individuals.Read more about accessibility in our glossary page.
- Ask agent
Energy performance certificate - ask agent
Encombe Street, Plymstock, Plymouth
Add an important place to see how long it'd take to get there from our property listings.
__mins driving to your place
Get an instant, personalised result:
- Show sellers you’re serious
- Secure viewings faster with agents
- No impact on your credit score
Your mortgage
Notes
Staying secure when looking for property
Ensure you're up to date with our latest advice on how to avoid fraud or scams when looking for property online.
Visit our security centre to find out moreDisclaimer - Property reference 34497056. The information displayed about this property comprises a property advertisement. Rightmove.co.uk makes no warranty as to the accuracy or completeness of the advertisement or any linked or associated information, and Rightmove has no control over the content. This property advertisement does not constitute property particulars. The information is provided and maintained by Stags, Plymouth. Please contact the selling agent or developer directly to obtain any information which may be available under the terms of The Energy Performance of Buildings (Certificates and Inspections) (England and Wales) Regulations 2007 or the Home Report if in relation to a residential property in Scotland.
*This is the average speed from the provider with the fastest broadband package available at this postcode. The average speed displayed is based on the download speeds of at least 50% of customers at peak time (8pm to 10pm). Fibre/cable services at the postcode are subject to availability and may differ between properties within a postcode. Speeds can be affected by a range of technical and environmental factors. The speed at the property may be lower than that listed above. You can check the estimated speed and confirm availability to a property prior to purchasing on the broadband provider's website. Providers may increase charges. The information is provided and maintained by Decision Technologies Limited. **This is indicative only and based on a 2-person household with multiple devices and simultaneous usage. Broadband performance is affected by multiple factors including number of occupants and devices, simultaneous usage, router range etc. For more information speak to your broadband provider.
Map data ©OpenStreetMap contributors.









