
Head Street, Halstead, CO9

- PROPERTY TYPE
Terraced
- BEDROOMS
2
- BATHROOMS
1
- SIZE
Ask agent
- TENUREDescribes how you own a property. There are different types of tenure - freehold, leasehold, and commonhold.Read more about tenure in our glossary page.
Ask agent
Key features
- GUIDE PRICE £240,000 - £250,000
- A Unique And Character Filled Three Storey Home
- Modern Kitchen/Diner
- Main Bedroom With Vaulted Ceiling And Beams
- Further Double Bedroom
- Modern Shower Room
- Landscaped Courtyard Style Garden With Porcelain Patio
- New Boiler With 10 Year Warranty
- Recently Redecorated Throughout And New Carpet
Description
Guide Price £240,000 - £250,000. This charming and character-filled two-bedroom terraced home offers a unique three-storey layout that perfectly blends period features with contemporary living. Situated close to Halstead High Street, the property boasts a cosy living room, a modern kitchen/diner, a beautifully landscaped courtyard style garden with a porcelain patio, and a vaulted ceiling with beams in the main bedroom, providing a distinctive and inviting atmosphere throughout.
Set in the heart of Halstead, this property benefits from close proximity to the bustling high street, where a variety of independent shops, cafes, and amenities create a vibrant community atmosphere. Halstead itself offers excellent transport links and local schools, making it an attractive location for families and professionals alike. Enjoy the convenience of town centre living while retreating to the peace and privacy of this unique home.
Upon entering, you are welcomed by a cosy living room that serves as a comfortable retreat. The warm and intimate space is perfect for relaxing evenings or entertaining guests. Natural light filters through the windows, highlighting the charming features and creating a homely ambiance that sets the tone for the rest of the property.
The modern kitchen/diner is a true heart of the home, offering a generous area for cooking and dining. Equipped with contemporary fittings and ample storage, the kitchen combines functionality with style. The dining area easily accommodates a table for family meals, making this space ideal for both everyday living and entertaining.
Upstairs, on the second floor, the main bedroom impresses with its vaulted ceiling and exposed beams, giving it a spacious yet cosy feel. This room effortlessly blends character with comfort, offering a tranquil space to unwind. There is a further double bedroom, equally well proportioned and perfect for family, guests, or a home office. The modern shower room has been thoughtfully designed with sleek fixtures and a fresh, clean finish.
One of the standout features of this home is the landscaped courtyard-style garden, which features a stylish porcelain patio. This outdoor space is ideal for alfresco dining or simply enjoying a quiet moment away from the hustle and bustle and comes with outdoor lighting. The garden enhances the overall appeal of the property, offering a private and easy-to-maintain retreat.
The property also comes with a new boiler which has a 10 year warranty.
This unique terraced house combines period charm with modern living to create a delightful home with a character all its own. Whether you’re drawn to the vaulted beams in the bedroom, the stylish kitchen/diner, or the charming garden, this property offers an exceptional opportunity to live close to the amenities of Halstead High Street in a home full of warmth and character.
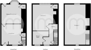
Living Room
3.56m x 2.72m (11' 8" x 8' 11")
Kitchen/Diner
3.81m x 3.68m (12' 6" x 12' 1")
Landing
Bedroom Two
4.14m x 3.56m (13' 7" x 11' 8")
Shower Room
2.69m x 2.29m (8' 10" x 7' 6")
Second Floor
Bedroom One
6.32m x 4m (20' 9" x 13' 1")
Outside
One of the standout features of this home is the landscaped courtyard-style garden, which features a stylish porcelain patio. This outdoor space is ideal for alfresco dining or simply enjoying a quiet moment away from the hustle and bustle. The garden enhances the overall appeal of the property, offering a private and easy-to-maintain retreat.
Brochures
Brochure 1- COUNCIL TAXA payment made to your local authority in order to pay for local services like schools, libraries, and refuse collection. The amount you pay depends on the value of the property.Read more about council Tax in our glossary page.
- Band: B
- PARKINGDetails of how and where vehicles can be parked, and any associated costs.Read more about parking in our glossary page.
- Ask agent
- GARDENA property has access to an outdoor space, which could be private or shared.
- Yes
- ACCESSIBILITYHow a property has been adapted to meet the needs of vulnerable or disabled individuals.Read more about accessibility in our glossary page.
- Ask agent
Energy performance certificate - ask agent
Head Street, Halstead, CO9
Add an important place to see how long it'd take to get there from our property listings.
__mins driving to your place
Get an instant, personalised result:
- Show sellers you’re serious
- Secure viewings faster with agents
- No impact on your credit score

Your mortgage
Notes
Staying secure when looking for property
Ensure you're up to date with our latest advice on how to avoid fraud or scams when looking for property online.
Visit our security centre to find out moreDisclaimer - Property reference 30027227. The information displayed about this property comprises a property advertisement. Rightmove.co.uk makes no warranty as to the accuracy or completeness of the advertisement or any linked or associated information, and Rightmove has no control over the content. This property advertisement does not constitute property particulars. The information is provided and maintained by Michaels Property Consultants Ltd, Halstead. Please contact the selling agent or developer directly to obtain any information which may be available under the terms of The Energy Performance of Buildings (Certificates and Inspections) (England and Wales) Regulations 2007 or the Home Report if in relation to a residential property in Scotland.
*This is the average speed from the provider with the fastest broadband package available at this postcode. The average speed displayed is based on the download speeds of at least 50% of customers at peak time (8pm to 10pm). Fibre/cable services at the postcode are subject to availability and may differ between properties within a postcode. Speeds can be affected by a range of technical and environmental factors. The speed at the property may be lower than that listed above. You can check the estimated speed and confirm availability to a property prior to purchasing on the broadband provider's website. Providers may increase charges. The information is provided and maintained by Decision Technologies Limited. **This is indicative only and based on a 2-person household with multiple devices and simultaneous usage. Broadband performance is affected by multiple factors including number of occupants and devices, simultaneous usage, router range etc. For more information speak to your broadband provider.
Map data ©OpenStreetMap contributors.





