Illingworth Avenue, Altofts

- PROPERTY TYPE
Semi-Detached
- BEDROOMS
3
- BATHROOMS
1
- SIZE
Ask agent
- TENUREDescribes how you own a property. There are different types of tenure - freehold, leasehold, and commonhold.Read more about tenure in our glossary page.
Freehold
Key features
- NO ONWARD CHAIN
- Semi-Detached Property
- In Need of Modernisation.
- Hallway & Lounge
- Dining Room & Kitchen
- Conservatory
- Three Bedrooms
- House Bathroom
- Gardens to Front & Rear
- Driveway & Garage.
Description
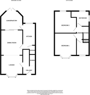
HALLWAY Having central heating radiator.
LOUNGE 12' 1" x 10' 8" (3.68m x 3.25m) Having double glazed bay window letting in plenty of natural light, central heating radiator and feature recessed arch and opening to:
DINING ROOM 12' 2" x 12' 10" (3.71m x 3.91m) Having electric fire with brass trim, tiled back and hearth with surround, central heating radiator and patio doors to:
CONSERVATORY 10' 7" x 10' 2" (3.23m x 3.1m) Having UPVC double glazed units overlooking rear garden, laminate wood flooring, central heating radiator and French doors to rear garden.
KITCHEN 17' 4" x 9' 5" (5.28m x 2.87m) Having a comprehensive range of wall and base units with contrasting work surface, incorporating sink and drainer with mixer tap, tiled splash backs, built-in electric oven, four ring electric hob with stainless steel splash back and canopy above, tiled floor, two central heating radiators, space and plumbing for automatic washing machine and dishwasher, space for fridge/freezer, double glazed window to side and a cupboard housing combination condensing boiler.
STAIR CASE TO FIRST FLOOR LANDING Having double glazed window.
BEDROOM ONE 12' 2" x 12' 6" (3.71m x 3.81m) Having double glazed window letting in plenty of natural light and central heating radiator.
BEDROOM TWO 11' 2" x 12' 2" (3.4m x 3.71m) Having fitted wardrobes to one wall, central heating radiator, double glazed window with pleasant aspect over looking rear garden and allotments.
BEDROOM THREE 6' 0" x 8' 9" (1.83m x 2.67m) Having central heating radiator, double glazed window and store cupboard.
BATHROOM 8' 0" x 5' 8" (2.44m x 1.73m) Having a white four-piece suite comprising: low flush W.C with concealed cistern, hand basin with mixer tap and storage beneath, bath with mixer tap, shower cubicle with mains shower, fully tiled, two double glazed windows, towel radiator and laminate flooring.
EXTERIOR The property stands on this popular cul-de-sac in the heart of Altofts, having garden to front with a brick paved driveway providing off street parking, and access to single garage, whilst to the rear is a beautifully maintained garden having patio area and lawn garden with planted beds.
BOUNDARIES The boundaries and ownerships have not been checked on the Title Deeds for any discrepancies or rights of way. All prospective purchasers should make their own enquiries before proceeding to exchange of contracts.
FLOOR PLANS These floor plans are intended as a rough guide only and are not intended as an exact representation and should not be scaled. We can not confirm the accuracy of these plans.
MEASURMENTS There is a six inch measurement tolerance or metric equivalent. All measurements are for general guidance purposes only and are approximate. Due to variations and tolerances in metric and imperial measurements, measurements contained in these particulars must not be relied upon for ordering carpets, furniture etc.
NOTES None of the installed services and equipment have been tested and no warranties of any kind can be given accordingly, prospective purchasers should bear this in mind when formulating their offers. The sellers do not include in the sale any carpets, light fittings, floor covering, curtains, blinds, furnishing, electrical/gas appliances (whether connected or not) or any other fixtures and fittings unless expressly mentioned in these particulars.
- COUNCIL TAXA payment made to your local authority in order to pay for local services like schools, libraries, and refuse collection. The amount you pay depends on the value of the property.Read more about council Tax in our glossary page.
- Band: C
- PARKINGDetails of how and where vehicles can be parked, and any associated costs.Read more about parking in our glossary page.
- Garage
- GARDENA property has access to an outdoor space, which could be private or shared.
- Yes
- ACCESSIBILITYHow a property has been adapted to meet the needs of vulnerable or disabled individuals.Read more about accessibility in our glossary page.
- Ask agent
Energy performance certificate - ask agent
Illingworth Avenue, Altofts
Add an important place to see how long it'd take to get there from our property listings.
__mins driving to your place
Get an instant, personalised result:
- Show sellers you’re serious
- Secure viewings faster with agents
- No impact on your credit score



Your mortgage
Notes
Staying secure when looking for property
Ensure you're up to date with our latest advice on how to avoid fraud or scams when looking for property online.
Visit our security centre to find out moreDisclaimer - Property reference 102063054254. The information displayed about this property comprises a property advertisement. Rightmove.co.uk makes no warranty as to the accuracy or completeness of the advertisement or any linked or associated information, and Rightmove has no control over the content. This property advertisement does not constitute property particulars. The information is provided and maintained by Chris North Properties LTD, Normanton. Please contact the selling agent or developer directly to obtain any information which may be available under the terms of The Energy Performance of Buildings (Certificates and Inspections) (England and Wales) Regulations 2007 or the Home Report if in relation to a residential property in Scotland.
*This is the average speed from the provider with the fastest broadband package available at this postcode. The average speed displayed is based on the download speeds of at least 50% of customers at peak time (8pm to 10pm). Fibre/cable services at the postcode are subject to availability and may differ between properties within a postcode. Speeds can be affected by a range of technical and environmental factors. The speed at the property may be lower than that listed above. You can check the estimated speed and confirm availability to a property prior to purchasing on the broadband provider's website. Providers may increase charges. The information is provided and maintained by Decision Technologies Limited. **This is indicative only and based on a 2-person household with multiple devices and simultaneous usage. Broadband performance is affected by multiple factors including number of occupants and devices, simultaneous usage, router range etc. For more information speak to your broadband provider.
Map data ©OpenStreetMap contributors.




