Winslow Drive, Wigston, Leicester

- PROPERTY TYPE
Semi-Detached
- BEDROOMS
3
- BATHROOMS
1
- SIZE
883 sq ft
82 sq m
- TENUREDescribes how you own a property. There are different types of tenure - freehold, leasehold, and commonhold.Read more about tenure in our glossary page.
Freehold
Key features
- Three Bedroom Semi-Detached Home
- Extended Open-Plan Kitchen And Dining Area
- Additional Living Area/Snug
- Living Room With Gas Fire
- Built-In Wardrobes To Two Bedrooms
- Family Bathroom With Separate Shower Cubicle
- Block-Paved Driveway For Multiple Vehicles
- Single Garage With Garden Access
- Mature Rear Garden With Patio Areas
- Located On Winslow Drive In Wigston
Description
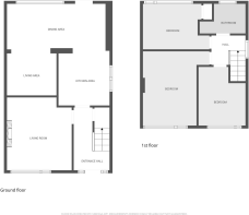
Situated on Winslow Drive in Wigston, this three-bedroom semi-detached property offers well-proportioned accommodation across two floors, with driveway parking, a garage and a mature rear garden.
The property is entered via a double-glazed door into the entrance hall, featuring ceramic tiled flooring, a radiator and stairs rising to the first floor.
To the front of the property is the living room, with a double-glazed window, stained wooden flooring and a chimney breast incorporating a living flame gas fire.
To the rear, the property opens into an extended open-plan kitchen and dining space. The kitchen area is fitted with a range of base and wall units with granite-effect roll-edge laminate work surfaces, an integrated sink drainer, five-ring gas hob, double oven and extractor. There is plumbing for both a dishwasher and washing machine.
The dining area benefits from a double-glazed window to the rear, skylight and a double-glazed door providing access to the garden. A further living area/snug continues the tiled flooring and offers additional reception space with a TV point and radiator.
To the first floor are three bedrooms. Bedroom one is positioned to the front and includes built-in wardrobes. Bedroom two, also with built-in wardrobes, overlooks the rear garden. Bedroom three is also located to the front and has built-in wardrobes.
The bathroom comprises a bath, separate shower cubicle, low-level WC and wash hand basin with storage, with fully tiled walls and ceramic tiled flooring.
Externally, the rear garden features a slab patio seating area leading to a raised gravelled patio, with mature flower beds and established borders. There is access to the garage from the garden.
To the front, a block-paved driveway provides off-road parking for approximately three vehicles, with gated access to additional car standing. A single garage sits to the side of the property.
EPC Rating: D
Entrance Hall
Entered via a double-glazed door; features ceramic tiled flooring, stairs to the first-floor landing, and a radiator.
Living Room
4.04m x 3.59m
Double-glazed window to the front elevation, stained wooden floor, and a chimney breast incorporating a living flame gas fire, a TV point and a radiator.
Open Plan Kitchen Area
2.9m x 2.7m
Double-glazed window to side elevation, ceramic tiled flooring, and a range of base and wall units with granite-effect roll-edge laminate work surfaces. Features an integrated sink drainer, 5-ring gas hob, double integrated oven, and extractor. Plumbing is available for a dishwasher and a washing machine.
Dining Area
5.04m x 2.23m
Continuation of ceramic tiled flooring, double-glazed window to rear elevation, double-glazed skylight, and double-glazed door providing garden access. Includes a radiator.
Living Area/Snug
5.04m x 2.23m
Features ceramic tiled flooring, a TV point, and a radiator.
Bedroom One
3.81m x 2.91m
Double-glazed window to front elevation, wood-effect laminate flooring, built-in wardrobes, and radiator.
Bedroom Two
3.64m x 2.51m
Double-glazed window to rear elevation, wood-effect laminate flooring, built-in wardrobes, and radiator.
Bedroom Three
2.96m x 2.56m
Double-glazed window to front elevation and radiator.
Bathroom
1.81m x 1.65m
Double-glazed window to rear, ceramic tiled flooring, and fully tiled walls. Features a bath, separate shower cubicle, low-level WC, wash hand basin with storage, and radiator.
Rear Garden
Features a slab patio seating area leading to a raised graveled patio, mature flower beds with maintained borders, and access to the garage.
Parking - Driveway
Block-paved driveway with gated access to additional car standing
Parking - Garage
A single garage.
Disclaimer
Measurements are taken electronically and are for guidance only — not to be relied upon as exact. Services, appliances, and fittings have not been tested. Buyers must satisfy themselves through inspection. Floor plans are not to scale and are for layout guidance only. Knightsbridge Estate Agents make no warranties regarding the property. By law, we must carry out anti-money laundering checks for buyers and sellers. These are handled on our behalf by Lifetime Legal, who will contact you once you instruct us to sell or have an offer accepted. A £70 fee (incl. VAT) covers required data and any manual checks. This must be paid before we can publish your property (for vendors) or issue a memorandum of sale (for buyers). The fee is non-refundable and paid directly to Lifetime Legal. We receive a portion of this fee for facilitating the checks.
Brochures
Key Facts for BuyersProperty Brochure- COUNCIL TAXA payment made to your local authority in order to pay for local services like schools, libraries, and refuse collection. The amount you pay depends on the value of the property.Read more about council Tax in our glossary page.
- Band: B
- PARKINGDetails of how and where vehicles can be parked, and any associated costs.Read more about parking in our glossary page.
- Garage,Driveway
- GARDENA property has access to an outdoor space, which could be private or shared.
- Rear garden
- ACCESSIBILITYHow a property has been adapted to meet the needs of vulnerable or disabled individuals.Read more about accessibility in our glossary page.
- Ask agent
Energy performance certificate - ask agent
Winslow Drive, Wigston, Leicester
Add an important place to see how long it'd take to get there from our property listings.
__mins driving to your place
Get an instant, personalised result:
- Show sellers you’re serious
- Secure viewings faster with agents
- No impact on your credit score



Your mortgage
Notes
Staying secure when looking for property
Ensure you're up to date with our latest advice on how to avoid fraud or scams when looking for property online.
Visit our security centre to find out moreDisclaimer - Property reference eaff2456-ee2b-4b97-9c7c-bfe9b345c0c9. The information displayed about this property comprises a property advertisement. Rightmove.co.uk makes no warranty as to the accuracy or completeness of the advertisement or any linked or associated information, and Rightmove has no control over the content. This property advertisement does not constitute property particulars. The information is provided and maintained by Knightsbridge Estate Agents & Valuers, Wigston. Please contact the selling agent or developer directly to obtain any information which may be available under the terms of The Energy Performance of Buildings (Certificates and Inspections) (England and Wales) Regulations 2007 or the Home Report if in relation to a residential property in Scotland.
*This is the average speed from the provider with the fastest broadband package available at this postcode. The average speed displayed is based on the download speeds of at least 50% of customers at peak time (8pm to 10pm). Fibre/cable services at the postcode are subject to availability and may differ between properties within a postcode. Speeds can be affected by a range of technical and environmental factors. The speed at the property may be lower than that listed above. You can check the estimated speed and confirm availability to a property prior to purchasing on the broadband provider's website. Providers may increase charges. The information is provided and maintained by Decision Technologies Limited. **This is indicative only and based on a 2-person household with multiple devices and simultaneous usage. Broadband performance is affected by multiple factors including number of occupants and devices, simultaneous usage, router range etc. For more information speak to your broadband provider.
Map data ©OpenStreetMap contributors.





