
Mount Road, Penn, Wolverhampton

- PROPERTY TYPE
Detached
- BEDROOMS
3
- BATHROOMS
1
- SIZE
Ask agent
- TENUREDescribes how you own a property. There are different types of tenure - freehold, leasehold, and commonhold.Read more about tenure in our glossary page.
Freehold
Key features
- 360 VIRTUAL TOUR
- REQUIRES REFURBISHMENT
- SOUGHT AFTER LOCATION
- GENEROUS REAR GARDEN
- TWO LIVING ROOMS
- GARAGE AND DRIVEWAY
- NO CHAIN
Description
OPEN VIEWINGS, NO APPOINTMENT REQUIRED - FRIDAY 6TH MARCH 1:00 - 1:30 pm, AND SATURDAY 7th MARCH 11:00-11:30am.
Three bedroom detached home requiring an extensive scheme of refurbishment, available with NO ONWARD CHAIN.
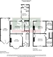
Situated in a highly sought after location, the generous accommodation comprises reception hall, living room, dining room, kitchen, ground floor w.c, three bedrooms and bathroom. A driveway and side garage provide off road parking, and to the rear is a generous garden backing onto allotments.
Approach - Driveway providing off road parking.
Entrance Porch -
Hallway -
Living Room - 4.41 into bay x 3.64 (14'5" into bay x 11'11") - Bay window to the front
Dining Room - 4.28 x 3.64 (14'0" x 11'11") - Window tp the rear, door to spacious pantry, access to kitchen.
Kitchen - 2.73 x 2.29 (8'11" x 7'6") - Window to the side, stainless steel sink and drainer, doorway to w.c.
Ground Floor W.C. - Low-level w.c, doorway to rear garden.
Fisrt Floor Landing -
Bedroom One - 3.65 x 3.64 (11'11" x 11'11") - Window to the front.
Bedroom Two - 3.65 x 3.64 (11'11" x 11'11") - Window to the rear.
Bedroom Three - 2.27 x 1.83 (7'5" x 6'0") - Window to the front.
Bathroom - 2.36 x 1.8 (7'8" x 5'10") - Obscure window to the rear, bath, w.c, pedestal wash hand basin.
Rear Garden - To the rear of the property is a generous mature garden with a private rear outlook.
Garage - 6.9 x 2.69 (22'7" x 8'9") -
Property Information - Title - The property is understood to be freehold
Services - The agents understands that mains gas, water, electricity and drainage are available.
Council Tax - Wolverhampton City Council - Tax Band C
Anti-Money Laundering Regulations - In accordance with the Money Laundering, Terrorist Financing and Transfer of Funds (Information on the Payer) Regulations 2017, successful purchasers must complete an Anti-Money Laundering (AML) check. We use a specialist third-party service to verify your identity. The cost of these checks is £25.00 (including VAT) for each purchaser and any giftors contributing funds. This check is done prior to the issue of a sales memorandum. Please note that this charge is non-refundable.
Broadband - Ofcom checker shows Standard / Superfast / Ultrafast are available
Mobile Coverage - Mobile data coverage is constantly changing, please use the property postcode and this link for the most up to date information from Ofcom -
Ofcom provides an overview of what is available. Potential purchasers should contact their preferred supplier to confirm availability and speed.
Flood Risk - Please use this link to check the long term flood risk for an area in England -
Other Information - The agent understands that a grant of probate / letters of administration have been applied for but are currently outstanding.
Brochures
Mount Road, Penn, WolverhamptonBrochure- COUNCIL TAXA payment made to your local authority in order to pay for local services like schools, libraries, and refuse collection. The amount you pay depends on the value of the property.Read more about council Tax in our glossary page.
- Band: C
- PARKINGDetails of how and where vehicles can be parked, and any associated costs.Read more about parking in our glossary page.
- Garage,Driveway
- GARDENA property has access to an outdoor space, which could be private or shared.
- Yes
- ACCESSIBILITYHow a property has been adapted to meet the needs of vulnerable or disabled individuals.Read more about accessibility in our glossary page.
- Ask agent
Mount Road, Penn, Wolverhampton
Add an important place to see how long it'd take to get there from our property listings.
__mins driving to your place
Get an instant, personalised result:
- Show sellers you’re serious
- Secure viewings faster with agents
- No impact on your credit score
Your mortgage
Notes
Staying secure when looking for property
Ensure you're up to date with our latest advice on how to avoid fraud or scams when looking for property online.
Visit our security centre to find out moreDisclaimer - Property reference 34498516. The information displayed about this property comprises a property advertisement. Rightmove.co.uk makes no warranty as to the accuracy or completeness of the advertisement or any linked or associated information, and Rightmove has no control over the content. This property advertisement does not constitute property particulars. The information is provided and maintained by Sanders, Wright & Freeman, Wolverhampton. Please contact the selling agent or developer directly to obtain any information which may be available under the terms of The Energy Performance of Buildings (Certificates and Inspections) (England and Wales) Regulations 2007 or the Home Report if in relation to a residential property in Scotland.
*This is the average speed from the provider with the fastest broadband package available at this postcode. The average speed displayed is based on the download speeds of at least 50% of customers at peak time (8pm to 10pm). Fibre/cable services at the postcode are subject to availability and may differ between properties within a postcode. Speeds can be affected by a range of technical and environmental factors. The speed at the property may be lower than that listed above. You can check the estimated speed and confirm availability to a property prior to purchasing on the broadband provider's website. Providers may increase charges. The information is provided and maintained by Decision Technologies Limited. **This is indicative only and based on a 2-person household with multiple devices and simultaneous usage. Broadband performance is affected by multiple factors including number of occupants and devices, simultaneous usage, router range etc. For more information speak to your broadband provider.
Map data ©OpenStreetMap contributors.





