Parc Melin, Glan Yr Afon Industrial Estate, Llanbadarn Fawr
- PROPERTY TYPE
Commercial Property
- BATHROOMS
1
- SIZE
2,013 sq ft
187 sq m
Description
The purchase price is exclusive of VAT
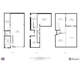
Substantial Three-Storey Commercial Unit with Garage & Offices
Description:
An excellent opportunity to acquire a versatile three-storey commercial premises extending to approximately 2,188 sq ft (203.3 sq m) gross internal area, suitable for a variety of business uses (subject to planning).
Ground Floor (approx. 392 sq ft / 36.43 sq m)
The ground floor comprises a large garage/workshop measuring approximately 5.92m x 13.21m together with a separate storage room measuring approximately 2.36m x 6.90m. Kitchen and WC facilities are provided along with independent access.
First Floor (approx. 787 sq ft / 73.12 sq m)
The first floor provides two private offices together with a spacious conference room measuring approximately 5.92m x 4.88m, all accessed via a central hallway and stairwell.
Second Floor (approx. 843 sq ft / 78.33 sq m)
The second floor offers a large open-plan office area, an additional private office, hallway and WC facilities. An 'open to below' feature creates a bright and airy working environment.
Key Features
The property extends to approximately 2,188 sq ft (203.3 sq m) over three storeys and provides a flexible mix of open-plan and cellular office accommodation together with integral garage and storage space. The unit benefits from kitchen and WC facilities and is situated within an established commercial location, making it suitable for a range of business uses (subject to planning).
Location:
Situated at Parc Melin, Aberystwyth, the property forms part of a well-established commercial area within the town, offering convenient access to local amenities and main transport links.
Garage
Storage Room
Toilet 1
Kitchen
Office 1
Office 2
Shower Room
Conference Room
Hallway
Office 3
Storage
Brochures
Property BrochureEnergy Performance Certificates
Environment ImpactEnergy EfficiencyParc Melin, Glan Yr Afon Industrial Estate, Llanbadarn Fawr
NEAREST STATIONS
Distances are straight line measurements from the centre of the postcode- Aberystwyth Station1.9 miles
- Bow Street Station2.7 miles

Notes
Disclaimer - Property reference sale-76. The information displayed about this property comprises a property advertisement. Rightmove.co.uk makes no warranty as to the accuracy or completeness of the advertisement or any linked or associated information, and Rightmove has no control over the content. This property advertisement does not constitute property particulars. The information is provided and maintained by CBW Property Management, Aberystwyth. Please contact the selling agent or developer directly to obtain any information which may be available under the terms of The Energy Performance of Buildings (Certificates and Inspections) (England and Wales) Regulations 2007 or the Home Report if in relation to a residential property in Scotland.
Map data ©OpenStreetMap contributors.





