
Edwards Gardens, Swanley, Kent

- PROPERTY TYPE
End of Terrace
- BEDROOMS
4
- BATHROOMS
1
- SIZE
Ask agent
- TENUREDescribes how you own a property. There are different types of tenure - freehold, leasehold, and commonhold.Read more about tenure in our glossary page.
Freehold
Key features
- Four Bedroom
- Lounge/Diner
- Kitchen/Breakfast Room
- Swanley Mainline Train Station/Oyster Zone
- Off Street Parking/Garage
- Ground Floor Cloakroom
- Central Swanley Location
- Energy Efficiency Rating - C
Description
Boasting easy access to great local schools to include the High Firs Primary and Crockenhill Primary school as well as a short walk to the Swanley mainline station and town centre.
The mainline station is a short walk away proving excellent for the direct commute into central London in record time! This is the ideal purchase for any family looking for a house with an excellent commute into the city.
Swanley station offers a direct commute into central London within approximately twenty minutes, station is within in the Oyster zone. The road links are superb with easy access to the M25/A20/M20, public bus routes, and withing easy reach of Orpington, Sidcup and more.
Further amenities nearby to include the White Oak Leisure Centre, Rowhill Grange Utopia Hotel & Spa and the Swanley boat park.
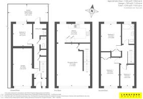
Property comprises to the ground floor – Entrance porch, entrance hall, ground floor cloakroom, 17’7x9’2 garage with integral access, ground floor bedroom three / office / study room, utility area, and access to the rear garage.
To the first floor – 19’1X15’0 reception room, 15’7x8’2 kitchen/breakfast room.
To the second floor – Landing , three bedrooms and family bathroom.
Externally you will find a generous sized driveway providing off street parking for multiple vehicles, additional access from the side of the house to a low maintenance rear garden.
Further benefits include a built in EV charger.
Contact Langford Russell today to arrange your internal inspection, viewing is highly recommended!
Sevenoaks District Council - Council Tax Band - C
Energy Efficiency Rating - C
- COUNCIL TAXA payment made to your local authority in order to pay for local services like schools, libraries, and refuse collection. The amount you pay depends on the value of the property.Read more about council Tax in our glossary page.
- Band: C
- PARKINGDetails of how and where vehicles can be parked, and any associated costs.Read more about parking in our glossary page.
- Yes
- GARDENA property has access to an outdoor space, which could be private or shared.
- Yes
- ACCESSIBILITYHow a property has been adapted to meet the needs of vulnerable or disabled individuals.Read more about accessibility in our glossary page.
- Ask agent
Edwards Gardens, Swanley, Kent
Add an important place to see how long it'd take to get there from our property listings.
__mins driving to your place
Get an instant, personalised result:
- Show sellers you’re serious
- Secure viewings faster with agents
- No impact on your credit score
Your mortgage
Notes
Staying secure when looking for property
Ensure you're up to date with our latest advice on how to avoid fraud or scams when looking for property online.
Visit our security centre to find out moreDisclaimer - Property reference HEC260667. The information displayed about this property comprises a property advertisement. Rightmove.co.uk makes no warranty as to the accuracy or completeness of the advertisement or any linked or associated information, and Rightmove has no control over the content. This property advertisement does not constitute property particulars. The information is provided and maintained by Langford Russell, Swanley. Please contact the selling agent or developer directly to obtain any information which may be available under the terms of The Energy Performance of Buildings (Certificates and Inspections) (England and Wales) Regulations 2007 or the Home Report if in relation to a residential property in Scotland.
*This is the average speed from the provider with the fastest broadband package available at this postcode. The average speed displayed is based on the download speeds of at least 50% of customers at peak time (8pm to 10pm). Fibre/cable services at the postcode are subject to availability and may differ between properties within a postcode. Speeds can be affected by a range of technical and environmental factors. The speed at the property may be lower than that listed above. You can check the estimated speed and confirm availability to a property prior to purchasing on the broadband provider's website. Providers may increase charges. The information is provided and maintained by Decision Technologies Limited. **This is indicative only and based on a 2-person household with multiple devices and simultaneous usage. Broadband performance is affected by multiple factors including number of occupants and devices, simultaneous usage, router range etc. For more information speak to your broadband provider.
Map data ©OpenStreetMap contributors.





