Marsala, Trapani, Sicily, Italy
- PROPERTY TYPE
Apartment
- BEDROOMS
2
- BATHROOMS
2
- SIZE
1,464 sq ft
136 sq m
Key features
- Near the Sea
- Historical Centre
- Strategic Location
- Good Investment
Description
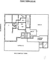
The property, recently renovated with modern finishes and high-quality materials, features a latest-generation home automation system, a high energy-efficiency rating, parquet flooring, and thermal-break window frames that ensure living comfort and energy savings.
The entrance opens onto a spacious open-plan living area with kitchen zone and adjoining laundry, a welcoming and functional space designed for everyday living and entertaining guests.
A hallway leads to the sleeping area, consisting of a bathroom with shower, a convenient storage room, a small bedroom, and a spacious master bedroom complete with walk-in closet and en-suite bathroom.
"Turnkey" solution, ideal for those who want to enjoy the charm of the historic center with all the comforts of a modern home.
Covered parking space available, with the possibility of separate purchase.
Marsala, Trapani, Sicily, Italy
NEAREST AIRPORTS
Distances are straight line measurements- Palermo Punta Raisi(International)45.0 miles
Advice on buying Italian property
Learn everything you need to know to successfully find and buy a property in Italy.
Notes
This is a property advertisement provided and maintained by Engel & Voelkers Palermo & Trapani, Engel & Volkers Palermo & Trapani (reference RenovatedApartmentInCenterOfMarsala) and does not constitute property particulars. Whilst we require advertisers to act with best practice and provide accurate information, we can only publish advertisements in good faith and have not verified any claims or statements or inspected any of the properties, locations or opportunities promoted. Rightmove does not own or control and is not responsible for the properties, opportunities, website content, products or services provided or promoted by third parties and makes no warranties or representations as to the accuracy, completeness, legality, performance or suitability of any of the foregoing. We therefore accept no liability arising from any reliance made by any reader or person to whom this information is made available to. You must perform your own research and seek independent professional advice before making any decision to purchase or invest in overseas property.





