Thurnall Close, Baldock, SG7

- PROPERTY TYPE
Terraced
- BEDROOMS
3
- BATHROOMS
2
- SIZE
Ask agent
- TENUREDescribes how you own a property. There are different types of tenure - freehold, leasehold, and commonhold.Read more about tenure in our glossary page.
Freehold
Key features
- Convenient town centre location
- First floor lounge overlooking playing fields
- 3 second floor bedrooms
- Spacious attic with potential for conversion
- Integral garage and separate garden room/ Study
- Attractively re-fitted kitchen/diner and family bathroom
Description
A particularly light and spacious three-bedroom mid-terrace townhouse, ideally located within Thurnall Close in central Baldock, just a very short walk from the town centre, local schools and mainline station. Offered to the market chain free, this superb home is move-in ready yet would benefit from some light cosmetic work, presenting an excellent opportunity to tailor it to the new owners liking.
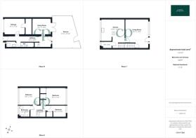
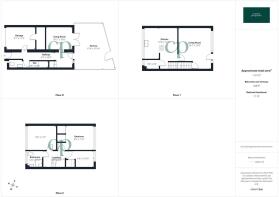
The accommodation is arranged over three floors and offers generous room sizes throughout. The ground floor comprises an entrance porch leading into a spacious hallway with access to a cloak room and and under-stairs storage, the garage and store cupboard and a versatile study/garden room. This additional reception space features French doors onto the rear garden and internal access could be restored should the new owner desire, making it ideal for home working, hobbies or potential reconfiguration.
On the first floor, there is a well-proportioned kitchen with a well designed breakfast bar, large windows to the front aspect with a range of base units, integrated appliances including: oven, microwave , induction hob, double fridge freezer and a separate utility room offers space for a washer and dryer To the rear, a bright and spacious lounge / diner enjoys two large windows and a door leading to the Juliet balcony overlooking the garden and the playing fields.
The second floor provides three good-sized bedrooms, including two generous doubles, one with built-in wardrobes, and a third single bedroom. The family bathroom is fitted with walk in shower a WC and wash hand basin. Externally, the property benefits from an attractive rear courtyard garden comprising a patio seating area and gated rear access. To the front, there is allocated parking for 2 leading to an integral garage with up-and-over door which is also directly accessible from the property.
With its central location, spacious layout and clear potential for further enhancement, this excellent home must be viewed in person to fully appreciate the light and space on offer.
Location
Baldock is a historic market town located within Hertfordshire County which benefits from having a main line railway station with connecting links to London and Cambridge. The town centre has lots to offer with local amenities such as high street shops, popular public houses, restaurants, local butchers, and cafes. Baldock is very popular for commuters as it is directly situated on the A1 and has good links onto the A505 and A10. This property is well located within Baldock being a very short walking distance away from the sought after Knights Templar Secondary School.
(All purchasers must complete an AML and financial sanctions check once a sale is agreed (subject to contract). The check is carried out by our third-party provider at a cost of £60 including VAT per property, payable by the applicant(s).)
Building Safety
I am not aware of any issues
Existing Planning Permission
No need that I'm aware of
Coalfield or Mining
Not in a coal mining area
Brochures
Brochure 1- COUNCIL TAXA payment made to your local authority in order to pay for local services like schools, libraries, and refuse collection. The amount you pay depends on the value of the property.Read more about council Tax in our glossary page.
- Band: C
- PARKINGDetails of how and where vehicles can be parked, and any associated costs.Read more about parking in our glossary page.
- Garage,Driveway
- GARDENA property has access to an outdoor space, which could be private or shared.
- Yes
- ACCESSIBILITYHow a property has been adapted to meet the needs of vulnerable or disabled individuals.Read more about accessibility in our glossary page.
- Level access shower,No wheelchair access
Thurnall Close, Baldock, SG7
Add an important place to see how long it'd take to get there from our property listings.
__mins driving to your place
Get an instant, personalised result:
- Show sellers you’re serious
- Secure viewings faster with agents
- No impact on your credit score
Affordability
Notes
Staying secure when looking for property
Ensure you're up to date with our latest advice on how to avoid fraud or scams when looking for property online.
Visit our security centre to find out moreDisclaimer - Property reference 29996009. The information displayed about this property comprises a property advertisement. Rightmove.co.uk makes no warranty as to the accuracy or completeness of the advertisement or any linked or associated information, and Rightmove has no control over the content. This property advertisement does not constitute property particulars. The information is provided and maintained by Country Properties, Baldock. Please contact the selling agent or developer directly to obtain any information which may be available under the terms of The Energy Performance of Buildings (Certificates and Inspections) (England and Wales) Regulations 2007 or the Home Report if in relation to a residential property in Scotland.
*This is the average speed from the provider with the fastest broadband package available at this postcode. The average speed displayed is based on the download speeds of at least 50% of customers at peak time (8pm to 10pm). Fibre/cable services at the postcode are subject to availability and may differ between properties within a postcode. Speeds can be affected by a range of technical and environmental factors. The speed at the property may be lower than that listed above. You can check the estimated speed and confirm availability to a property prior to purchasing on the broadband provider's website. Providers may increase charges. The information is provided and maintained by Decision Technologies Limited. **This is indicative only and based on a 2-person household with multiple devices and simultaneous usage. Broadband performance is affected by multiple factors including number of occupants and devices, simultaneous usage, router range etc. For more information speak to your broadband provider.
Map data ©OpenStreetMap contributors.







