6 Hazel Lane, Drogheda, Ireland
- PROPERTY TYPE
Semi-Detached
- BEDROOMS
3
- BATHROOMS
3
- SIZE
Ask agent
Description
Exceptional 3-bedroom semi-detached home (approx. 110 sqm) with attic conversion on the southside of Drogheda.
This is a true gem of a home – a bright, beautifully presented three-bedroom semi-detached property occupying an enviable corner site with outstanding potential for further expansion. Meticulously upgraded throughout, no detail has been overlooked: from new windows and external doors to stylish internal doors, a striking oak kitchen (painted white) with luxurious granite worktops, contemporary new stairs, modern bathrooms, and a stunning full attic conversion that adds extra living space.
Accommodation comprises a large living room, downstairs toilet and open plan kitchen and dining area with patio doors leading to the garden. Upstairs there are 3 bedrooms (Main ensuite) and a family bathroom. The attic has been fully converted.
The south-facing garden, complete with paved areas and a shed, is exceptionally large, offering superb scope for additional development. Architectural drawings for a rear- extension are available, making this an exciting opportunity for those seeking a turnkey home with future potential.
Viewing is highly recommended to appreciate everything this house has to offer.
LOCATION
6 Hazel Lane enjoys a superb position on the highly sought-after Bryanstown Cross Route, one of the most convenient and established residential settings on the southside of Drogheda. The property is within walking distance of Drogheda train station and the town centre, making it ideal for commuters and families alike. A host of amenities are right on your doorstep, including excellent primary and post-primary schools, shops, cafés, bars and restaurants.
The location is widely regarded as one of the very best in Drogheda, offering the perfect balance of convenience and community. For those travelling further afield, the M1 Motorway (Junction 7) is just a 10-minute drive, providing access to Dublin Airport in approximately 25 minutes and Dublin City Centre in around 45 minutes.
FEATURES
Lovely family home situated in sought-after residential neighbourhood close to all amenities of Drogheda
Substantial back and side garden with patio area and shed
Excellent location within walking distance to primary and secondary schools.
SERVICES
Mains water & sewerage.
Gas fired central heating.
Fibre broadband.
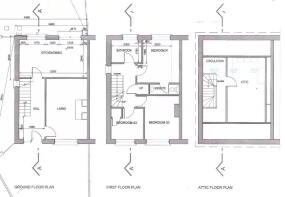
ACCOMMODATION
GROUND FLOOR
Entrance hall: 4.92m x 1.81m - parquet floor, wall panelling, radiator cover, modern wooden stairs with glass panelling.
Living Room: 3.80m x 3.36m -parquet floor, feature fireplace with electric fire, wall panelling.
Kitchen/dining:5.25m x 2.92m tiled floor, range of fitted wall & floor units (oak painted white), granite worktops double oven, built-in microwave and dish washer, gas hob and space for American Fridge Freezer.
Downstairs toilet:1.26m x 0.78m wc, whb over vanity.
UPSTAIRS
Master bedroom: 3.62m x 3.22m-laminate floor, built-in wardrobes (BIW), ensuite with electric shower, heated towel rail, whb over vanity and wc. 37m x 0.85m
Bedroom 2: 3.39m x 2.74m – laminate floor, BIW
Bedroom 3: 2.47m x 2.46m -laminate floorBathroom: 2.36m x 1.76m walk in shower, wc & whb.over vanity unit, heated towel rail, fully tiledHot press: shelved for storage.
Full attic conversion (certified).
FOLLOW EIRCODE: A92 R8XW
6 Hazel Lane, Drogheda, Ireland
NEAREST AIRPORTS
Distances are straight line measurements- Dublin(International)19.3 miles
- Belfast(International)66.4 miles
Advice on buying Irish property
Learn everything you need to know to successfully find and buy a property in Ireland.
Notes
This is a property advertisement provided and maintained by REA, O'Brien Collins (reference 1055606) and does not constitute property particulars. Whilst we require advertisers to act with best practice and provide accurate information, we can only publish advertisements in good faith and have not verified any claims or statements or inspected any of the properties, locations or opportunities promoted. Rightmove does not own or control and is not responsible for the properties, opportunities, website content, products or services provided or promoted by third parties and makes no warranties or representations as to the accuracy, completeness, legality, performance or suitability of any of the foregoing. We therefore accept no liability arising from any reliance made by any reader or person to whom this information is made available to. You must perform your own research and seek independent professional advice before making any decision to purchase or invest in overseas property.






