
Warwick Road, London, SW5

Letting details
- Let available date:
- Now
- Deposit:
- £4,061A deposit provides security for a landlord against damage, or unpaid rent by a tenant.Read more about deposit in our glossary page.
- Min. Tenancy:
- 12 months How long the landlord offers to let the property for.Read more about tenancy length in our glossary page.
- Let type:
- Long term
- Furnish type:
- Furnished
- Council Tax:
- Ask agent
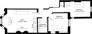
- PROPERTY TYPE
Flat
- BEDROOMS
2
- BATHROOMS
1
- SIZE
603 sq ft
56 sq m
Key features
- Refurbished two-bedroom apartment
- Attractive period building
- Bright reception room with bay window
- High ceilings and character features
- Well-proportioned bedrooms
- Water is payable directly to landlord - £50 per month
Description
The property opens into a welcoming hallway leading to a bright reception room with impressive ceiling height and a large bay window, allowing excellent natural light throughout the day. The living space provides ample room for both relaxing and dining, enhanced by decorative cornicing, wood flooring and tasteful modern décor. Adjacent to the reception area is a modern open-plan kitchen fitted with sleek cabinetry, integrated oven and hob, and generous worktop space, making it both practical and visually appealing.
There are two well-proportioned bedrooms, each finished in neutral tones to maximise light and space. The principal bedroom comfortably accommodates a double bed and storage furniture, while the second bedroom is ideal as a guest room, home office or study. The contemporary shower room is finished to a high standard, featuring a large walk-in shower, vanity basin, WC and modern tiling.
The apartment is ideally located close to a wide range of local amenities including cafés, restaurants, boutique shops and supermarkets, as well as nearby Underground stations providing convenient access to the West End, the City and Paddington. Nearby green spaces offer additional appeal, making the property well suited to professionals, sharers or a couple seeking a high-quality London residence.
A rare opportunity to be the very first resident and this newly refurbished gem!
- COUNCIL TAXA payment made to your local authority in order to pay for local services like schools, libraries, and refuse collection. The amount you pay depends on the value of the property.Read more about council Tax in our glossary page.
- Band: D
- PARKINGDetails of how and where vehicles can be parked, and any associated costs.Read more about parking in our glossary page.
- Ask agent
- GARDENA property has access to an outdoor space, which could be private or shared.
- Ask agent
- ACCESSIBILITYHow a property has been adapted to meet the needs of vulnerable or disabled individuals.Read more about accessibility in our glossary page.
- Ask agent
Warwick Road, London, SW5
Add an important place to see how long it'd take to get there from our property listings.
__mins driving to your place
Notes
Staying secure when looking for property
Ensure you're up to date with our latest advice on how to avoid fraud or scams when looking for property online.
Visit our security centre to find out moreDisclaimer - Property reference 31WR03. The information displayed about this property comprises a property advertisement. Rightmove.co.uk makes no warranty as to the accuracy or completeness of the advertisement or any linked or associated information, and Rightmove has no control over the content. This property advertisement does not constitute property particulars. The information is provided and maintained by City Relay, London. Please contact the selling agent or developer directly to obtain any information which may be available under the terms of The Energy Performance of Buildings (Certificates and Inspections) (England and Wales) Regulations 2007 or the Home Report if in relation to a residential property in Scotland.
*This is the average speed from the provider with the fastest broadband package available at this postcode. The average speed displayed is based on the download speeds of at least 50% of customers at peak time (8pm to 10pm). Fibre/cable services at the postcode are subject to availability and may differ between properties within a postcode. Speeds can be affected by a range of technical and environmental factors. The speed at the property may be lower than that listed above. You can check the estimated speed and confirm availability to a property prior to purchasing on the broadband provider's website. Providers may increase charges. The information is provided and maintained by Decision Technologies Limited. **This is indicative only and based on a 2-person household with multiple devices and simultaneous usage. Broadband performance is affected by multiple factors including number of occupants and devices, simultaneous usage, router range etc. For more information speak to your broadband provider.
Map data ©OpenStreetMap contributors.





