
Byron Way, Stamford

Letting details
- Let available date:
- 10/04/2026
- Deposit:
- £1,148A deposit provides security for a landlord against damage, or unpaid rent by a tenant.Read more about deposit in our glossary page.
- Min. Tenancy:
- Ask agent How long the landlord offers to let the property for.Read more about tenancy length in our glossary page.
- Let type:
- Long term
- Furnish type:
- Unfurnished
- Council Tax:
- Ask agent
- PROPERTY TYPE
Semi-Detached
- BEDROOMS
2
- BATHROOMS
1
- SIZE
Ask agent
Key features
- Semi-Detached House
- Two Bedrooms
- Kitchen/Dining Room
- Single Garage & Driveway Parking
- Close to Schools and Amenities
- Easy Access to the A1
- Enclosed South Facing Garden
- EPC Rating C
- Please see Key facts for Tenants for Material Information Disclosures
Description
In brief the property comprises: a small entrance hall with room for coats and shoes, a pleasant living room to the front of the property and a kitchen/dining room running across the rear, with door opening to the garden beyond. Upstairs there are two bedrooms, the master with built-in cupboard and finally there is a bathroom with shower over the bath.
Externally there is a single garage and driveway providing off-street parking for 1 vehicle. To the rear is a fully enclosed south facing garden which is mainly laid to lawn with a small patio area.
Agents Note:
Holding Deposit - £229
Tenancy Security Deposit – £1148
Local Authority – South Kesteven District Council
Council Tax Band – B
EPC Rating - C
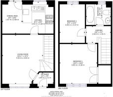
Entrance -
Living Room - 4.04m x 3.33m (13'3 x 10'11) -
Kitchen/Dining - 4.22m x 2.59m (13'10 x 8'6) -
First Floor Landing -
Bedroom 1 - 3.25m x 3.05m (10'8 x 10'0) -
Bedroom 2 - 3.15m x 2.06m (10'4 x 6'9) -
Bathroom -
Single Garage + Off Street Parking -
Enclosed Rear Garden -
Sizes and dimensions are calculated using a laser measuring modelling device and as such whilst representative it must be noted that they are all approximate, actual sizes may vary
Brochures
Byron Way, StamfordKey facts for Tenants (Material Information DiscloBrochure- COUNCIL TAXA payment made to your local authority in order to pay for local services like schools, libraries, and refuse collection. The amount you pay depends on the value of the property.Read more about council Tax in our glossary page.
- Band: B
- PARKINGDetails of how and where vehicles can be parked, and any associated costs.Read more about parking in our glossary page.
- Garage,Off street
- GARDENA property has access to an outdoor space, which could be private or shared.
- Yes
- ACCESSIBILITYHow a property has been adapted to meet the needs of vulnerable or disabled individuals.Read more about accessibility in our glossary page.
- Ask agent
Byron Way, Stamford
Add an important place to see how long it'd take to get there from our property listings.
__mins driving to your place



Notes
Staying secure when looking for property
Ensure you're up to date with our latest advice on how to avoid fraud or scams when looking for property online.
Visit our security centre to find out moreDisclaimer - Property reference 34503123. The information displayed about this property comprises a property advertisement. Rightmove.co.uk makes no warranty as to the accuracy or completeness of the advertisement or any linked or associated information, and Rightmove has no control over the content. This property advertisement does not constitute property particulars. The information is provided and maintained by Goodwin Property Services, Stamford. Please contact the selling agent or developer directly to obtain any information which may be available under the terms of The Energy Performance of Buildings (Certificates and Inspections) (England and Wales) Regulations 2007 or the Home Report if in relation to a residential property in Scotland.
*This is the average speed from the provider with the fastest broadband package available at this postcode. The average speed displayed is based on the download speeds of at least 50% of customers at peak time (8pm to 10pm). Fibre/cable services at the postcode are subject to availability and may differ between properties within a postcode. Speeds can be affected by a range of technical and environmental factors. The speed at the property may be lower than that listed above. You can check the estimated speed and confirm availability to a property prior to purchasing on the broadband provider's website. Providers may increase charges. The information is provided and maintained by Decision Technologies Limited. **This is indicative only and based on a 2-person household with multiple devices and simultaneous usage. Broadband performance is affected by multiple factors including number of occupants and devices, simultaneous usage, router range etc. For more information speak to your broadband provider.
Map data ©OpenStreetMap contributors.





