
Kent Avenue, Dagenham, RM9 6PE

- PROPERTY TYPE
Apartment
- BEDROOMS
2
- SIZE
Ask developer
Key features
- Ready to move in now
- Private balcony with unobstructed green views
- Principal bedroom with fitted wardrobes and modern en-suite
- Move-ready finishes such as Caesarstone worktops, matt handleless kitchen units and underfloor heating throughout
- Smart storage solutions with multiple built-in cupboards & utility cupboard with washer/dryer
- Built by a top 10 housebuilder with 10-year NHBC warranty
- On-site concierge service at Dagenham Green
Description
The Empire, Apartment 868
21-MINS TO ZONE 1 | Ready to move in 1st floor 2-bedroom apartment with private balcony & unobstructed green views | 2-minute walk to Dagenham Dock station with on-site amenities including a concierge
Apartment 868 is an East-facing home with two bathrooms and uninterrupted green views across Dagenham Green - ideal for those seeking a move-ready home with space, privacy and excellent connectivity.
The open-plan kitchen, dining and living area is designed with the kitchen positioned neatly along one wall to maximise living space. Large windows frame scenic green views of the Central Park, natural light and provide direct access onto the private balcony - perfect for morning coffee or relaxing at the end of the day.
The contemporary kitchen features matt handleless units, Caesarstone worktops, LED feature lighting and a full suite of integrated Bosch appliances including induction hob, oven, microwave, dishwasher and fridge/freezer. With underfloor heating throughout the apartment plus fitted Amtico flooring and high-speed fibre connectivity you can settle in straight away and enjoy the high-quality finishes. Excellent built-in storage includes hallway cupboards and a dedicated utility cupboard housing the washer/dryer.
The principal bedroom features fitted wardrobes and a modern en-suite, while the second bedroom sits adjacent to the main bathroom - ideal for guests, sharers or home working. Both bathrooms are finished in a contemporary style with quality fittings, heated towel rails and a bath with shower over and glass screen in the main bathroom.
Location & connectivity
• The Empire at Dagenham Green, centred around five acres of landscaped parkland
• Dagenham Dock railway station approx. 2-minute walk
• 21 minutes to Central London via Dagenham Dock station
• Concierge service, cafés, shops and boardwalk within the neighbourhood
• District line services via Dagenham Heathway and Dagenham East within easy reach
Enquire now to arrange your viewing of Apartment 868 and see everything the home has to offer or visit our Sales Suite & Show Homes - open daily.
Speak to our sales team about how you could purchase this home with just 5% as a deposit. T&Cs apply.
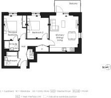
The Empire, Apartment 868 floorplan
Kitchen / Dining / Living - 4.45m x 5.55m (14'7" x 18'3")
Principal Bedroom - 3.45m x 3.75m (11'4" x 12'4")
Bedroom 2 - 3.3m x 3.55m (10'10" x 11'8")
- COUNCIL TAXA payment made to your local authority in order to pay for local services like schools, libraries, and refuse collection. The amount you pay depends on the value of the property.Read more about council Tax in our glossary page.
- Band: TBC
- PARKINGDetails of how and where vehicles can be parked, and any associated costs.Read more about parking in our glossary page.
- Ask developer
- GARDENA property has access to an outdoor space, which could be private or shared.
- Ask developer
- ACCESSIBILITYHow a property has been adapted to meet the needs of vulnerable or disabled individuals.Read more about accessibility in our glossary page.
- Ask developer
Energy performance certificate - ask developer
Kent Avenue, Dagenham, RM9 6PE
Add an important place to see how long it'd take to get there from our property listings.
__mins driving to your place
Get an instant, personalised result:
- Show sellers you’re serious
- Secure viewings faster with agents
- No impact on your credit score
About Hill Residential Limited
The Hill Group is a top 10 housebuilder and one of the leading developers in London, the home counties, and the South. The company is renowned for its partnership ethos, specialising in the building of distinctive new places and communities where people want to live, work, and socialise.
In its 26th year, this family-run company has grown to establish itself as the UK's second-largest privately-owned housebuilder, with an impressive and diverse portfolio of projects ranging from landmark, mixed-use regenerations, and inner-city apartment developments to homes in rural communities.
Employing nearly 1000 people, the company operates from five strategically located regional offices including Bristol and Abingdon to help facilitate growth in the South West and the Midlands, with its head office based in Waltham Abbey, Essex.
Hill completed more than 2,800 homes in the last financial year and has a development pipeline of over 32,000 homes, including 10,200 with planning consent. Around half of its portfolio is in joint ventures to deliver a range of mixed-tenure developments, reflecting Hill’s commitment to partnerships with government, local authorities, housing associations, and private clients.
Since the company was founded in 1999, Hill has won over 500 industry awards, including the esteemed title of WhatHouse? Housebuilder of the Year in 2015, 2020 and 2023. Most recently, Canalside Quarter won Gold for Best House, and Hollymead Square won Gold for Best Sustainable Development at the 2025 WhatHouse? Awards.
Hill’s dedication to delivering the highest quality homes and exceptional customer service has earned the housebuilder its 5-star status in the Home Builders Federation’s annual Customer Satisfaction Survey for the past eight years. Hill is a registered developer with the New Homes Quality Board (NHQB) and follows the New Homes Quality Code (NHQC), a new industry standard to ensure high-quality homes and an exceptional customer experience. With a score of 4.8 out of 5, Hill is also ranked as the number one housebuilder on Trustpilot.
In addition, Hill is donating 200 fully equipped modular homes to local authorities and homeless charities as part of a £15 million pledge through its Foundation 200 programme, launched in 2019 to mark Hill’s 20th anniversary.
In its 26th year, this family-owned and operated company has grown to establish itself as the UK's second-largest privately-owned housebuilder, with an impressive and diverse portfolio of projects ranging from landmark, mixed-use regenerations, and inner-city apartment developments to homes in rural communities.
Employing over 950 staff, the company operates from six strategically located regional offices including Bristol and Abingdon to help facilitate growth in the South West and the Midlands, with its head office based in Waltham Abbey, Essex.
Hill completed more than 2,800 homes in the last financial year and has a development pipeline of over 32,000 homes, including 10,200 with planning consent. Around half of its portfolio is in joint ventures to deliver a range of mixed-tenure developments, reflecting Hill’s commitment to partnerships with government, local authorities, housing associations, and private clients.
Since the company was founded in 1999, Hill has won over 500 industry awards, including the esteemed title of WhatHouse? Housebuilder of the Year in 2015, 2020 and 2023. Most recently in 2024, Millside Grange in Croxley Green also won The Standard’s Homes & Property Award for Best Commuter Home.
In addition, Hill’s dedication to delivering the highest quality homes and exceptional customer service has earned the housebuilder its 5-star status in the Home Builders Federation’s annual Customer Satisfaction Survey for the past eight years. Hill is a registered developer with the New Homes Quality Board (NHQB) and follows the New Homes Quality Code (NHQC), a new industry standard to ensure high-quality homes and an exceptional customer experience. With a score of 4.8 out of 5, Hill is also ranked as the number one housebuilder on Trustpilot.
Hill is donating 200 fully equipped modular homes to local authorities and homeless charities as part of a £15 million pledge through its Foundation 200 programme, launched in 2019 to mark Hill’s 20th anniversary.
Follow us on LinkedIn and Instagram @HillGroupUK
For more information, contact The Oracle Group PR Agency on Tel: 020 8394 2821 or hill@oraclepr.co.uk
*The Hill Group was listed within the top 10 of the Top 150 UK Contractors and Housebuilders published by Building.co.uk in December 2024
Your mortgage
Notes
Staying secure when looking for property
Ensure you're up to date with our latest advice on how to avoid fraud or scams when looking for property online.
Visit our security centre to find out moreDisclaimer - Property reference 2_DgnhmGrn-TheEmpr,Aprtmnt868. The information displayed about this property comprises a property advertisement. Rightmove.co.uk makes no warranty as to the accuracy or completeness of the advertisement or any linked or associated information, and Rightmove has no control over the content. This property advertisement does not constitute property particulars. The information is provided and maintained by Hill Residential Limited. Please contact the selling agent or developer directly to obtain any information which may be available under the terms of The Energy Performance of Buildings (Certificates and Inspections) (England and Wales) Regulations 2007 or the Home Report if in relation to a residential property in Scotland.
*This is the average speed from the provider with the fastest broadband package available at this postcode. The average speed displayed is based on the download speeds of at least 50% of customers at peak time (8pm to 10pm). Fibre/cable services at the postcode are subject to availability and may differ between properties within a postcode. Speeds can be affected by a range of technical and environmental factors. The speed at the property may be lower than that listed above. You can check the estimated speed and confirm availability to a property prior to purchasing on the broadband provider's website. Providers may increase charges. The information is provided and maintained by Decision Technologies Limited. **This is indicative only and based on a 2-person household with multiple devices and simultaneous usage. Broadband performance is affected by multiple factors including number of occupants and devices, simultaneous usage, router range etc. For more information speak to your broadband provider.
Map data ©OpenStreetMap contributors.





