
Kent Avenue, Dagenham, RM9 6PE

- PROPERTY TYPE
Apartment
- BEDROOMS
2
- SIZE
Ask developer
Key features
- Ready to move in now
- Private balcony with direct access from living area
- Principal bedroom with mirrored fitted wardrobes and modern en-suite
- Built by a top 10 rated housebuilder, to a 5-star standard, with a 10-year NHBC warranty
- Caesarstone worktops & matt handleless units
- Underfloor heating throughout at no extra cost
- Smart storage solutions with multiple built-in cupboards & utility cupboard with washer/dryer
- On-site concierge service
Description
The Empire, Apartment 928
READY TO MOVE IN | 21 minutes to Zone 1 | Set on the 9th floor with private balcony | 2-minute walk to station with on-site concierge and amenities
Apartment 928 is ideal for buyers looking for a move-ready home with excellent connectivity, with move-ready finishes it offers contemporary open-plan living, two double bedrooms and a private balcony.
The open-plan kitchen, dining and living area is spacious and bright, with the kitchen set neatly to one side to maximise space for both everyday life and entertaining. Large windows bring in natural light and provide direct access onto the private balcony, seamlessly connecting the living space to the outdoors.
The contemporary kitchen features matt handleless units, Caesarstone worktops, LED feature lighting and a full suite of integrated Bosch appliances including induction hob, oven, microwave, dishwasher and fridge/freezer.
Two double bedrooms are positioned away from the main living area, creating a sense of privacy and separation. The principal bedroom benefits from fitted wardrobes and a modern en-suite bathroom, while the second bedroom sits adjacent to the main bathroom - ideal for guests, sharers or flexible home working. Both bathrooms boast quality finishes including heated towel rails, built-in vanity storage and a bath in the main bathroom with glass screen and shower over.
Storage has been carefully considered, with multiple built-in cupboards and a separate utility cupboard housing the washer/dryer. Underfloor heating runs throughout the home, complemented by Amtico flooring and high-speed fibre connectivity, meaning you can settle in straight away at no additional cost.
Location & connectivity
• The Empire at Dagenham Green, centred around five acres of landscaped parkland
• Concierge service, cafés, shops and boardwalk within the neighbourhood
• Dagenham Dock railway station approx. 2-minute walk
• Around 21 minutes to Zone 1 and approx. 24 minutes to Canary Wharf
• District line access via Dagenham Heathway within easy reach
Enquire now to arrange your viewing of Apartment 928 and see the high-quality finishes and Dagenham Green development first-hand. Or visit our Sales Suite and Show Homes open daily.
You could benefit from our 5% Deposit Boost, where we match your deposit up to 5% on selected homes. Speak with our sales team today for more information. T&Cs apply.
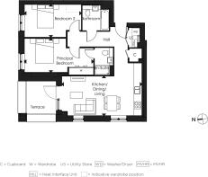
The Empire, Apartment 928 Floorplan
Kitchen/Dining/Living - 6.5m x 3.2m (21'4" x 10'6")
Principal Bedroom - 5.6m x 2.75m (18'4" x 9'0")
Bedroom 2 - 4.65m x 2.65m (15'3" x 8'8")
- COUNCIL TAXA payment made to your local authority in order to pay for local services like schools, libraries, and refuse collection. The amount you pay depends on the value of the property.Read more about council Tax in our glossary page.
- Band: TBC
- PARKINGDetails of how and where vehicles can be parked, and any associated costs.Read more about parking in our glossary page.
- Ask developer
- GARDENA property has access to an outdoor space, which could be private or shared.
- Ask developer
- ACCESSIBILITYHow a property has been adapted to meet the needs of vulnerable or disabled individuals.Read more about accessibility in our glossary page.
- Ask developer
Energy performance certificate - ask developer
Kent Avenue, Dagenham, RM9 6PE
Add an important place to see how long it'd take to get there from our property listings.
__mins driving to your place
Get an instant, personalised result:
- Show sellers you’re serious
- Secure viewings faster with agents
- No impact on your credit score
About Hill Residential Limited
The Hill Group is a top 10 housebuilder and one of the leading developers in London, the home counties, and the South. The company is renowned for its partnership ethos, specialising in the building of distinctive new places and communities where people want to live, work, and socialise.
In its 26th year, this family-run company has grown to establish itself as the UK's second-largest privately-owned housebuilder, with an impressive and diverse portfolio of projects ranging from landmark, mixed-use regenerations, and inner-city apartment developments to homes in rural communities.
Employing nearly 1000 people, the company operates from five strategically located regional offices including Bristol and Abingdon to help facilitate growth in the South West and the Midlands, with its head office based in Waltham Abbey, Essex.
Hill completed more than 2,800 homes in the last financial year and has a development pipeline of over 32,000 homes, including 10,200 with planning consent. Around half of its portfolio is in joint ventures to deliver a range of mixed-tenure developments, reflecting Hill’s commitment to partnerships with government, local authorities, housing associations, and private clients.
Since the company was founded in 1999, Hill has won over 500 industry awards, including the esteemed title of WhatHouse? Housebuilder of the Year in 2015, 2020 and 2023. Most recently, Canalside Quarter won Gold for Best House, and Hollymead Square won Gold for Best Sustainable Development at the 2025 WhatHouse? Awards.
Hill’s dedication to delivering the highest quality homes and exceptional customer service has earned the housebuilder its 5-star status in the Home Builders Federation’s annual Customer Satisfaction Survey for the past eight years. Hill is a registered developer with the New Homes Quality Board (NHQB) and follows the New Homes Quality Code (NHQC), a new industry standard to ensure high-quality homes and an exceptional customer experience. With a score of 4.8 out of 5, Hill is also ranked as the number one housebuilder on Trustpilot.
In addition, Hill is donating 200 fully equipped modular homes to local authorities and homeless charities as part of a £15 million pledge through its Foundation 200 programme, launched in 2019 to mark Hill’s 20th anniversary.
In its 26th year, this family-owned and operated company has grown to establish itself as the UK's second-largest privately-owned housebuilder, with an impressive and diverse portfolio of projects ranging from landmark, mixed-use regenerations, and inner-city apartment developments to homes in rural communities.
Employing over 950 staff, the company operates from six strategically located regional offices including Bristol and Abingdon to help facilitate growth in the South West and the Midlands, with its head office based in Waltham Abbey, Essex.
Hill completed more than 2,800 homes in the last financial year and has a development pipeline of over 32,000 homes, including 10,200 with planning consent. Around half of its portfolio is in joint ventures to deliver a range of mixed-tenure developments, reflecting Hill’s commitment to partnerships with government, local authorities, housing associations, and private clients.
Since the company was founded in 1999, Hill has won over 500 industry awards, including the esteemed title of WhatHouse? Housebuilder of the Year in 2015, 2020 and 2023. Most recently in 2024, Millside Grange in Croxley Green also won The Standard’s Homes & Property Award for Best Commuter Home.
In addition, Hill’s dedication to delivering the highest quality homes and exceptional customer service has earned the housebuilder its 5-star status in the Home Builders Federation’s annual Customer Satisfaction Survey for the past eight years. Hill is a registered developer with the New Homes Quality Board (NHQB) and follows the New Homes Quality Code (NHQC), a new industry standard to ensure high-quality homes and an exceptional customer experience. With a score of 4.8 out of 5, Hill is also ranked as the number one housebuilder on Trustpilot.
Hill is donating 200 fully equipped modular homes to local authorities and homeless charities as part of a £15 million pledge through its Foundation 200 programme, launched in 2019 to mark Hill’s 20th anniversary.
Follow us on LinkedIn and Instagram @HillGroupUK
For more information, contact The Oracle Group PR Agency on Tel: 020 8394 2821 or hill@oraclepr.co.uk
*The Hill Group was listed within the top 10 of the Top 150 UK Contractors and Housebuilders published by Building.co.uk in December 2024
Your mortgage
Notes
Staying secure when looking for property
Ensure you're up to date with our latest advice on how to avoid fraud or scams when looking for property online.
Visit our security centre to find out moreDisclaimer - Property reference 2_DgnhmGrn-TheEmpr,Aprtmnt928. The information displayed about this property comprises a property advertisement. Rightmove.co.uk makes no warranty as to the accuracy or completeness of the advertisement or any linked or associated information, and Rightmove has no control over the content. This property advertisement does not constitute property particulars. The information is provided and maintained by Hill Residential Limited. Please contact the selling agent or developer directly to obtain any information which may be available under the terms of The Energy Performance of Buildings (Certificates and Inspections) (England and Wales) Regulations 2007 or the Home Report if in relation to a residential property in Scotland.
*This is the average speed from the provider with the fastest broadband package available at this postcode. The average speed displayed is based on the download speeds of at least 50% of customers at peak time (8pm to 10pm). Fibre/cable services at the postcode are subject to availability and may differ between properties within a postcode. Speeds can be affected by a range of technical and environmental factors. The speed at the property may be lower than that listed above. You can check the estimated speed and confirm availability to a property prior to purchasing on the broadband provider's website. Providers may increase charges. The information is provided and maintained by Decision Technologies Limited. **This is indicative only and based on a 2-person household with multiple devices and simultaneous usage. Broadband performance is affected by multiple factors including number of occupants and devices, simultaneous usage, router range etc. For more information speak to your broadband provider.
Map data ©OpenStreetMap contributors.





