
Thatcham Avenue Kingsway, Quedgeley, GL2

Letting details
- Let available date:
- 17/03/2026
- Deposit:
- £1,730A deposit provides security for a landlord against damage, or unpaid rent by a tenant.Read more about deposit in our glossary page.
- Min. Tenancy:
- 6 months How long the landlord offers to let the property for.Read more about tenancy length in our glossary page.
- Let type:
- Long term
- Furnish type:
- Unfurnished
- Council Tax:
- Ask agent
- PROPERTY TYPE
Terraced
- BEDROOMS
4
- BATHROOMS
3
- SIZE
Ask agent
Key features
- Four Bedroom Terraced House
- Gas Central Heating
- Master Bedroom With En-Suite
- Three Good Sized Double Rooms & One Single
- Garage and Off Road Parking
- Downstairs WC and First Floor Family Bathroom
- Kitchen/Diner
- Minimum Tenancy Term: 6 Months
- Council Tax Band: C
Description
Proudly presented by Move Property Sales & Lettings, this well-presented four-bedroom terraced home is available to rent, located in the sought-after Kingsway area.
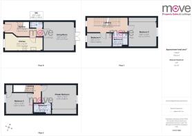
Arranged over three floors, the property offers flexible and spacious living accommodation. The ground floor comprises a welcoming entrance hall, a cloakroom, a modern kitchen/diner, and a generous living room featuring patio doors that open onto the enclosed rear garden.
The first floor hosts bedrooms two and four, with bedroom two benefiting from built-in wardrobes, along with a contemporary family bathroom fitted with a WC, wash hand basin, and bath.
Occupying the top floor are bedroom three and the master bedroom, which features built-in wardrobes and a private en-suite shower room.
Additional benefits include gas central heating throughout, a garage, and off-road parking.
Contact Move to arrange your viewing.
Minimum Tenancy Term: 6 Months
Council Tax Band: C
A holding deposit equivalent of one weeks rent is required to secure the property. This amount goes towards the first months rent. Deposit payable will be equivalent to five weeks rent.
EPC Rating: B
- COUNCIL TAXA payment made to your local authority in order to pay for local services like schools, libraries, and refuse collection. The amount you pay depends on the value of the property.Read more about council Tax in our glossary page.
- Band: C
- PARKINGDetails of how and where vehicles can be parked, and any associated costs.Read more about parking in our glossary page.
- Yes
- GARDENA property has access to an outdoor space, which could be private or shared.
- Yes
- ACCESSIBILITYHow a property has been adapted to meet the needs of vulnerable or disabled individuals.Read more about accessibility in our glossary page.
- Ask agent
Energy performance certificate - ask agent
Thatcham Avenue Kingsway, Quedgeley, GL2
Add an important place to see how long it'd take to get there from our property listings.
__mins driving to your place

Notes
Staying secure when looking for property
Ensure you're up to date with our latest advice on how to avoid fraud or scams when looking for property online.
Visit our security centre to find out moreDisclaimer - Property reference a2f650c9-8f5c-467b-9244-4ce91fd3ef6b. The information displayed about this property comprises a property advertisement. Rightmove.co.uk makes no warranty as to the accuracy or completeness of the advertisement or any linked or associated information, and Rightmove has no control over the content. This property advertisement does not constitute property particulars. The information is provided and maintained by Move Sales & Lettings, Gloucester. Please contact the selling agent or developer directly to obtain any information which may be available under the terms of The Energy Performance of Buildings (Certificates and Inspections) (England and Wales) Regulations 2007 or the Home Report if in relation to a residential property in Scotland.
*This is the average speed from the provider with the fastest broadband package available at this postcode. The average speed displayed is based on the download speeds of at least 50% of customers at peak time (8pm to 10pm). Fibre/cable services at the postcode are subject to availability and may differ between properties within a postcode. Speeds can be affected by a range of technical and environmental factors. The speed at the property may be lower than that listed above. You can check the estimated speed and confirm availability to a property prior to purchasing on the broadband provider's website. Providers may increase charges. The information is provided and maintained by Decision Technologies Limited. **This is indicative only and based on a 2-person household with multiple devices and simultaneous usage. Broadband performance is affected by multiple factors including number of occupants and devices, simultaneous usage, router range etc. For more information speak to your broadband provider.
Map data ©OpenStreetMap contributors.





