
Ever Ready Crescent, Dawley, Telford, Shropshire, TF4

- PROPERTY TYPE
Detached
- BEDROOMS
3
- BATHROOMS
2
- SIZE
Ask agent
- TENUREDescribes how you own a property. There are different types of tenure - freehold, leasehold, and commonhold.Read more about tenure in our glossary page.
Freehold
Key features
- Spacious detached family home
- Entrance Hall with guest W/C
- Separate Lounge
- Bright Open Plan Kitchen/Dining/Family Room leading to a covered patio
- Study/Play Room with doors to the rear garden
- En-Suite Shower Room to master bedroom
- Driveway parking
- Large rear garden with patio and lawn
Description
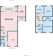
Entrance hallway and cloaks/wc, pull out storage under the stairs, lounge having a double glazed bay window to the front. The open plan kitchen/dining/family room is a standout feature to the property with the kitchen area having an attractive range of units, integrated fridge/freezer, gas hob and electric oven, three double glazed velux roof lights and French doors open into a covered seating area on the patio, a door from the kitchen/diner/family room leads to the previous garage which is now an additional space and would make an ideal study/play room.
To the first floor the master bedroom has an en suite shower room, two further bedrooms and a family bathroom.
Outside is a driveway and a storage area with up and over door. A gate and pathway leads down the side to the lovely rear garden, being laid to lawn and having a summer house and a decked terrace with views over the field behind.
Service Charge £186.01 per annum
All services are mains connected
Off street parking
Mobile coverage from all four major networks available*
Ultrafast broadband available*
*Results provided by Ofcom and correct at time of listing
Entrance Hall
Cloaks/WC
Lounge
5.2m x 3.1m
Open Plan Kitchen/Dining/Family Room
6m x 5.2m
Study/Play Room
3.3m x 2.4m
First Floor Landing
Master Bedroom
3.6m x 3.1m
En Suite Shower Room
3.1m x 1.2m
Bedroom
3.2m x 2.6m
Bedroom
2.5m x 2.1m
Bathroom
2.1m x 1.9m
Brochures
Particulars- COUNCIL TAXA payment made to your local authority in order to pay for local services like schools, libraries, and refuse collection. The amount you pay depends on the value of the property.Read more about council Tax in our glossary page.
- Band: D
- PARKINGDetails of how and where vehicles can be parked, and any associated costs.Read more about parking in our glossary page.
- Driveway
- GARDENA property has access to an outdoor space, which could be private or shared.
- Yes
- ACCESSIBILITYHow a property has been adapted to meet the needs of vulnerable or disabled individuals.Read more about accessibility in our glossary page.
- Ask agent
Ever Ready Crescent, Dawley, Telford, Shropshire, TF4
Add an important place to see how long it'd take to get there from our property listings.
__mins driving to your place
Get an instant, personalised result:
- Show sellers you’re serious
- Secure viewings faster with agents
- No impact on your credit score



Affordability
Notes
Staying secure when looking for property
Ensure you're up to date with our latest advice on how to avoid fraud or scams when looking for property online.
Visit our security centre to find out moreDisclaimer - Property reference TTC260394. The information displayed about this property comprises a property advertisement. Rightmove.co.uk makes no warranty as to the accuracy or completeness of the advertisement or any linked or associated information, and Rightmove has no control over the content. This property advertisement does not constitute property particulars. The information is provided and maintained by D B Roberts & Partners, Telford. Please contact the selling agent or developer directly to obtain any information which may be available under the terms of The Energy Performance of Buildings (Certificates and Inspections) (England and Wales) Regulations 2007 or the Home Report if in relation to a residential property in Scotland.
*This is the average speed from the provider with the fastest broadband package available at this postcode. The average speed displayed is based on the download speeds of at least 50% of customers at peak time (8pm to 10pm). Fibre/cable services at the postcode are subject to availability and may differ between properties within a postcode. Speeds can be affected by a range of technical and environmental factors. The speed at the property may be lower than that listed above. You can check the estimated speed and confirm availability to a property prior to purchasing on the broadband provider's website. Providers may increase charges. The information is provided and maintained by Decision Technologies Limited. **This is indicative only and based on a 2-person household with multiple devices and simultaneous usage. Broadband performance is affected by multiple factors including number of occupants and devices, simultaneous usage, router range etc. For more information speak to your broadband provider.
Map data ©OpenStreetMap contributors.





