
Ernle Road, Wimbledon, London, SW20

- PROPERTY TYPE
Detached
- BEDROOMS
6
- BATHROOMS
2
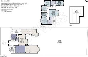
- SIZE
3,251 sq ft
302 sq m
- TENUREDescribes how you own a property. There are different types of tenure - freehold, leasehold, and commonhold.Read more about tenure in our glossary page.
Freehold
Key features
- Beautifully refurbished throughout
- Exceptional entertaining space
- Six bedrooms
- Extensive open plan kitchen/dining/living space
- Private mature south facing rear garden
- Off-street parking
- Integral garage
- EPC Rating = D
Description
Description
This exceptional, six bedroom detached family house is set back behind electric gates with a driveway/off street parking and offers beautifully designed lateral living and entertaining spaces. The property opens into an impressive entrance hall with attractive painted wall panelling, and internal brick slips bringing texture and warmth. Elegant engineered white oak flooring extends across the property complete with underfloor heating. To the rear is a spectacular open plan living space which runs the entire width of the house incorporating a stunning kitchen, dining space and two reception areas. Windows across the back of the house allow a tremendous amount of natural light and lovely green views of the private, landscaped south facing garden, extending to 114 ft. The bespoke Roundhouse kitchen features, high quality integrated appliances, pendant lighting and a large central island/breakfast bar. To the front is an integrated garage, a utility room, a fully fitted boot room and a guest cloakroom.
Upstairs, the principal suite is arranged across the rear of the house with well designed contemporary wardrobe space and a stylish en suite shower room. There are a further five bedrooms, and a contemporary family bathroom.
Location
Ernle Road is a popular residential street on the edge of Wimbledon Village and around 600 metres from the Common.
The village itself offers a number of pretty boutique shops and a wide range of bars and restaurants. Crooked Billet with its attractive village green and two well known pubs is only around 400 metres away with the Common offering 1,100 acres of wide open space ideal for walking, cycling or riding. Within the Common are three golf courses.
Local transport links can be found at either Wimbledon mainline and underground station or Raynes Park station (London Waterloo 20 minutes) both around one mile away and accessible via the regular 200 bus route. One of the area's well regarded schools King's College School is within approx. 300 metres.
Source of times
Source of distances Google Pedometer
All measurements are approximate
Square Footage: 3,251 sq ft
Additional Info
Underfloor heating
Broadband
Garage
EV charging point
Conservation area
Tree preservation area
Brochures
Web DetailsParticulars- COUNCIL TAXA payment made to your local authority in order to pay for local services like schools, libraries, and refuse collection. The amount you pay depends on the value of the property.Read more about council Tax in our glossary page.
- Band: H
- PARKINGDetails of how and where vehicles can be parked, and any associated costs.Read more about parking in our glossary page.
- Yes
- GARDENA property has access to an outdoor space, which could be private or shared.
- Yes
- ACCESSIBILITYHow a property has been adapted to meet the needs of vulnerable or disabled individuals.Read more about accessibility in our glossary page.
- Ask agent
Ernle Road, Wimbledon, London, SW20
Add an important place to see how long it'd take to get there from our property listings.
__mins driving to your place
Get an instant, personalised result:
- Show sellers you’re serious
- Secure viewings faster with agents
- No impact on your credit score
Your mortgage
Notes
Staying secure when looking for property
Ensure you're up to date with our latest advice on how to avoid fraud or scams when looking for property online.
Visit our security centre to find out moreDisclaimer - Property reference WMS240243. The information displayed about this property comprises a property advertisement. Rightmove.co.uk makes no warranty as to the accuracy or completeness of the advertisement or any linked or associated information, and Rightmove has no control over the content. This property advertisement does not constitute property particulars. The information is provided and maintained by Savills, Wimbledon. Please contact the selling agent or developer directly to obtain any information which may be available under the terms of The Energy Performance of Buildings (Certificates and Inspections) (England and Wales) Regulations 2007 or the Home Report if in relation to a residential property in Scotland.
*This is the average speed from the provider with the fastest broadband package available at this postcode. The average speed displayed is based on the download speeds of at least 50% of customers at peak time (8pm to 10pm). Fibre/cable services at the postcode are subject to availability and may differ between properties within a postcode. Speeds can be affected by a range of technical and environmental factors. The speed at the property may be lower than that listed above. You can check the estimated speed and confirm availability to a property prior to purchasing on the broadband provider's website. Providers may increase charges. The information is provided and maintained by Decision Technologies Limited. **This is indicative only and based on a 2-person household with multiple devices and simultaneous usage. Broadband performance is affected by multiple factors including number of occupants and devices, simultaneous usage, router range etc. For more information speak to your broadband provider.
Map data ©OpenStreetMap contributors.





