
Fleetwood Close, London

- PROPERTY TYPE
End of Terrace
- BEDROOMS
3
- BATHROOMS
1
- SIZE
Ask agent
- TENUREDescribes how you own a property. There are different types of tenure - freehold, leasehold, and commonhold.Read more about tenure in our glossary page.
Freehold
Key features
- No onward chain
- Three-bedroom end-of-terrace house
- Off-street parking
- Very generous private rear garden
- Well maintained and ready to move into
- Excellent transport links: Jubilee, DLR & Elizabeth Line
- Close to Royal Docks, ExCeL & City Island
- Prime E16 location with strong regeneration and growth
Description
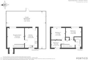
The ground floor offers a bright and welcoming living space, ideal for everyday family life and entertaining. The kitchen is well arranged and enjoys direct access to the rear garden, creating an easy and functional flow between indoor and outdoor living.
Upstairs, the property provides three well-proportioned bedrooms and a family bathroom, all presented in good condition and ready for immediate occupation.
Externally, the home truly stands out. The large rear garden offers excellent space for family use, entertaining, or future landscaping, while the end-of-terrace position allows for greater natural light and a more open feel. Off-street parking to the front further enhances the practicality of the property.
Planning Potential
The property also benefits from planning permission already granted for the development of two three-bedroom houses, presenting a significant opportunity for developers, investors, or buyers looking to maximise the site’s potential. Approved architectural drawings and plans are available, clearly outlining the proposed scheme. This offers excellent scope for redevelopment and future value, subject to the approved plans and the usual building regulations.
Location Highlights
E16 3 is ideally positioned within one of East London’s most rapidly evolving and increasingly sought-after locations. Canning Town Station is within easy reach, offering Jubilee Line and DLR connections, while Custom House (Elizabeth Line) provides fast, direct routes to Canary Wharf, Stratford, Liverpool Street, the West End and Heathrow.
The surrounding area continues to benefit from major regeneration across the Royal Docks, with nearby landmarks including ExCeL London, London City Airport and City Island, all contributing to strong demand and long-term growth. Residents also enjoy local cafés, restaurants, riverside walks, and convenient road access via the A13, A406 (North Circular) and Blackwall Tunnel.
This is a chain-free, end-of-terrace family home combining space, connectivity and future potential.
Early viewing is highly recommended.
- COUNCIL TAXA payment made to your local authority in order to pay for local services like schools, libraries, and refuse collection. The amount you pay depends on the value of the property.Read more about council Tax in our glossary page.
- Band: TBC
- PARKINGDetails of how and where vehicles can be parked, and any associated costs.Read more about parking in our glossary page.
- Yes
- GARDENA property has access to an outdoor space, which could be private or shared.
- Yes
- ACCESSIBILITYHow a property has been adapted to meet the needs of vulnerable or disabled individuals.Read more about accessibility in our glossary page.
- Ask agent
Energy performance certificate - ask agent
Fleetwood Close, London
Add an important place to see how long it'd take to get there from our property listings.
__mins driving to your place
Get an instant, personalised result:
- Show sellers you’re serious
- Secure viewings faster with agents
- No impact on your credit score
Affordability
Notes
Staying secure when looking for property
Ensure you're up to date with our latest advice on how to avoid fraud or scams when looking for property online.
Visit our security centre to find out moreDisclaimer - Property reference ILF260036. The information displayed about this property comprises a property advertisement. Rightmove.co.uk makes no warranty as to the accuracy or completeness of the advertisement or any linked or associated information, and Rightmove has no control over the content. This property advertisement does not constitute property particulars. The information is provided and maintained by Portico, Ilford. Please contact the selling agent or developer directly to obtain any information which may be available under the terms of The Energy Performance of Buildings (Certificates and Inspections) (England and Wales) Regulations 2007 or the Home Report if in relation to a residential property in Scotland.
*This is the average speed from the provider with the fastest broadband package available at this postcode. The average speed displayed is based on the download speeds of at least 50% of customers at peak time (8pm to 10pm). Fibre/cable services at the postcode are subject to availability and may differ between properties within a postcode. Speeds can be affected by a range of technical and environmental factors. The speed at the property may be lower than that listed above. You can check the estimated speed and confirm availability to a property prior to purchasing on the broadband provider's website. Providers may increase charges. The information is provided and maintained by Decision Technologies Limited. **This is indicative only and based on a 2-person household with multiple devices and simultaneous usage. Broadband performance is affected by multiple factors including number of occupants and devices, simultaneous usage, router range etc. For more information speak to your broadband provider.
Map data ©OpenStreetMap contributors.








