
Malthouse Lane Fareham UNFURNISHED

Letting details
- Let available date:
- 06/03/2026
- Deposit:
- £1,067A deposit provides security for a landlord against damage, or unpaid rent by a tenant.Read more about deposit in our glossary page.
- Min. Tenancy:
- Ask agent How long the landlord offers to let the property for.Read more about tenancy length in our glossary page.
- Let type:
- Long term
- Furnish type:
- Unfurnished
- Council Tax:
- Ask agent
- PROPERTY TYPE
Flat
- BEDROOMS
1
- BATHROOMS
1
- SIZE
Ask agent
Key features
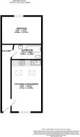
- ONE DOUBLE BEDROOM
- TOP FLOOR FLAT
- OPEN PLAN KITCHEN/LOUNGE/DINER
- BATHROOM
- ROOF TERRACE
- FAREHAM TOWN CENTRE LOCATION
- CLOSE TO LOCAL BUS & TRAIN TRANSPORT LINKS
- GAS CENTRAL HEATING
- NO PETS, SORRY
- AVAILABLE NOW
Description
The property comprises;
KITCHEN/ LOUNGE/ DINER - Fitted kitchen units, with oven & gas hob, extractor hood and washing machine.
BEDROOM 1 - Double bedroom with window to front aspect.
BATHROOM - Shower over bath, hand basin, toilet. Boiler.
OUTSIDE: Roof terrace with metal stairs to street level.
Please note permit parking can be applied for through Fareham Council
DEPOSIT: £1,067.00 (TO BE HELD UNDER THE TDS).
EPC: B
COUNCIL TAX: Fareham Borough Council - Band: A
WEEKLY PRICE: £213.46
BROADBAND: Current provider... Unknown. Available in area speeds from 19Mbps, faster speeds may be available. Information obtained from OFCOM - It is recommended that the occupier checks with the service provider for connectivity.
TV AERIAL AVAILABLE
MOBILE SIGNAL: Listed as limited availability by OFCOM
UTILITIES: Mains supplied
NO PETS, SORRY
MINIMUM TERM: TWELVE MONTHS
A holding deposit of one week's rent will be required to secure the property. This fee is payable at the time of application for the tenancy and will be held for up to 15 calendar days whilst reference checks and preparation for the tenancy agreement are undertaken.
The holding deposit can be retained should the applicant fail the Right to Rent check, provide false or misleading information that would affect the Landlord's decision to grant the tenancy, the applicant withdraws from the tenancy, or the applicant fails to take all reasonable steps to enter into a tenancy agreement.
In Tenancy Penalty Fees apply, see website for details.
- COUNCIL TAXA payment made to your local authority in order to pay for local services like schools, libraries, and refuse collection. The amount you pay depends on the value of the property.Read more about council Tax in our glossary page.
- Band: A
- PARKINGDetails of how and where vehicles can be parked, and any associated costs.Read more about parking in our glossary page.
- Yes
- GARDENA property has access to an outdoor space, which could be private or shared.
- Ask agent
- ACCESSIBILITYHow a property has been adapted to meet the needs of vulnerable or disabled individuals.Read more about accessibility in our glossary page.
- Ask agent
Malthouse Lane Fareham UNFURNISHED
Add an important place to see how long it'd take to get there from our property listings.
__mins driving to your place
Notes
Staying secure when looking for property
Ensure you're up to date with our latest advice on how to avoid fraud or scams when looking for property online.
Visit our security centre to find out moreDisclaimer - Property reference PRLFC_704184. The information displayed about this property comprises a property advertisement. Rightmove.co.uk makes no warranty as to the accuracy or completeness of the advertisement or any linked or associated information, and Rightmove has no control over the content. This property advertisement does not constitute property particulars. The information is provided and maintained by Pearsons, Fareham. Please contact the selling agent or developer directly to obtain any information which may be available under the terms of The Energy Performance of Buildings (Certificates and Inspections) (England and Wales) Regulations 2007 or the Home Report if in relation to a residential property in Scotland.
*This is the average speed from the provider with the fastest broadband package available at this postcode. The average speed displayed is based on the download speeds of at least 50% of customers at peak time (8pm to 10pm). Fibre/cable services at the postcode are subject to availability and may differ between properties within a postcode. Speeds can be affected by a range of technical and environmental factors. The speed at the property may be lower than that listed above. You can check the estimated speed and confirm availability to a property prior to purchasing on the broadband provider's website. Providers may increase charges. The information is provided and maintained by Decision Technologies Limited. **This is indicative only and based on a 2-person household with multiple devices and simultaneous usage. Broadband performance is affected by multiple factors including number of occupants and devices, simultaneous usage, router range etc. For more information speak to your broadband provider.
Map data ©OpenStreetMap contributors.







