Walton Street, Colne, BB8

- PROPERTY TYPE
Terraced
- BEDROOMS
3
- BATHROOMS
1
- SIZE
Ask agent
Key features
- Extended Mid-Terrace
- Two Double Bedrooms
- Dining Room With Log Burner
- Close To Colne Town Centre
- Perfect First Home
- Two Reception Rooms
- Short Distance To M65
- Extended Bathroom Suite
- No Chain
Description
An excellent opportunity to add your own stamp, this extended mid-terrace property is ideally suited to first-time buyers or investors alike. Conveniently positioned close to Colne Town Centre, local shops and with easy access to the M65.
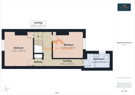
Approached via a flagged front courtyard, the property opens into an entrance hallway. To the front is a lounge which has previously been used as a salon and includes a water supply for a salon chair; this can be easily removed with minimal redecoration required. To the rear, the dining room benefits from useful understairs storage and features a log burner, creating a warm and attractive focal point.
The kitchen has been extended across the full width of the property and is fitted in a U-shaped arrangement, providing ample worktop and storage space, with room for a dining table.
To the first floor are two generously sized double bedrooms. The landing leads to a spacious bathroom comprising a low-level WC, pedestal wash hand basin and a panelled bath with overhead shower.
- COUNCIL TAXA payment made to your local authority in order to pay for local services like schools, libraries, and refuse collection. The amount you pay depends on the value of the property.Read more about council Tax in our glossary page.
- Band: A
- PARKINGDetails of how and where vehicles can be parked, and any associated costs.Read more about parking in our glossary page.
- Ask agent
- GARDENA property has access to an outdoor space, which could be private or shared.
- Ask agent
- ACCESSIBILITYHow a property has been adapted to meet the needs of vulnerable or disabled individuals.Read more about accessibility in our glossary page.
- Ask agent
Energy performance certificate - ask agent
Walton Street, Colne, BB8
Add an important place to see how long it'd take to get there from our property listings.
__mins driving to your place
Get an instant, personalised result:
- Show sellers you’re serious
- Secure viewings faster with agents
- No impact on your credit score
Your mortgage
Notes
Staying secure when looking for property
Ensure you're up to date with our latest advice on how to avoid fraud or scams when looking for property online.
Visit our security centre to find out moreDisclaimer - Property reference e223f7b3-86e3-4032-9b0e-b0e6a43d9e92. The information displayed about this property comprises a property advertisement. Rightmove.co.uk makes no warranty as to the accuracy or completeness of the advertisement or any linked or associated information, and Rightmove has no control over the content. This property advertisement does not constitute property particulars. The information is provided and maintained by Farrar & Forbes Estate Agents, Colne. Please contact the selling agent or developer directly to obtain any information which may be available under the terms of The Energy Performance of Buildings (Certificates and Inspections) (England and Wales) Regulations 2007 or the Home Report if in relation to a residential property in Scotland.
*This is the average speed from the provider with the fastest broadband package available at this postcode. The average speed displayed is based on the download speeds of at least 50% of customers at peak time (8pm to 10pm). Fibre/cable services at the postcode are subject to availability and may differ between properties within a postcode. Speeds can be affected by a range of technical and environmental factors. The speed at the property may be lower than that listed above. You can check the estimated speed and confirm availability to a property prior to purchasing on the broadband provider's website. Providers may increase charges. The information is provided and maintained by Decision Technologies Limited. **This is indicative only and based on a 2-person household with multiple devices and simultaneous usage. Broadband performance is affected by multiple factors including number of occupants and devices, simultaneous usage, router range etc. For more information speak to your broadband provider.
Map data ©OpenStreetMap contributors.





