
East House Farm Cottages, Follingsby, Washington, Tyne & Wear, NE37

- PROPERTY TYPE
Semi-Detached
- BEDROOMS
3
- BATHROOMS
1
- SIZE
Ask agent
- TENUREDescribes how you own a property. There are different types of tenure - freehold, leasehold, and commonhold.Read more about tenure in our glossary page.
Freehold
Key features
- Unique & Character Property
- Private Driveway & Garage
- Utility Room
- Three Bedroom Semi-Detached
- Stunning Farmland Views
- Private and Picturesque Location
- Extended Kitchen/Diner
- Freehold
- Generous Sized Plot
Description
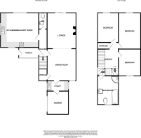
Entrance Porch
Enter through doorway into porch with double glazed windows and internal doorway into hallway. The hallway features carpet to the floor, carpeted stairs leading to first floor, neutral walls and doors off to lounge, w/c and kitchen.
W/C
1.73m x 1.2m
The w/c features neutral walls, double glazed window, hand wash basin, w/c and radiator.
Lounge
3.73m x 4.17m
The spacious lounge offers carpet to the floor, neutral walls, original fireplace feature, and large double glazed sliding patio doors which lead out into the rear garden and flood the space with natural light. The lounge is open plan to the dining space.
Dining Room
4.17m x 3.8m
The good-sized dining room is complete with carpet to the floor, double glazed window, neutral walls, large built in storage space and doorway which leads into the utility room.
Kitchen
3.96m x 4m
The extended kitchen area is filled with natural light form the large double glazed windows looking out over the gardens and offers the stunning views across the fields to the rear. The space is finished with a range of base and wall units providing ample storage and housing integrated hob, oven, stainless steel sink with mixer tap and extractor. Neutral walls, tiled floors and radiator also feature.
Utility Room
2.77m x 2.4m
The utility room offers built in storage units with integrated stainless steel sink and mixer tap, two large double glazed windows, neutral walls and floors and internal doorway leads into the garage.
First Floor Landing
The landing area offers carpet to the floor, neutral walls and doors off to bedrooms and family bathroom.
Bedroom
3.45m x 2.26m
The second spacious double bedroom benefits from carpet to the floor, neutral walls, double glazed window and radiator.
Bedroom
2.67m x 3.33m
The third good-sized bedroom is complete with radiator, double glazed window with views over the fields and of Penshaw Monument, neutral walls and carpet flooring.
Master Bedroom
4.4m x 2.7m
The principle bedroom is well presented and complete with carpet to the floor, neutral walls and double glazed window looking out over the rear aspect of the property providing the stunning views. Radiator
Bathroom
2.3m x 2.72m
The family bathroom is very generous in size and offers bath, w/c, hand wash basin, double glazed window, radiator and
External
To the front, paved private and gated driveway provides space for multiple vehicles. Paved pathway lead around the front garden with natural grass section and shrubbery which flows round the side of the property as well. To the rear, a block paved patio/seating area with direct and beautiful views over the farmland which the property backs onto.
Disclaimer
DISCLAIMER Your home is at risk if you do not keep up repayments on your mortgage or other loans secured on it. MORTGAGE ADVICE It is now a legal requirement under the Estate Agents Act 1991, to establish what mortgage, if any, is required and to confirm the applicants ability to obtain this finance. If you need any help or advice over obtaining a mortgage, our mortgage department will be pleased to help and advise you on all Building Society or Bank mortgages without obligation. This service is available even if you are not buying via ourselves. Written quotations available on request. There is no charge for this service. PLEASE NOTE Please note that all sizes have been measured with an electronic measuring tape and are approximations only. Under the terms of the property miss-descriptions act we are obliged to point out that none of the services described in these particulars have been tested by ourselves. We present these details of the property in good faith and they (truncated)
Property Information
The following information should be read and considered by any potential buyers prior to making a transactional decision. We are advised by the seller that the property has mains gas, electricity, water and drainage. MAINTENANCE/SERVICE CHARGES- No WATER METER- No PARKING ARRANGEMENTS: Multi Car Driveway and Garage BROADBAND SPEED: No issues reported by vendor. The maximum speed for broadband in this area is shown by inputting the postcode at the following link here> Broadband Speed Checker - UK's No.1 Broadband Speed Test ELECTRIC CAR CHARGER- No MOBILE PHONE SIGNAL: No known issues at the property NORTH EAST OF ENGLAND- EX MINING AREA: We operate in an ex-mining area. This property may have been built on or near an ex-mining site. Further information can/will be clarified by the Solicitors prior to completion. The information above has been provided by the seller and has not yet been verified at this point of producing this material. There may be more information related (truncated)
Brochures
Particulars- COUNCIL TAXA payment made to your local authority in order to pay for local services like schools, libraries, and refuse collection. The amount you pay depends on the value of the property.Read more about council Tax in our glossary page.
- Band: C
- PARKINGDetails of how and where vehicles can be parked, and any associated costs.Read more about parking in our glossary page.
- Yes
- GARDENA property has access to an outdoor space, which could be private or shared.
- Yes
- ACCESSIBILITYHow a property has been adapted to meet the needs of vulnerable or disabled individuals.Read more about accessibility in our glossary page.
- Ask agent
East House Farm Cottages, Follingsby, Washington, Tyne & Wear, NE37
Add an important place to see how long it'd take to get there from our property listings.
__mins driving to your place
Get an instant, personalised result:
- Show sellers you’re serious
- Secure viewings faster with agents
- No impact on your credit score



Your mortgage
Notes
Staying secure when looking for property
Ensure you're up to date with our latest advice on how to avoid fraud or scams when looking for property online.
Visit our security centre to find out moreDisclaimer - Property reference GOL260040. The information displayed about this property comprises a property advertisement. Rightmove.co.uk makes no warranty as to the accuracy or completeness of the advertisement or any linked or associated information, and Rightmove has no control over the content. This property advertisement does not constitute property particulars. The information is provided and maintained by Jill Moore Select Properties, Washington. Please contact the selling agent or developer directly to obtain any information which may be available under the terms of The Energy Performance of Buildings (Certificates and Inspections) (England and Wales) Regulations 2007 or the Home Report if in relation to a residential property in Scotland.
*This is the average speed from the provider with the fastest broadband package available at this postcode. The average speed displayed is based on the download speeds of at least 50% of customers at peak time (8pm to 10pm). Fibre/cable services at the postcode are subject to availability and may differ between properties within a postcode. Speeds can be affected by a range of technical and environmental factors. The speed at the property may be lower than that listed above. You can check the estimated speed and confirm availability to a property prior to purchasing on the broadband provider's website. Providers may increase charges. The information is provided and maintained by Decision Technologies Limited. **This is indicative only and based on a 2-person household with multiple devices and simultaneous usage. Broadband performance is affected by multiple factors including number of occupants and devices, simultaneous usage, router range etc. For more information speak to your broadband provider.
Map data ©OpenStreetMap contributors.





