The Old Stables, Langton Long, Blandford Forum, DT11

- PROPERTY TYPE
Terraced
- BEDROOMS
3
- BATHROOMS
3
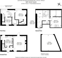
- SIZE
1,565 sq ft
145 sq m
Key features
- Secluded parkland setting
- Imaginative and well executed conversion
- Beautifully finished interior (about 1,500 sq/ft)
- Refitted kitchen with Miele appliances
- Large light sitting room opening onto terrace
- 3 bedrooms and 3 bath/shower rooms
- Sunny private patio leading onto grounds.
- Perfect “lock up and leave” retreat
- 999 year Lease. Freehold owned (1/10th share)
Description
Set in beautiful parkland overlooking the Stour valley just a mile from the centre of Blandford Forum, this exquisite Georgian stable block luckily survived the demolition of Langton House in the 1950’s and it has a fascinating history. The wonderful octagonal courtyard was skilfully converted in to 10 mews style houses in the late 1980’s and No.3 was comprehensively refurbished again by the previous owner about 15 years ago. Since then it has been immaculately well maintained and in contrast to the classical exterior the interior is presented in a crisp contemporary style. Off the entrance hall there is a smart modern kitchen/breakfast room with top quality Miele appliances and an attractive sitting room with an fireplace and views over the park and the river beyond. Upstairs there are three generous bedrooms and three bath/shower rooms. The cleverly designed layout of the two landings provides lots of additional reception space, storage or office space, and an ideal environment for working from home. As well as a refitted kitchen and upgraded bathrooms, a new heating system with replacement boiler, flat panel radiators and a pressurised hot water system have been installed. All these superb features make No.3 The Old Stables a perfect “lock up and leave” country retreat or a practical easy to manage live/work home in a convenient and fabulous rural setting.
No. 3 probably has the best view of all the houses in The Stables with steps from the sitting room leading down on to a small private southwest facing terrace which opens directly out on to the lawns and parkland surrounding the property, which are available for the communal use of all 10 houses. Off the gravel drive in front of the entrance to the courtyard there is a generous visitor parking area and a double garage with additional loft storage.
The Old Stables are set in beautiful parkland on the edge of Langton Long, as small village with a cluster of houses and a church located just a mile from the centre of the Georgian market town of Blandford Forum, described by the Guardian in 2013 as a small ‘Bath in brick’. There is a good range of local amenities including an M&S Food Hall, Tesco and Lidl superstores. Much of the lovely countryside surrounding the village is designated as an Area of Outstanding Natural Beauty (AONB), and there are great opportunities to walk or ride down along the river valley towards Kingston Lacey (National Trust) or up on to Cranborne Chase. And there are plenty of other opportunities for recreation including sailing and water sports with Poole Harbour, Studland Bay close by and The Purbecks and Dorset’s renowned Jurassic coastline not much more than half an hour’s drive away. Communication links generally are excellent. The village’s close proximity to the Poole, Bournemouth and Ferndown make it hugely convenient for people who work in that area. Commuting is straight forward and easy access on to the A31 provides a quick like to the M27 for Southampton and Portsmouth and on to the M3 up to London. Poole station has a fast regular train service to London Waterloo (about 2 hours), Southampton and Bournemouth airports, and Poole ferry terminal are all within easy reach.
Property Information
Mains water and electricity. LPG heating (central storage).
Private drainage.
Good broadband and moderate mobile service. For more information on both go to
Leasehold and Management Information
Lease: 999 years from 1987. Freehold owned (1/10th share).
Management charge: £4,500 per annum payable half yearly in advance. Includes; building insurance, grounds maintenance, drainage, window and gutter cleaning, electricity and lighting to common areas.
Brochures
Particulars- COUNCIL TAXA payment made to your local authority in order to pay for local services like schools, libraries, and refuse collection. The amount you pay depends on the value of the property.Read more about council Tax in our glossary page.
- Band: E
- LISTED PROPERTYA property designated as being of architectural or historical interest, with additional obligations imposed upon the owner.Read more about listed properties in our glossary page.
- Listed
- PARKINGDetails of how and where vehicles can be parked, and any associated costs.Read more about parking in our glossary page.
- Garage
- GARDENA property has access to an outdoor space, which could be private or shared.
- Yes
- ACCESSIBILITYHow a property has been adapted to meet the needs of vulnerable or disabled individuals.Read more about accessibility in our glossary page.
- No wheelchair access
Energy performance certificate - ask agent
The Old Stables, Langton Long, Blandford Forum, DT11
Add an important place to see how long it'd take to get there from our property listings.
__mins driving to your place
Get an instant, personalised result:
- Show sellers you’re serious
- Secure viewings faster with agents
- No impact on your credit score
Your mortgage
Notes
Staying secure when looking for property
Ensure you're up to date with our latest advice on how to avoid fraud or scams when looking for property online.
Visit our security centre to find out moreDisclaimer - Property reference BLA230006. The information displayed about this property comprises a property advertisement. Rightmove.co.uk makes no warranty as to the accuracy or completeness of the advertisement or any linked or associated information, and Rightmove has no control over the content. This property advertisement does not constitute property particulars. The information is provided and maintained by Jackson-Stops, Blandford. Please contact the selling agent or developer directly to obtain any information which may be available under the terms of The Energy Performance of Buildings (Certificates and Inspections) (England and Wales) Regulations 2007 or the Home Report if in relation to a residential property in Scotland.
*This is the average speed from the provider with the fastest broadband package available at this postcode. The average speed displayed is based on the download speeds of at least 50% of customers at peak time (8pm to 10pm). Fibre/cable services at the postcode are subject to availability and may differ between properties within a postcode. Speeds can be affected by a range of technical and environmental factors. The speed at the property may be lower than that listed above. You can check the estimated speed and confirm availability to a property prior to purchasing on the broadband provider's website. Providers may increase charges. The information is provided and maintained by Decision Technologies Limited. **This is indicative only and based on a 2-person household with multiple devices and simultaneous usage. Broadband performance is affected by multiple factors including number of occupants and devices, simultaneous usage, router range etc. For more information speak to your broadband provider.
Map data ©OpenStreetMap contributors.




