
Shoreland Way, Westward Ho!, Bideford, Devon, EX39

- PROPERTY TYPE
Bungalow
- BEDROOMS
2
- BATHROOMS
2
- SIZE
Ask agent
- TENUREDescribes how you own a property. There are different types of tenure - freehold, leasehold, and commonhold.Read more about tenure in our glossary page.
Freehold
Key features
- TWO BEDROOM DETACHED BUNGALOW
- IMMACULATELEY PRESENTED THROUGHOUT
- MODERN FITTED KITCHEN AND EN-SUITE SHOWER ROOM
- ENCLOSED SOUTH FACING GARDEN
- OFF ROAD PARKING
- WALKING DISTANCE TO WESTWARD VILLAGE AND BEACHFRONT
Description
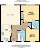
Entering from the front the main entrance opens onto the central hallway with doors leading to all further principal rooms featuring wood effect flooring throughout the living areas.
Overlooking the front of the property a modern fitted kitchen comprises multiple eye and base level units including a gas hob, electric oven with integrated dishwasher, fridge / freezer and further space for washing appliances.
Through to the rear of the home the lounge features ample space for sizeable furniture including an area for smaller table and chairs whilst featuring a central fireplace and bi-folding rear doors that open onto the garden.
Moving through the hallway towards the bedrooms which overlook the front and rear of the property respectively. The master bedroom overlooks the rear of the home and also features built in wardrobes and a modern fitted en-suite comprising WC, wash basin and large corner shower cubicle whilst the second bedroom overlooks the front. To complete the internals of the home further storage cupboards are accessed from the hallway along with the main bathroom that features a WC, wash basin and bath with shower attachment.
To the outside the enclosed rear garden features a mixture of mature trees, shrubs and bushes along with multiple areas of hardstanding and stone chippings alowing space for outside seating and taking full advantage of the south facing aspect. Side access from the rear brings you round to the front which offers off road parking for two vehicles.
From Bideford Quay proceed towards Westward Ho! continuing ahead at the Heywood Road roundabout. Turn right onto Fore Street and proceed down through Northam Square, bearing right onto Sandymere Road and proceed down. Turn left into Golf Links Road and again left into Kingsley Park, follow the road around to the left and no. 17 Shoreland way can be found on the right hand side.
Hallway
3.45m x 3.35m
Lounge
4.06m x 4.04m
Kitchen
3.35m x 2.18m
Master Bedroom
3.86m x 3.5m
En-suite
1.75m x 1.68m
Bedroom 2
3.05m x 2.92m
Bathroom
2.29m x 1.68m
Tenure
Freehold
Viewings
Strictly by appointment only
Services
All mains services connected
EPC
C
Council Tax
C
Estimated rental income
£875 - £900
Brochures
Particulars- COUNCIL TAXA payment made to your local authority in order to pay for local services like schools, libraries, and refuse collection. The amount you pay depends on the value of the property.Read more about council Tax in our glossary page.
- Band: C
- PARKINGDetails of how and where vehicles can be parked, and any associated costs.Read more about parking in our glossary page.
- Yes
- GARDENA property has access to an outdoor space, which could be private or shared.
- Yes
- ACCESSIBILITYHow a property has been adapted to meet the needs of vulnerable or disabled individuals.Read more about accessibility in our glossary page.
- Ask agent
Shoreland Way, Westward Ho!, Bideford, Devon, EX39
Add an important place to see how long it'd take to get there from our property listings.
__mins driving to your place
Get an instant, personalised result:
- Show sellers you’re serious
- Secure viewings faster with agents
- No impact on your credit score
Your mortgage
Notes
Staying secure when looking for property
Ensure you're up to date with our latest advice on how to avoid fraud or scams when looking for property online.
Visit our security centre to find out moreDisclaimer - Property reference BID240407. The information displayed about this property comprises a property advertisement. Rightmove.co.uk makes no warranty as to the accuracy or completeness of the advertisement or any linked or associated information, and Rightmove has no control over the content. This property advertisement does not constitute property particulars. The information is provided and maintained by Webbers Property Services, Bideford. Please contact the selling agent or developer directly to obtain any information which may be available under the terms of The Energy Performance of Buildings (Certificates and Inspections) (England and Wales) Regulations 2007 or the Home Report if in relation to a residential property in Scotland.
*This is the average speed from the provider with the fastest broadband package available at this postcode. The average speed displayed is based on the download speeds of at least 50% of customers at peak time (8pm to 10pm). Fibre/cable services at the postcode are subject to availability and may differ between properties within a postcode. Speeds can be affected by a range of technical and environmental factors. The speed at the property may be lower than that listed above. You can check the estimated speed and confirm availability to a property prior to purchasing on the broadband provider's website. Providers may increase charges. The information is provided and maintained by Decision Technologies Limited. **This is indicative only and based on a 2-person household with multiple devices and simultaneous usage. Broadband performance is affected by multiple factors including number of occupants and devices, simultaneous usage, router range etc. For more information speak to your broadband provider.
Map data ©OpenStreetMap contributors.





