
Loughton Lane, Theydon Bois, Epping

- PROPERTY TYPE
Detached Bungalow
- BEDROOMS
4
- BATHROOMS
4
- SIZE
2,012 sq ft
187 sq m
- TENUREDescribes how you own a property. There are different types of tenure - freehold, leasehold, and commonhold.Read more about tenure in our glossary page.
Freehold
Key features
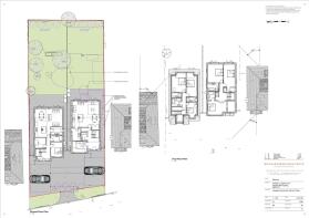
- Full planning permission secured for demolition and replacement with two new dwellings
- Opportunity to acquire the plot for a four-bedroom 2,012 sq ft detached chalet bungalow
- Shared demolition costs with existing owner
- Simultaneous construction of both units for build efficiency
- Strong resale or end-user appeal in a proven residential location
- Theydon Bois Village
- Prime Location
- Unconditional Offers Invited
Description
Our client currently owns a single dwelling on the site and has successfully secured planning consent for the demolition of the existing property and the construction of two new residential units. The opportunity being offered is to purchase the portion of the site benefiting from planning permission for one of these approved dwellings, a well-designed detached chalet bungalow.
The proposed unit has been thoughtfully planned to deliver generous, modern living accommodation across approximately 2,012 sq ft, offering a highly desirable layout suited to contemporary family living. The design balances strong kerb appeal with practical internal space, ensuring both market attractiveness and long-term value.
The development strategy presents a compelling advantage: demolition costs of the existing dwelling are to be shared with the current owner, with both approved units constructed simultaneously. This coordinated build programme offers efficiencies in procurement, contractor mobilisation, and overall project delivery, helping to optimise build costs and timescales.
Situated in the charming village of Theydon Bois, this site benefits from a picturesque setting while still offering convenient access to essential amenities.
Theydon Bois, situated on the edge of Epping Forest within the Essex borders, is approximately 20 miles northeast of Liverpool Street station. The village benefits from outstanding transport links, with Theydon Bois tube station providing direct Central Line services into London, making it ideal for commuters. The nearby M11 motorway and M25 motorway offer convenient road connections to London, Stansted Airport, and the wider motorway network. Theydon Bois features a charming high street with a selection of independent shops, cafés, and traditional pubs, while more extensive shopping and leisure facilities can be found in nearby Loughton and Epping. With highly regarded schools, beautiful surrounding countryside, and a welcoming community atmosphere, Theydon Bois remains a highly sought-after village location.
This represents a rare opportunity to secure a fully consented, ready-to-deliver residential development in the highly sought-after village of Theydon Bois. Combining cost-sharing advantages with a clear and coordinated build strategy, the scheme offers an efficient and attractive proposition. Ideally suited to developers, investors, or bespoke home builders looking to deliver a well-positioned project in a prime village setting with strong and enduring market appeal.
Brochures
Archdale Brochure- COUNCIL TAXA payment made to your local authority in order to pay for local services like schools, libraries, and refuse collection. The amount you pay depends on the value of the property.Read more about council Tax in our glossary page.
- Ask agent
- PARKINGDetails of how and where vehicles can be parked, and any associated costs.Read more about parking in our glossary page.
- Ask agent
- GARDENA property has access to an outdoor space, which could be private or shared.
- Ask agent
- ACCESSIBILITYHow a property has been adapted to meet the needs of vulnerable or disabled individuals.Read more about accessibility in our glossary page.
- Ask agent
Loughton Lane, Theydon Bois, Epping
Add an important place to see how long it'd take to get there from our property listings.
__mins driving to your place
Get an instant, personalised result:
- Show sellers you’re serious
- Secure viewings faster with agents
- No impact on your credit score
About Butler & Stag, Land & New Homes, London & Home Counties
Unit 6, Buckingham Court, Rectory Lane, Loughton, IG10 2QZ


Your mortgage
Notes
Staying secure when looking for property
Ensure you're up to date with our latest advice on how to avoid fraud or scams when looking for property online.
Visit our security centre to find out moreDisclaimer - Property reference 34507379. The information displayed about this property comprises a property advertisement. Rightmove.co.uk makes no warranty as to the accuracy or completeness of the advertisement or any linked or associated information, and Rightmove has no control over the content. This property advertisement does not constitute property particulars. The information is provided and maintained by Butler & Stag, Land & New Homes, London & Home Counties. Please contact the selling agent or developer directly to obtain any information which may be available under the terms of The Energy Performance of Buildings (Certificates and Inspections) (England and Wales) Regulations 2007 or the Home Report if in relation to a residential property in Scotland.
*This is the average speed from the provider with the fastest broadband package available at this postcode. The average speed displayed is based on the download speeds of at least 50% of customers at peak time (8pm to 10pm). Fibre/cable services at the postcode are subject to availability and may differ between properties within a postcode. Speeds can be affected by a range of technical and environmental factors. The speed at the property may be lower than that listed above. You can check the estimated speed and confirm availability to a property prior to purchasing on the broadband provider's website. Providers may increase charges. The information is provided and maintained by Decision Technologies Limited. **This is indicative only and based on a 2-person household with multiple devices and simultaneous usage. Broadband performance is affected by multiple factors including number of occupants and devices, simultaneous usage, router range etc. For more information speak to your broadband provider.
Map data ©OpenStreetMap contributors.






