
Quebec Road, Norwich

- PROPERTY TYPE
Terraced
- BEDROOMS
2
- BATHROOMS
2
- SIZE
Ask agent
- TENUREDescribes how you own a property. There are different types of tenure - freehold, leasehold, and commonhold.Read more about tenure in our glossary page.
Freehold
Key features
- MID TERRACE HOUSE
- EXTENDED
- TWO BEDROOMS
- LOFT ROOM
- THORPE HAMLET
Description
Location - Thorpe Hamlet, lies just to the east of Norwich City centre within walking distance to the railway station and Riverside development (offering restaurants, bars, cinema and gym). There is great access into the City centre itself, riverside walks, Mousehold Heath and A47 Southern Bypass.
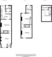
Accommodation Comprises - Front door to:
Entrance Porch - Door to:
Lounge - 4.75 x 3.56 (15'7" x 11'8") - Double glazed window, two radiators, cast iron fireplace.
Dining Room - 3.62 x 3.55 (11'10" x 11'7") - Radiator, storage cupboard.
Kitchen - 4.34 x 3.41 x 1.24 (14'2" x 11'2" x 4'0") - Fitted wall and base units with worktops over, sink and drainer, fitted hob and oven, space for fridge, freezer and washing machine, radiator, door to rear, skylight.
Shower Room - 2.53 x 1.93 (8'3" x 6'3") - Shower cubicle, low level WC, hand wash basin, radiator, frosted double glazed window, storage cupboard.
First Floor Landing - Doors to two bedrooms.
Bedroom One - 3.55 x 3.44 (11'7" x 11'3") - Double glazed window, radiator, cast iron fireplace, storage cupboard.
Bedroom Two - 3.62 x 3.54 (11'10" x 11'7") - Double glazed window, radiator, stairs to loft room.
Bathroom - 2.67 x 1.90 (8'9" x 6'2") - Panelled bath, low level WC, hand wash basin, radiator, frosted double glazed window, cupboard housing boiler.
Loft Room - 3.74 x 3.21 (12'3" x 10'6") - Velux window, radiator.
Outside Front - Small low maintenance garden enclosed by walling with path to front door.
Outside Rear - Non-bisected garden enclosed by timber fencing.
Local Authority - Norwich City Council, Tax Band A.
Tenure - Freehold
Utilities - Fibre to the property.
Mains gas, water and electric.
Disclaimer - To comply with Anti-Money Laundering (AML) regulations, successful buyers must complete the required AML checks and provide proof of funds. A non-refundable fee of £60 including VAT is payable per purchaser, per transaction, including any individuals contributing or gifting funds towards the purchase. Fees are payable for up to a maximum of two purchasers, for the transaction, any additional parties checks will be covered by these fees.
This fee must be paid directly to Gilson Bailey & Partners Ltd. All required checks must be completed before a memorandum of sale can be issued.
Brochures
Quebec Road, Norwich- COUNCIL TAXA payment made to your local authority in order to pay for local services like schools, libraries, and refuse collection. The amount you pay depends on the value of the property.Read more about council Tax in our glossary page.
- Band: A
- PARKINGDetails of how and where vehicles can be parked, and any associated costs.Read more about parking in our glossary page.
- Ask agent
- GARDENA property has access to an outdoor space, which could be private or shared.
- Yes
- ACCESSIBILITYHow a property has been adapted to meet the needs of vulnerable or disabled individuals.Read more about accessibility in our glossary page.
- Ask agent
Quebec Road, Norwich
Add an important place to see how long it'd take to get there from our property listings.
__mins driving to your place
Get an instant, personalised result:
- Show sellers you’re serious
- Secure viewings faster with agents
- No impact on your credit score
Affordability
Notes
Staying secure when looking for property
Ensure you're up to date with our latest advice on how to avoid fraud or scams when looking for property online.
Visit our security centre to find out moreDisclaimer - Property reference 34507413. The information displayed about this property comprises a property advertisement. Rightmove.co.uk makes no warranty as to the accuracy or completeness of the advertisement or any linked or associated information, and Rightmove has no control over the content. This property advertisement does not constitute property particulars. The information is provided and maintained by Gilson Bailey, Norwich. Please contact the selling agent or developer directly to obtain any information which may be available under the terms of The Energy Performance of Buildings (Certificates and Inspections) (England and Wales) Regulations 2007 or the Home Report if in relation to a residential property in Scotland.
*This is the average speed from the provider with the fastest broadband package available at this postcode. The average speed displayed is based on the download speeds of at least 50% of customers at peak time (8pm to 10pm). Fibre/cable services at the postcode are subject to availability and may differ between properties within a postcode. Speeds can be affected by a range of technical and environmental factors. The speed at the property may be lower than that listed above. You can check the estimated speed and confirm availability to a property prior to purchasing on the broadband provider's website. Providers may increase charges. The information is provided and maintained by Decision Technologies Limited. **This is indicative only and based on a 2-person household with multiple devices and simultaneous usage. Broadband performance is affected by multiple factors including number of occupants and devices, simultaneous usage, router range etc. For more information speak to your broadband provider.
Map data ©OpenStreetMap contributors.







