
Bradfield Road, Crewe

- PROPERTY TYPE
Semi-Detached
- BEDROOMS
3
- BATHROOMS
1
- SIZE
Ask agent
- TENUREDescribes how you own a property. There are different types of tenure - freehold, leasehold, and commonhold.Read more about tenure in our glossary page.
Freehold
Key features
- No Chain
- Tenant in situ
- Close to transport links
- Off road Parking
- Desirable Location
- Large Garden
Description
Inside, the ground floor is defined by a bright and airy atmosphere. The two well-proportioned living areas are seamlessly connected by a wide opening, creating a versatile, open-plan feel that is perfect for entertaining while maintaining distinct spaces for lounging and dining. The front lounge features a large bay window that floods the room with natural light, while the dining area offers a cosy focal point with its inset fireplace.
The galley-style kitchen is conveniently located off the dining room, boasting ample cabinetry for storage and direct access to the rear garden.
Moving upstairs, the home continues to impress with three ample-sized bedrooms. Each room offers a comfortable footprint for wardrobes and storage, ensuring every family member has their own retreat. These are served by a shared family bathroom.
The rear garden is a highlight for families, offering a generous balance of a paved patio area and a well-maintained lawn.
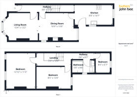
Living Room
10'4" x 13'2" (3.15m x 4.01m)
Dining Room
10'9" x 13'0" (3.28m x 3.96m)
Kitchen
8'0" x 14'7" (2.44m x 4.45m)
Bedroom 1
13'10" x 11'3" (4.22m x 3.43m)
Bedroom 2
8'5" x 13'0" (2.57m x 3.96m)
Bedroom 3
8'0" x 5'7" (2.44m x 1.7m)
Bathroom
5'0" x 8'6" (1.52m x 2.59m)
Disclaimer
Butters John Bee Estate Agents also offer a professional, ARLA accredited Lettings and Management Service. If you are considering purchasing your property in order to rent, are looking at buy to let or would like a free review of your current portfolio then please call the Lettings Branch Manager on the number shown above.
Butters John Bee Estate Agents is the seller's agent for this property. Your conveyancer is legally responsible for ensuring any purchase agreement fully protects your position. We make detailed enquiries of the seller to ensure the information provided is as accurate as possible. Please inform us if you become aware of any information being inaccurate.
Brochures
Material InformationBrochure- COUNCIL TAXA payment made to your local authority in order to pay for local services like schools, libraries, and refuse collection. The amount you pay depends on the value of the property.Read more about council Tax in our glossary page.
- Ask agent
- PARKINGDetails of how and where vehicles can be parked, and any associated costs.Read more about parking in our glossary page.
- Yes
- GARDENA property has access to an outdoor space, which could be private or shared.
- Yes
- ACCESSIBILITYHow a property has been adapted to meet the needs of vulnerable or disabled individuals.Read more about accessibility in our glossary page.
- Ask agent
Bradfield Road, Crewe
Add an important place to see how long it'd take to get there from our property listings.
__mins driving to your place
Get an instant, personalised result:
- Show sellers you’re serious
- Secure viewings faster with agents
- No impact on your credit score



Affordability
Notes
Staying secure when looking for property
Ensure you're up to date with our latest advice on how to avoid fraud or scams when looking for property online.
Visit our security centre to find out moreDisclaimer - Property reference 0904_BJB090409783. The information displayed about this property comprises a property advertisement. Rightmove.co.uk makes no warranty as to the accuracy or completeness of the advertisement or any linked or associated information, and Rightmove has no control over the content. This property advertisement does not constitute property particulars. The information is provided and maintained by Butters John Bee, Crewe. Please contact the selling agent or developer directly to obtain any information which may be available under the terms of The Energy Performance of Buildings (Certificates and Inspections) (England and Wales) Regulations 2007 or the Home Report if in relation to a residential property in Scotland.
*This is the average speed from the provider with the fastest broadband package available at this postcode. The average speed displayed is based on the download speeds of at least 50% of customers at peak time (8pm to 10pm). Fibre/cable services at the postcode are subject to availability and may differ between properties within a postcode. Speeds can be affected by a range of technical and environmental factors. The speed at the property may be lower than that listed above. You can check the estimated speed and confirm availability to a property prior to purchasing on the broadband provider's website. Providers may increase charges. The information is provided and maintained by Decision Technologies Limited. **This is indicative only and based on a 2-person household with multiple devices and simultaneous usage. Broadband performance is affected by multiple factors including number of occupants and devices, simultaneous usage, router range etc. For more information speak to your broadband provider.
Map data ©OpenStreetMap contributors.






