Culford Gardens, Chelsea, London

Letting details
- Let available date:
- 01/04/2026
- Deposit:
- £7,500A deposit provides security for a landlord against damage, or unpaid rent by a tenant.Read more about deposit in our glossary page.
- Min. Tenancy:
- Ask agent How long the landlord offers to let the property for.Read more about tenancy length in our glossary page.
- Let type:
- Long term
- Furnish type:
- Furnished
- Council Tax:
- Ask agent
- PROPERTY TYPE
Apartment
- BEDROOMS
1
- BATHROOMS
1
- SIZE
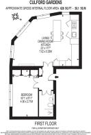
626 sq ft
58 sq m
Key features
- A rare and stunning One Bedroom apartment
- Interior Designed
- Very high specification finish throughout
- Molteni & C Kitchen
- Marble Gessi Shower Suite
- Meticulously refurbished and brand new
- 1st Floor boasting 2.75m high ceilings
- Excellent living and entertaining space
- Exceptional location moments from amenities and transport links
- Parking - Residents (Kensington & Chelsea) Parking Permit
Description
The open-plan reception is perfect for both relaxing & entertaining, and contemporary furnishings complement the magnificent Moltini & C kitchen, engineered by Dada, & meticulously crafted & perfected with Gaggenau appliances, which include a 32-bottle wine cooler. The stunning Calacutta Borgehini marble used for the kitchen is cut from the finest Italian slabs that have been hand chosen & imported specifically for the project. The luxurious bathroom has been entirely cladded in opulent Namibian White Marble with contrasting black metal PVD coated Gessi hardware, & features a double walk-in wet room, & heated wall, perfect for gently warming your towels. The sumptuous bedroom has a spacious floor to ceiling bespoke Moltini & C wardrobe, and Storage space has been carefully considered, with both bedroom & reception room having handmade cuboards made by Italian artisans & complemented with soft Italian leather seating.
This exceptional residence is bathed in natural light offering a wonderful layout with elegant interior, & high-quality finishes. The flooring is elegant Scandinavian engineered oak & balances the apartments colours and tone. Located close to the boutiques of Sloane Street & amenities of Kings Road. This beautiful apartment offers the perfect blend of style & comfort, & is now ready for immediate occupation.
Living/Dining/Kitchen - 7.02 x 5.35 (23'0" x 17'6" ) -
Bedroom - 4.90 x 2.71 (16'0" x 8'10") -
Bathroom -
Brochures
Culford Gardens, Chelsea, LondonBrochure- COUNCIL TAXA payment made to your local authority in order to pay for local services like schools, libraries, and refuse collection. The amount you pay depends on the value of the property.Read more about council Tax in our glossary page.
- Band: G
- PARKINGDetails of how and where vehicles can be parked, and any associated costs.Read more about parking in our glossary page.
- Yes
- GARDENA property has access to an outdoor space, which could be private or shared.
- Ask agent
- ACCESSIBILITYHow a property has been adapted to meet the needs of vulnerable or disabled individuals.Read more about accessibility in our glossary page.
- Ask agent
Culford Gardens, Chelsea, London
Add an important place to see how long it'd take to get there from our property listings.
__mins driving to your place
Notes
Staying secure when looking for property
Ensure you're up to date with our latest advice on how to avoid fraud or scams when looking for property online.
Visit our security centre to find out moreDisclaimer - Property reference 34507998. The information displayed about this property comprises a property advertisement. Rightmove.co.uk makes no warranty as to the accuracy or completeness of the advertisement or any linked or associated information, and Rightmove has no control over the content. This property advertisement does not constitute property particulars. The information is provided and maintained by Mariana Real Estate, London. Please contact the selling agent or developer directly to obtain any information which may be available under the terms of The Energy Performance of Buildings (Certificates and Inspections) (England and Wales) Regulations 2007 or the Home Report if in relation to a residential property in Scotland.
*This is the average speed from the provider with the fastest broadband package available at this postcode. The average speed displayed is based on the download speeds of at least 50% of customers at peak time (8pm to 10pm). Fibre/cable services at the postcode are subject to availability and may differ between properties within a postcode. Speeds can be affected by a range of technical and environmental factors. The speed at the property may be lower than that listed above. You can check the estimated speed and confirm availability to a property prior to purchasing on the broadband provider's website. Providers may increase charges. The information is provided and maintained by Decision Technologies Limited. **This is indicative only and based on a 2-person household with multiple devices and simultaneous usage. Broadband performance is affected by multiple factors including number of occupants and devices, simultaneous usage, router range etc. For more information speak to your broadband provider.
Map data ©OpenStreetMap contributors.




