South Side, Hutton Rudby

- PROPERTY TYPE
Detached
- BEDROOMS
4
- BATHROOMS
2
- SIZE
Ask agent
- TENUREDescribes how you own a property. There are different types of tenure - freehold, leasehold, and commonhold.Read more about tenure in our glossary page.
Freehold
Key features
- A characterful family home.
- 2,896 sq ft
- Driveway, hardstanding and garage.
- Beautiful rear garden.
- No onward chain.
- Four bedrooms.
Description
Introduction
A characterful and much-loved four bedroom detached family home, offered with no onward chain, presenting an exciting opportunity to make your own mark and create the perfect forever home. Nestled in the heart of the village, this charming property combines generous living space with warmth, personality and huge potential. With a garage, gated driveway and beautiful mature gardens, it offers everything a growing family could wish for.
Location
Hutton Rudby, a picturesque village nestled in the Hambleton District of North Yorkshire, is a delightful place situated just 4 miles (6.4 km) west of the bustling market town of Stokesley. Conveniently located close to the A19, this charming village offers residents and visitors easy access to nearby towns such as Middlesbrough, Yarm, and Northallerton.
One of Hutton Rudby's defining features is its connection to the village of Rudby, which is made possible by a bridge spanning the scenic River Leven. This bridge not only provides a physical link between the two villages but also adds to the area's charm and beauty.
The village of Hutton Rudby is notable for its abundance of village greens, a testament to its agricultural heritage with numerous livestock farmers in the area. This pastoral backdrop adds to the village's picturesque appeal.
Hutton Rudby offers a wide range of amenities, making it a self-sufficient and thriving community. These include a doctors' surgery for healthcare needs, two welcoming pubs for socializing, two hairdressers and a beauty salon, a cricket club, tennis club, and bowls club for sports enthusiasts, a village hall for community events, a primary school for local children, a car mechanic for automotive services, a Methodist Church Community Hub for religious and community gatherings, and a Spar shop with a fuel station for everyday necessities. This combination of modern conveniences and a beautiful rural setting makes Hutton Rudby a sought-after destination for those seeking a comfortable and well-rounded village lifestyle in North Yorkshire.
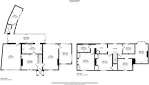
Ground Floor
The property is entered via a welcoming porch, opening into an entrance hall that sets the tone for the home’s inviting feel.
The living room provides a comfortable and relaxing space, with a delightful sitting room leading off it — ideal as a snug, reading room or playroom.
A separate dining room offers the perfect setting for family meals and entertaining, flowing through to the kitchen, which in turn links seamlessly to a large conservatory. The conservatory enjoys lovely views over the garden and creates a wonderful additional reception space filled with natural light.
Leading off the conservatory is a WC and a further versatile room, perfectly suited as a home office, hobby room or ground floor playroom.
First Floor
Upstairs, the property boasts four well-proportioned bedrooms, offering flexible accommodation for family living or guest space.
There are also two modern bathrooms, providing convenience and comfort for busy households.
Externally
The property enjoys excellent outside space. To the left, there is a good-sized garage, ideal for storage or workshop use. To the right, gates open onto a driveway and hardstanding area, providing ample off-road parking.
The gorgeous mature garden is a true highlight — mainly laid to lawn with established, well-stocked borders, creating a private and peaceful setting perfect for relaxing or entertaining outdoors.
General information
Local authority: North Yorkshire
Council tax band; F
Tenure: Freehold
Disclaimer
Harvey Brooks Properties Ltd (the Company). The Company for itself and for the vendor(s) or lessor(s) of this property for whom it acts as Agents gives notice that: (i) The particulars are a general outline only for the guidance of intending purchasers or lessees and do not constitute an offer or contract (ii) All descriptions are given in good faith and are believed to be correct, but any prospective purchasers or lessees should not rely on them as statements of fact and must satisfy themselves by inspection or otherwise as to their correctness (iii) All measurements of rooms contained within these particulars should be taken as approximate and it is the responsibility of the prospective purchaser or lessee or his professional advisor to determine the exact measurements and details as required prior to Contract (iv) None of the property's services or service installations have been tested and are not warranted to be in working order (v) No employee of the Company has any authority to make or give any representation or warranty whatsoever in relation to the property.
- COUNCIL TAXA payment made to your local authority in order to pay for local services like schools, libraries, and refuse collection. The amount you pay depends on the value of the property.Read more about council Tax in our glossary page.
- Band: F
- PARKINGDetails of how and where vehicles can be parked, and any associated costs.Read more about parking in our glossary page.
- Garage
- GARDENA property has access to an outdoor space, which could be private or shared.
- Private garden
- ACCESSIBILITYHow a property has been adapted to meet the needs of vulnerable or disabled individuals.Read more about accessibility in our glossary page.
- Ask agent
South Side, Hutton Rudby
Add an important place to see how long it'd take to get there from our property listings.
__mins driving to your place
Get an instant, personalised result:
- Show sellers you’re serious
- Secure viewings faster with agents
- No impact on your credit score
Your mortgage
Notes
Staying secure when looking for property
Ensure you're up to date with our latest advice on how to avoid fraud or scams when looking for property online.
Visit our security centre to find out moreDisclaimer - Property reference S1641478. The information displayed about this property comprises a property advertisement. Rightmove.co.uk makes no warranty as to the accuracy or completeness of the advertisement or any linked or associated information, and Rightmove has no control over the content. This property advertisement does not constitute property particulars. The information is provided and maintained by Harvey Brooks, Stokesley. Please contact the selling agent or developer directly to obtain any information which may be available under the terms of The Energy Performance of Buildings (Certificates and Inspections) (England and Wales) Regulations 2007 or the Home Report if in relation to a residential property in Scotland.
*This is the average speed from the provider with the fastest broadband package available at this postcode. The average speed displayed is based on the download speeds of at least 50% of customers at peak time (8pm to 10pm). Fibre/cable services at the postcode are subject to availability and may differ between properties within a postcode. Speeds can be affected by a range of technical and environmental factors. The speed at the property may be lower than that listed above. You can check the estimated speed and confirm availability to a property prior to purchasing on the broadband provider's website. Providers may increase charges. The information is provided and maintained by Decision Technologies Limited. **This is indicative only and based on a 2-person household with multiple devices and simultaneous usage. Broadband performance is affected by multiple factors including number of occupants and devices, simultaneous usage, router range etc. For more information speak to your broadband provider.
Map data ©OpenStreetMap contributors.




