Land at Comberton Hill Kidderminster, Land at Comberton Hill, Kidderminster
- SIZE AVAILABLE
8,611 sq ft
800 sq m
- SECTOR
Land for sale
Key features
- Suitable for Developers and Investors
- Currently Used as Advertising (Let on Licenses)
- Full Planning Consent for 6 x Flats and Commercial Unit
- Located in Birmingham Commuter-Belt
- Freehold Development Site
- 0.08 acres (0.03 hectares)
- Established and Popular Location
Description
The land is broadly rectangular in shape and benefits from a prominent frontage to Comberton Hill, an established mixed-use street in Central Kidderminster. The land currently includes three advertising hoardings which are let on licenses producing a total £2,625 per annum and terminable with 6 months notice.
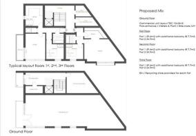
The proposed development comprises 6 x one bedroom flats and a ground floor Class E commercial unit with associated bin and bicycle stores. Proposed areas of all units are available in the below accommodation schedule.
Comberton Hill is a principal arterial route and the surrounding area is characterised by a number of mixed-use retail/residential schemes. There is a Tesco Supermarket immediately adjacent to the property.
The property is superbly well located for the amenities of Kidderminster and sits approx. 0.1 miles from Kidderminster Rail Station, the completed development will therefore be ideal for professionals commuting to Birmingham and other major centres.
Kidderminster Rail Station - 0.1 miles
Brochures
Land at Comberton Hill Kidderminster, Land at Comberton Hill, Kidderminster
NEAREST STATIONS
Distances are straight line measurements from the centre of the postcode- Kidderminster Station0.1 miles
- Blakedown Station3.1 miles
- Hartlebury Station3.6 miles
Notes
Disclaimer - Property reference 30B73AA9-E77A-4CEE-8980-F8C20E237961. The information displayed about this property comprises a property advertisement. Rightmove.co.uk makes no warranty as to the accuracy or completeness of the advertisement or any linked or associated information, and Rightmove has no control over the content. This property advertisement does not constitute property particulars. The information is provided and maintained by Savills, Savills Auctions- Commercial. Please contact the selling agent or developer directly to obtain any information which may be available under the terms of The Energy Performance of Buildings (Certificates and Inspections) (England and Wales) Regulations 2007 or the Home Report if in relation to a residential property in Scotland.
Map data ©OpenStreetMap contributors.





