
The Glebe, London, SE3

- PROPERTY TYPE
Semi-Detached
- BEDROOMS
5
- BATHROOMS
4
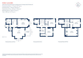
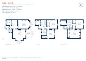
- SIZE
2,987 sq ft
278 sq m
- TENUREDescribes how you own a property. There are different types of tenure - freehold, leasehold, and commonhold.Read more about tenure in our glossary page.
Freehold
Key features
- Chain Free
- Five Bedrooms
- Period Features
- Contemporary Kitchen
- Utility Room
- Conservatory
- Substantial Plot
- Potential To Build Detached Home Within Grounds (STPP)
Description
A charming five-bedroom semi-detached period home set on a substantial plot just moments from Blackheath Village. This impressive family residence has the potential to build a detached residence within the grounds (STPP).
Set back within expansive grounds, the large frontage provides ample parking for multiple vehicles, with historic planning consent to build a detached home within the grounds. Inside, the hall floor is exceptionally grand, showcasing expansive reception rooms, high ceilings with intricate cornicing, large sash windows with wooden shutters, with a conservatory providing additional living space.
The principal reception room spans over 22ft and features two sets of French doors, one leading out to the garden with the other providing access to the conservatory. Adjacent, the impressive 21ft kitchen/diner also opens directly onto the garden and is fitted with Farmhouse style kitchen units, stone worktops, a Quooker tap, wine coolers and a range cooker. A convenient utility room provides a practical hub to the home, while a guest WC completes this level.
A striking staircase rises to the first floor, where three bedrooms (two en-suite) and a family bathroom are located. The principal suite benefits from a dual aspect and a contemporary en-suite bathroom. The top floor provides two further spacious bedrooms, an additional contemporary bathroom, and extensive storage.
Situation
Situated on the highly sought-after Glebe, the home is just a short stroll from the heart of Blackheath Village. Residents enjoy an array of independent cafés, restaurants, boutiques, and everyday amenities, alongside the expansive green open spaces of the Heath and nearby Greenwich Park.
Blackheath Station is within easy reach, offering regular services into Central London, while the DLR connection at Lewisham provides further excellent transport links - making this an ideal setting for families and commuters seeking village charm with outstanding connectivity.
The area also offers an excellent selection of highly regarded state and independent schools.
Property Ref Number:
HAM-61151Brochures
Brochure- COUNCIL TAXA payment made to your local authority in order to pay for local services like schools, libraries, and refuse collection. The amount you pay depends on the value of the property.Read more about council Tax in our glossary page.
- Band: G
- PARKINGDetails of how and where vehicles can be parked, and any associated costs.Read more about parking in our glossary page.
- On street
- GARDENA property has access to an outdoor space, which could be private or shared.
- Private garden
- ACCESSIBILITYHow a property has been adapted to meet the needs of vulnerable or disabled individuals.Read more about accessibility in our glossary page.
- Ask agent
The Glebe, London, SE3
Add an important place to see how long it'd take to get there from our property listings.
__mins driving to your place
Get an instant, personalised result:
- Show sellers you’re serious
- Secure viewings faster with agents
- No impact on your credit score
Your mortgage
Notes
Staying secure when looking for property
Ensure you're up to date with our latest advice on how to avoid fraud or scams when looking for property online.
Visit our security centre to find out moreDisclaimer - Property reference a1nQ500000S8pq1IAB. The information displayed about this property comprises a property advertisement. Rightmove.co.uk makes no warranty as to the accuracy or completeness of the advertisement or any linked or associated information, and Rightmove has no control over the content. This property advertisement does not constitute property particulars. The information is provided and maintained by Hamptons, Blackheath. Please contact the selling agent or developer directly to obtain any information which may be available under the terms of The Energy Performance of Buildings (Certificates and Inspections) (England and Wales) Regulations 2007 or the Home Report if in relation to a residential property in Scotland.
*This is the average speed from the provider with the fastest broadband package available at this postcode. The average speed displayed is based on the download speeds of at least 50% of customers at peak time (8pm to 10pm). Fibre/cable services at the postcode are subject to availability and may differ between properties within a postcode. Speeds can be affected by a range of technical and environmental factors. The speed at the property may be lower than that listed above. You can check the estimated speed and confirm availability to a property prior to purchasing on the broadband provider's website. Providers may increase charges. The information is provided and maintained by Decision Technologies Limited. **This is indicative only and based on a 2-person household with multiple devices and simultaneous usage. Broadband performance is affected by multiple factors including number of occupants and devices, simultaneous usage, router range etc. For more information speak to your broadband provider.
Map data ©OpenStreetMap contributors.







