
Emesgate Lane Plot, Silverdale, LA5 0RF
- PROPERTY TYPE
Plot
- BEDROOMS
3
- SIZE
Ask agent
Key features
- An exciting and rare opportunity to build your own contemporary home
- Planning consent granted by Lancaster City Council, reference number 25/01255/FUL
- Proposed plans show for entrance hall, cloakroom, utility room, open plan dining kitchen and living room to ground floor
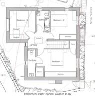
- To the first floor, three double bedrooms, one being en suite, and a house bathroom
- A gross internal area of c.114 sqm (1,227 sq ft)
- Space to create landscaped gardens
- Off road parking for approximately two vehicles
- In the heart of Silverdale, the much sought after coastal village
- An extremely accessible and convenient location for both National Parks of the Lakes and Yorkshire Dales
- Viewings are strictly by appointment only with the selling agents
Description
Planning consent was granted by Lancaster City Council, reference number 25/01255/FUL, dated 3 February 2026 for 'Erection of a dwelling with associated access'.
Proposed plans show for:
Ground floor - entrance hall, cloakroom, utility room, open plan dining kitchen and living room.
First floor - three double bedrooms, one being en suite and a house bathroom c.114 sqm (1,227 sq ft).
Outside space for off road parking for approximately two vehicles, seating terrace and lawn garden.
Energy efficient - the planning consent seeks to secure an energy efficient property including the installation of an air source heat pump, solar panels and an electric charging point.
Services - mains electricity, water, drainage and gas are in the local vicinity. It will be the responsibility of the new owner to also install their own sewage treatment plant. Interested parties are advised to make their own enquiries in this regard.
Viewings are strictly by appointment only with the selling agents.
A desirable village - Silverdale is a popular village for families with a primary school, churches, range of local shops and eateries including a family butcher, a chemist, post office, doctors' surgery, golf course, a village institute with laying field and Leighton Moss RSPB Nature Reserve - all in a coastal position within the Arnside and Silverdale National Landscape (formerly AONB). Along with neighbouring Arnside, the Silverdale was voted in the Top 10 places to live in the northwest by The Sunday Times in recent years.
Nearby towns and cities - Carnforth (5 miles) Lancaster (12.3 miles) and Kendal (13.2 miles).
Fond of fresh air? Arnside and Silverdale National Landscape is stunning in its own right but is also extremely convenient for both the Lakes and Dales National Parks as well as The Lune Valley. The area is perfect for walking - it is claimed that there can be a different walk for each day of the year in Silverdale either through the fields or trees on the limestone escarpments or alongside the coast. In addition, The Lancashire Coastal Way footpath goes from Silverdale to Freckleton, and the Cumbria Coastal Way from Silverdale to Gretna.
Highly accessible location - on the outskirts, Silverdale railway station offers direct commutable services to Lancaster, Preston, Manchester and connections to Manchester Airport and London making daily or weekly returns possible. To the north, the station serves the scenic coast route to Grange over Sands, Barrow and Carlisle. Road connections are good with Junction 35 of the M6 approximately 6 miles distant, making commuting by road very practical.
Brochures
BrochureEmesgate Lane Plot, Silverdale, LA5 0RF
NEAREST STATIONS
Distances are straight line measurements from the centre of the postcode- Silverdale Station0.8 miles
- Arnside Station2.1 miles
- Carnforth Station3.6 miles
About Davis & Bowring, Kirkby Lonsdale
Lane House, Kendal Road, Kirkby Lonsdale, Via Carnforth, LA6 2HH



Notes
Disclaimer - Property reference DB2543. The information displayed about this property comprises a property advertisement. Rightmove.co.uk makes no warranty as to the accuracy or completeness of the advertisement or any linked or associated information, and Rightmove has no control over the content. This property advertisement does not constitute property particulars. The information is provided and maintained by Davis & Bowring, Kirkby Lonsdale. Please contact the selling agent or developer directly to obtain any information which may be available under the terms of The Energy Performance of Buildings (Certificates and Inspections) (England and Wales) Regulations 2007 or the Home Report if in relation to a residential property in Scotland.
Map data ©OpenStreetMap contributors.






