
Fillies Avenue, Bessacarr, Doncaster

- PROPERTY TYPE
Detached
- BEDROOMS
5
- BATHROOMS
2
- SIZE
Ask agent
- TENUREDescribes how you own a property. There are different types of tenure - freehold, leasehold, and commonhold.Read more about tenure in our glossary page.
Freehold
Description
An attractive and stylish 5 bedroom detached house, well positioned on the fringe of the development with a pretty outlook to the front. Approx. 5 years old, the property has the remainder of its NHBC warranty, gas central heating, pvc double glazing and briefly comprises: Long entrance hall, ground floor wc, plus a separate boot room with a shower, spacious front facing lounge plus a lovely modern contemporary styled open plan living/ dining/ kitchen with 2 sets of double doors onto a Southerly facing rear garden, the kitchen includes integrated appliances and there’s a separate utility room. On the first floor there are 5 bedrooms, the main bedroom has a full 4 piece en-suite bathroom, plus a house bathroom. Attractive fringe of the development position, parking for 2, EV charger and a storage garage. South West facing rear garden. Well placed with access to the motorway networks, amenities including lakeside retail and leisure and the City Centre. Motivated seller, therefore early viewing essential.
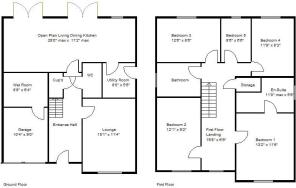
Accommodation - A double glazed entrance door leads into the properties entrance hall.
Entrance Hall - 5.11m x 2.01m (16'9" x 6'7") - This has a staircase leading to the first floor accommodation with a deep built-in understairs cupboard which opens into a boot room. There is a tiled floor covering, a central heating radiator, central ceiling light and a door leading into ground floor wc.
Ground Floor Wc - 1.68m x 0.97m (5'6" x 3'2") - This is fitted with a modern two piece white suite comprising of a low flush wc, wash hand basin, central heating radiator, tiled flooring, extractor fan and a ceiling light.
Lounge - 4.60m x 3.45m (15'1" x 11'4") - This is an attractive front facing reception room, it has a broad pvc double glazed window to the front, a double panel central heating radiator and a ceiling light.
Large Open Plan Living/Dining Kitchen - 8.53m max x 3.40m (28'0" max x 11'2") - The kitchen area is fitted with a range of modern high and low level units finished with a light grey cabinet door and a contrasting work surface. There is a four ring gas hob with a stainless steel splashback, extractor hood and an integrated double oven. There is also an integrated dishwasher, a single drainer stainless steel sink unit with mixer tap, tiled floor covering, plumbing and space for an american style fridge freezer. The kitchen opens up directly into the dining and living areas where there are two sets of pvc double glazed double opening doors which give an outlook and access into the property’s rear garden and allows the room a good amount of natural light. There is tiled flooring throughout, 2 central heating radiators, 2 ceiling pendant light plus spotlighting within the kitchen area. A door from the kitchen gives access into the utility room.
Utility Room - 2.44m x 1.68m (8'0" x 5'6") - This has a range of matching cabinets, a single drainer stainless steel sink unit, plumbing for an automatic washing machine, room for tumble dryers etc. There is tiled flooring, exterior door, extractor fan and a ceiling light.
First Floor Galleried Style Landing - 5.99m x 2.06m (19'8" x 6'9") - This has an access point into the loft space, two pendant ceiling lights, a pvc double glazed window which gives a more pleasant outlook to the front and doors to the bedrooms and bathroom.
Bedroom 1 - 4.01m x 3.51m (13'2" x 11'6") - This is a large double bedroom, it has a pvc double glazed window to the front, a central heating radiator, a built-in double wardrobe and a central ceiling light.
Ensuite Bathroom - This is fitted with a four piece suite that comprises of a panelled bath, a pedestal wash hand basin, low flush wc and a separate shower enclosure. There is a mains plumbed thermostatic shower, inset spotlighting to the ceiling, tiled flooring and an extractor fan.
Bedroom 2 - 3.68m x 2.79m (12'1" x 9'2") - Again, a front facing double bedroom, it has a pvc double glazed window to the front, central heating radiator, coving and a central ceiling light.
Bedroom 3 - 3.81m x 2.59m (12'6" x 8'6") - This has a pvc double glazed window to the rear, central heating radiator and a central ceiling light.
Bedroom 4 - 3.58m x 2.51m (11'9" x 8'3") - This has a pvc double glazed window to the rear, central heating radiator, coving and a central ceiling light.
Bedroom 5 - 2.59m x 1.98m (8'6" x 6'6") - This room is presently being used as a home office, it has a pvc double glazed window to the rear, central heating radiator and a central ceiling light.
House Bathroom - 2.79 x 2.15 (9'1" x 7'0") - The bathroom is fitted with a modern four piece white suite that comprises of a panelled bath with tiling to the splashbacks, a pedestal wash hand basin, low flush wc and a separate shower enclosure which has a mains plumbed thermostatic shower, inset spotlighting to the ceiling, extractor fan, pvc double glazed window, a contemporary style tall radiator and towel rail, again finished with a tiled floor covering.
Outside - To the front of the property, there is a double width driveway which provides car standing for two vehicles side by side, with an adjacent EV charge point (7.2 KWh). An attractive open plan front garden with decorative planters inset. It should be noted the front enjoys a more pleasant outlook with little wooded copse to the front.
Rear Garden - The rear garden enjoys a Southerly aspect which is all enclosed with timber fencing to the perimeters. There is a landscaped patio and sitting area which extends across the rear elevation with raised planters onto a good sized lawn. There is external water, power and light.
Agents Notes: - TENURE - FREEHOLD
SERVICES - All mains services are connected.
DOUBLE GLAZING - PVC double glazing as per new installation.
HEATING - Gas radiator central heating. Age of boiler as per newly constructed.
COUNCIL TAX - Band E.
BROADBAND - Ultrafast broadband is available with download speeds of up to 2000 mbps and upload speeds of up to 2000 mbps.
MOBILE COVERAGE - Coverage is available with EE, Three, 02 and Vodafone.
VIEWING - By prior telephone appointment with horton knights estate agents.
MEASUREMENTS - Please note all measurements are approximate and for guidance purposes only, with a six inch tolerance. Therefore please do NOT rely upon them for carpet measurements, furniture and the like. Similarly, the floor plan is designed as a visual reference and is NOT a scale drawing.
PROPERTY PARTICULARS - We endeavour to make our property particulars accurate and reliable, however if there is a point that is especially important to you, please contact ourselves prior to exchange of contracts, so that we may further clarify that point. We DO NOT give any warranty to the suitability of any part, including fixtures and fittings of this property, prospective buyers are kindly asked to take specific advice from their professional advisors.
OPENING HOURS - Monday - Friday 9:00 - 5:30 Saturday 9:00 - 3:00 Sunday
FREE VALUATIONS - If you need to sell a house then please take advantage of our FREE VALUATION service, contact our Doncaster Office for a prompt and efficient service.
Brochures
Fillies Avenue, Bessacarr, DoncasterBrochure- COUNCIL TAXA payment made to your local authority in order to pay for local services like schools, libraries, and refuse collection. The amount you pay depends on the value of the property.Read more about council Tax in our glossary page.
- Band: E
- PARKINGDetails of how and where vehicles can be parked, and any associated costs.Read more about parking in our glossary page.
- Garage
- GARDENA property has access to an outdoor space, which could be private or shared.
- Yes
- ACCESSIBILITYHow a property has been adapted to meet the needs of vulnerable or disabled individuals.Read more about accessibility in our glossary page.
- Ask agent
Fillies Avenue, Bessacarr, Doncaster
Add an important place to see how long it'd take to get there from our property listings.
__mins driving to your place
Get an instant, personalised result:
- Show sellers you’re serious
- Secure viewings faster with agents
- No impact on your credit score



Your mortgage
Notes
Staying secure when looking for property
Ensure you're up to date with our latest advice on how to avoid fraud or scams when looking for property online.
Visit our security centre to find out moreDisclaimer - Property reference 34511239. The information displayed about this property comprises a property advertisement. Rightmove.co.uk makes no warranty as to the accuracy or completeness of the advertisement or any linked or associated information, and Rightmove has no control over the content. This property advertisement does not constitute property particulars. The information is provided and maintained by Horton Knights, Doncaster. Please contact the selling agent or developer directly to obtain any information which may be available under the terms of The Energy Performance of Buildings (Certificates and Inspections) (England and Wales) Regulations 2007 or the Home Report if in relation to a residential property in Scotland.
*This is the average speed from the provider with the fastest broadband package available at this postcode. The average speed displayed is based on the download speeds of at least 50% of customers at peak time (8pm to 10pm). Fibre/cable services at the postcode are subject to availability and may differ between properties within a postcode. Speeds can be affected by a range of technical and environmental factors. The speed at the property may be lower than that listed above. You can check the estimated speed and confirm availability to a property prior to purchasing on the broadband provider's website. Providers may increase charges. The information is provided and maintained by Decision Technologies Limited. **This is indicative only and based on a 2-person household with multiple devices and simultaneous usage. Broadband performance is affected by multiple factors including number of occupants and devices, simultaneous usage, router range etc. For more information speak to your broadband provider.
Map data ©OpenStreetMap contributors.





