
Peglars Way, Wichelstowe, Swindon, Wiltshire, SN1 7GX

Letting details
- Let available date:
- Now
- Deposit:
- Ask agentA deposit provides security for a landlord against damage, or unpaid rent by a tenant.Read more about deposit in our glossary page.
- Furnish type:
- Unfurnished
- Council Tax:
- Ask agent
- PROPERTY TYPE
Retirement Property
- BEDROOMS
1
- SIZE
559 sq ft
52 sq m
Key features
- Stunning retirement homes near Swindon, Wiltshire
- Stylish communal lounge for parties, events and everyday socialising
- Beautiful, energy saving, low maintenance over 60s retirement housing for stress-free independent living
- Manager on-site during office hours to help keep everything running smoothly
- Close to shops and amenities as well as beautiful green spaces and the Wilts and Berks Canal
- Lovely sociable shared landscaped gardens maintained for you
- Walk out balcony
- North West facing
- Near the countryside
- Guest suite
Description
Enjoy all of the benefits of a McCarthy & Stone retirement community with our affordable and flexible assured periodic tenancies, so you can rent your property for as long as you want. Renting in retirement provides a wealth of benefits including one monthly fee, removing any worries you may have about the upkeep of your property and the grounds. You can move in at your pace, with some customer moving within just a couple of weeks and settle in to your new home with minimum fuss.
This spectacular 1 bedroom apartment in Swindon, Wiltshire is part of the Locks View development from the award-winning McCarthy & Stone. A private retirement apartment, Apartment 16 is located on the first floor, is low-maintenance and contains extra safety features. See the exclusive benefits and highlights this property has to offer in the development information.
This property is let unfurnished.
- Council tax band: New build - Council Tax band to be determined
- Reservation deposit: £150 (to be offset against your initial payment and fully refundable should your Tenancy not proceed)
- Security deposit: £2,308 (equivalent to 5 weeks rent of the apartment only, excludes any parking space rent)
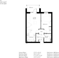
Living Room
5441mm x 3853mm
20.96 SQM
Kitchen
3230mm x 2460mm
7.94 SQM
Shower
2200mm x 1950mm
4.29 SQM
Bedroom
5441mm x 2800mm
15.23 SQM
Brochures
Locks View brochureRental Guide- COUNCIL TAXA payment made to your local authority in order to pay for local services like schools, libraries, and refuse collection. The amount you pay depends on the value of the property.Read more about council Tax in our glossary page.
- Band: TBC
- PARKINGDetails of how and where vehicles can be parked, and any associated costs.Read more about parking in our glossary page.
- Yes
- GARDENA property has access to an outdoor space, which could be private or shared.
- Yes
- ACCESSIBILITYHow a property has been adapted to meet the needs of vulnerable or disabled individuals.Read more about accessibility in our glossary page.
- Ask agent
Energy performance certificate - ask agent
Peglars Way, Wichelstowe, Swindon, Wiltshire, SN1 7GX
Add an important place to see how long it'd take to get there from our property listings.
__mins driving to your place
Notes
Staying secure when looking for property
Ensure you're up to date with our latest advice on how to avoid fraud or scams when looking for property online.
Visit our security centre to find out moreDisclaimer - Property reference a23Qu000001y5vVIAQ. The information displayed about this property comprises a property advertisement. Rightmove.co.uk makes no warranty as to the accuracy or completeness of the advertisement or any linked or associated information, and Rightmove has no control over the content. This property advertisement does not constitute property particulars. The information is provided and maintained by McCarthy & Stone, Nationwide. Please contact the selling agent or developer directly to obtain any information which may be available under the terms of The Energy Performance of Buildings (Certificates and Inspections) (England and Wales) Regulations 2007 or the Home Report if in relation to a residential property in Scotland.
*This is the average speed from the provider with the fastest broadband package available at this postcode. The average speed displayed is based on the download speeds of at least 50% of customers at peak time (8pm to 10pm). Fibre/cable services at the postcode are subject to availability and may differ between properties within a postcode. Speeds can be affected by a range of technical and environmental factors. The speed at the property may be lower than that listed above. You can check the estimated speed and confirm availability to a property prior to purchasing on the broadband provider's website. Providers may increase charges. The information is provided and maintained by Decision Technologies Limited. **This is indicative only and based on a 2-person household with multiple devices and simultaneous usage. Broadband performance is affected by multiple factors including number of occupants and devices, simultaneous usage, router range etc. For more information speak to your broadband provider.
Map data ©OpenStreetMap contributors.





